GM Service Manual Online
For 1990-2009 cars only
Makes
🢒
Chevrolet
🢒
1999
🢒
Astro - 4WD
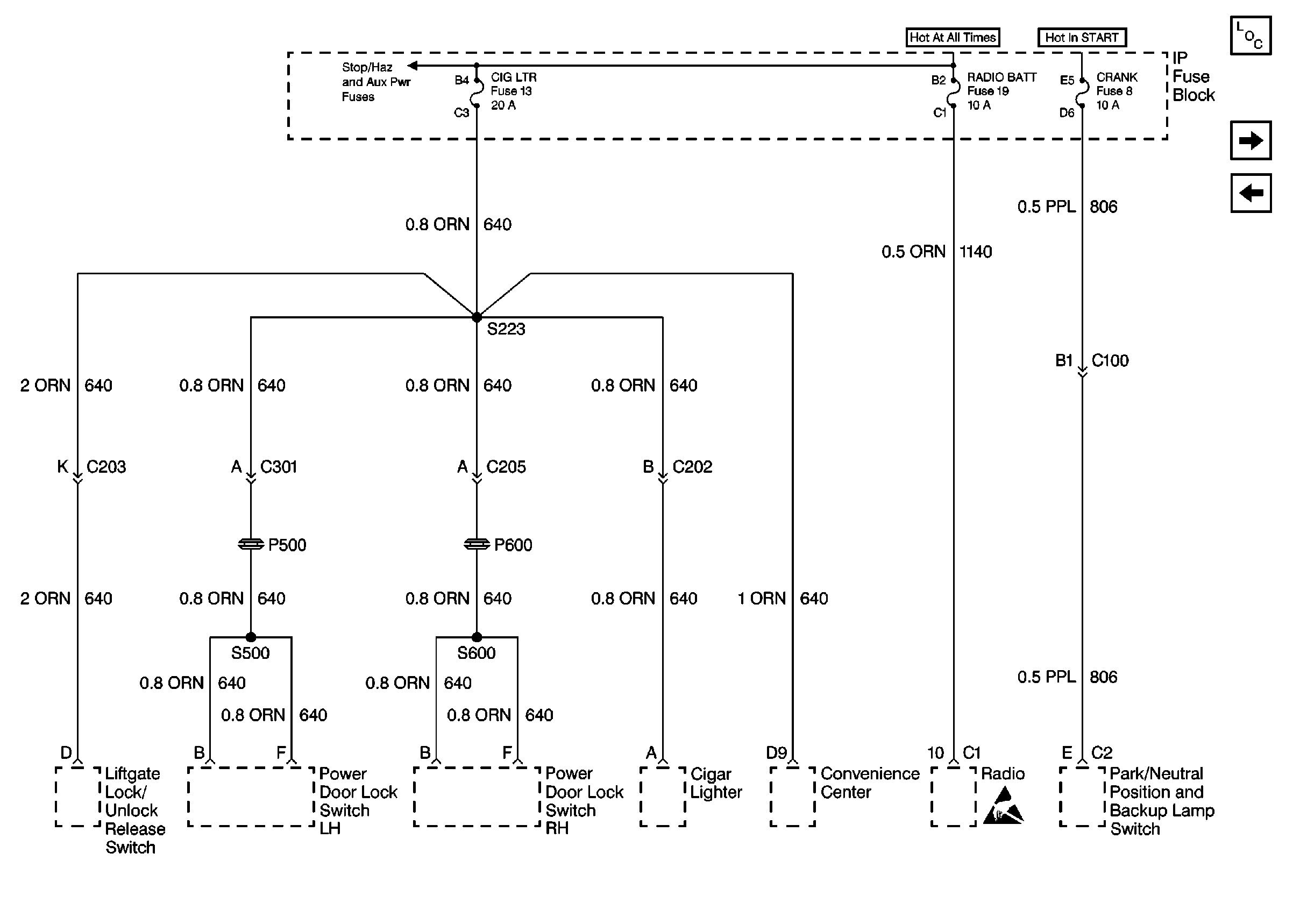
🢒 CIG LTR, RADIO BATT, CRANK Fuses
CIG LTR, RADIO BATT, CRANK Fuses
CIG LTR, RADIO BATT, CRANK Fuses
Power and Grounding Components
CTSY Fuse
STOP/HAZ, AUX PWR Fuses
STOP/HAZ, AUX PWR Fuses
Handling ESD Sensitive Parts Notice