GM Service Manual Online
For 1990-2009 cars only
Makes
🢒
Chevrolet
🢒
2001
🢒
Astro - 4WD
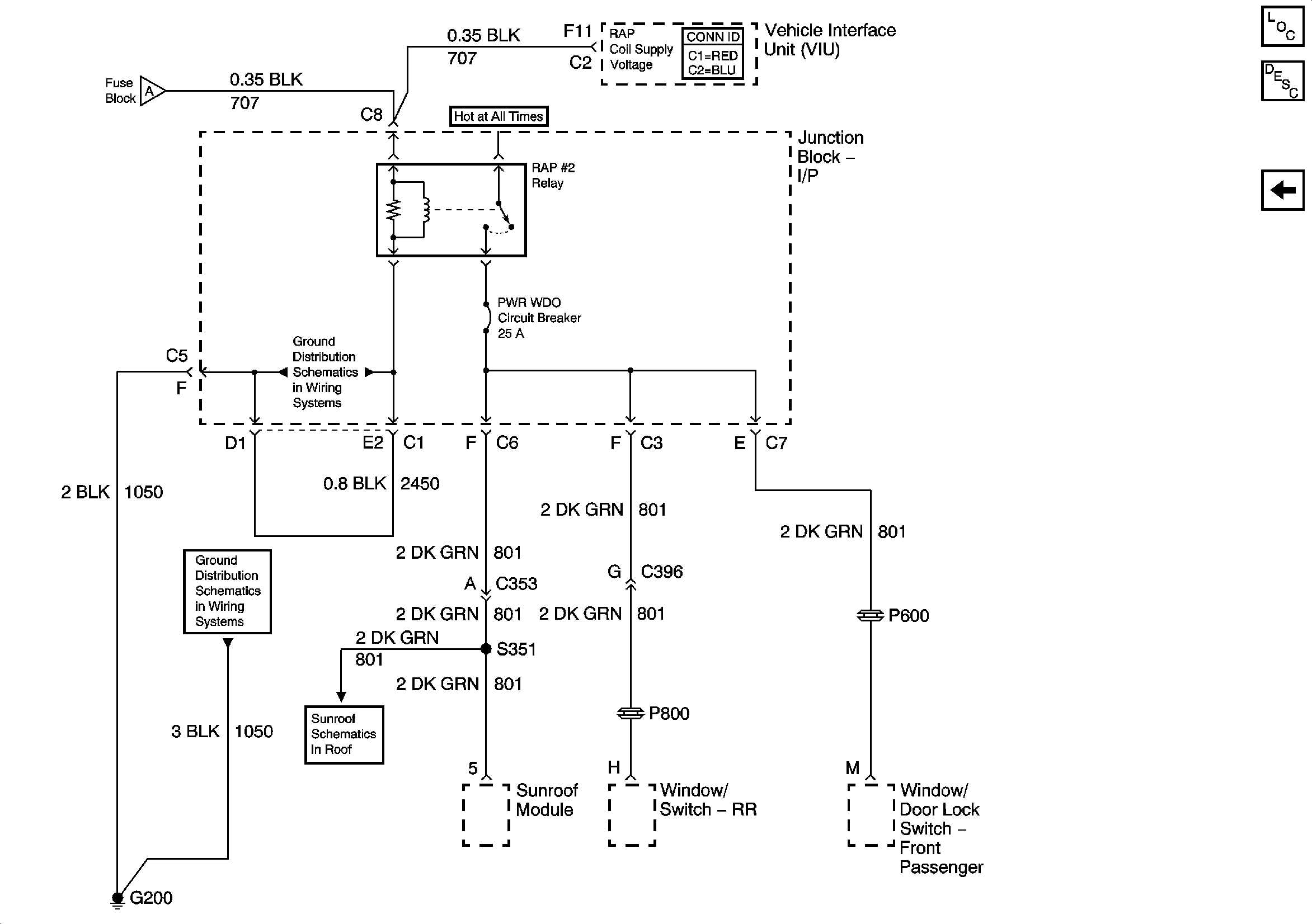
🢒 RAP #2 Controls - Utility
RAP #2 Controls - Utility
RAP #2 controls - Utility
Master Electrical Component List
Retained Accessory Power (RAP) Description and Operation
Rap #1 Controls - Utility
Rap #1 Controls - Utility
G200 - 1 of 2
G200 - 1 of 2
Power Sunroof Schematics