Some 1987-89 L cars have exhibited a condition in which the speedometer/odometer is either inoperative or erratic. This may be caused by a variety of different conditions in the total speedometer circuit and a complete understanding of this entire system is needed to properly repair the vehicle.
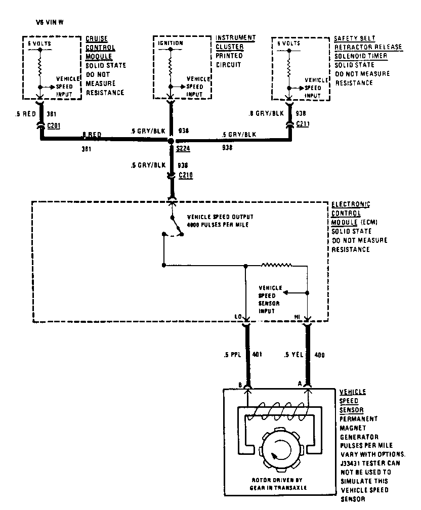
The signal for the speedometer/odometer comes from the VEHICLE SPEED SENSOR (VSS) mounted on the transmission. The VSS creates an AC signal that is sent to the electronic control module (ECM) through two wires (purple and yellow). The ECM processes this VSS signal and creates a new signal based on data stored in the ECM's MEM-CAL (PROM) such as the axle ratio, engine, transmission, etc. The new ECM speed signal is sent to various devices that have to know the vehicle speed to operate properly. These devices include the instrument cluster, speedometer, cruise control module (V6 only), and safety belt retractor release solenoid timer (1989 only).
A more detailed system description, along with additional schematics and tests may be found in Section 8A-33 of the L car Service Manual.
DIAGNOSTIC TIPS
- EXAMINE THE WIRES COMING FROM THE VEHICLE SPEED SENSOR (VSS) MOUNTED ON THE TRANSMISSION. IF THESE TWO WIRES ARE CHAFED OR BROKEN, AN INTERMITTENT OR INOPERATIVE SPEEDOMETER/ODOMETER COULD RESULT. REPAIR THE WIRES USING THE PROCEDURE SHOWN IN SECTION 8A OF THE SERVICE MANUAL.
- THE ATTACHED CHART LISTS THE MOST RECENT MEM-CAL (PROM) PART NUMBERS FOR THE VARIOUS 1987-89 BUILD COMBINATIONS. THIS MAY BE USED AS A REFERENCE FOR CUSTOMER COMMENTS OF INACCURATE OR ERRATIC SPEEDOMETER/ODOMETER. OPERATION.
EMISSIONS PROM PROM YEAR ENGINE TYPE TRANS I.D. P/N ---- ------ ----- ----- ---- ---- 1987-88 2.0L (LL8) AUTO (MD9) 1391 16071656 MAN (MR3) 5541 16075589
2.8L (LB6) FED (NA5) AUTO (MD9) 8931 16128927 MAN (MG2) 8941 16128928 CAL (NB2) AUTO (MD9) 8951 16128929 MAN (MG2) 8961 16128930
2.0L (LL8) AUTO (MD9) 6831 16136812 MAN (MR3) 3412 16083455
1989 2.0L (LL8) FED (NA5) AUTO (MD9) 7031 16137098 MAN (MR3) 2081 16122573 CAL (NB2) AUTO (MD9) 7041 16137102 MAN (MR3) 4861 16122589
2.8L (LB6) FED (NA5) AUTO (MD9) 8101 16138210 MAN (MG2) 4651 16134640 CAL (NB2) AUTO (MD9) 9581 16139548 MAN (MG2) 4661 16134645
General Motors bulletins are intended for use by professional technicians, not a "do-it-yourselfer". They are written to inform those technicians of conditions that may occur on some vehicles, or to provide information that could assist in the proper service of a vehicle. Properly trained technicians have the equipment, tools, safety instructions and know-how to do a job properly and safely. If a condition is described, do not assume that the bulletin applies to your vehicle, or that your vehicle will have that condition. See a General Motors dealer servicing your brand of General Motors vehicle for information on whether your vehicle may benefit from the information.