The following pages are revisions to the cruise control diagnosis section of the 1988 Corsica/Beretta electrical diagnosis supplement.
CRUISE CONTROL V6 VIN W ------------------------ Note: Do not press both the SET and R/A Switches at the same time while V6 VIN W the engine is running. If the Quick SYSTEM DIAGNOSIS Checker displays a short light, release the switches immediately. Use the isolation Test below to Shorts can damage the Quick Checker. choose the proper diagnostic tests.
Tests follow the Isolation Test.
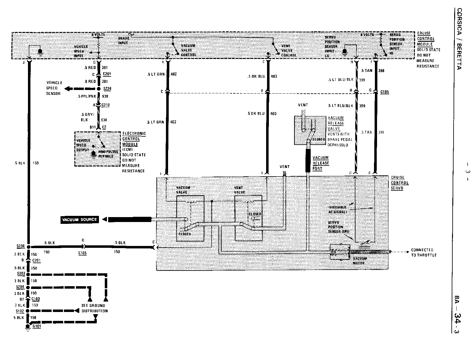
Connect: QUICK CHECKER (J-34185, SPECMO QC-3 OR EQUIVALENT) or DIGITAL VOLTMETER At: CRUISE CONTROL MODULE CONNECTOR (Disconnected) Conditions: Ignition Switch: RUN Without Quick Checker, For With Quick Using Digital Meter Different Check Condition Checker, --------------------------- Response Correct Response Meter Connector Correct Do Range Terminals Response Test: ----- ---------- ---------------- ----- --------- -------- ----- 1 Cruise Switch OFF - 200 ohms J & Ground 0 ohms B 20 VDC A & J 0 volts A All Lights Off 20 VDC M & J 0 volts
2 Cruise Switch ON ON/OFF Light On 20 VDC A & J Battery voltage B BRK Light On 20 VDC G & J Battery voltage C VENT Light On 200 ohms C & J 30 to 55 ohms D VAC Light On 200 ohms K & J 30 to 55 ohms E SPS Light On 200 ohms F & H 15 to 25 ohms F RA Light Off 20 VDC M & J 0 volts A SC Light Off 20 VDC L & J 0 volts A
3 Cruise Switch ON, SC Light On 20 VDC L & J Battert voltage G Set/Coast Switch VAC & SHORT 200 ohms K & J 30 to 55 ohms H pressed Lights Off
4 Resume/Accel ON/OFF Light On 20 VDC A & J Battery voltage B Switch pressed RA Light On 20 VDC M & J Battery voltage I VENT & SHORT 200 ohms C & J 30 to 55 ohms J Lights Off
5 Cruise Switch ON, Pulses between K,L drive wheels VSS Light 20 VDC A & D approximately turned by hand flashes On battery voltage and Off and less than 7
6 Run engine for one minute, then turn Vacuum holds Connect fused Vacuum holds M it off. With the servo jumper from the servo Ignition Switch in all the way C to M and all the way in RUN, press and hold in from K to L Resume/Accel,press before operating Set/Coast Switch, switches wait for Servo to pull in and release Set/ Coast Switch
7 Quick Checker not connected 200 ohms F & J Over range N
- If all the responses were correct, do Test O.
A: CRUISE SWITCH SHORT TEST
Check for shorts to voltage in the wires to terminals A (GRY), M (GRY/BLK) and L (DK BLU) of the Cruise Control Module (see schematic).
If wires are OK, check Multi-Function Lever and Cruise Control Switches for a short. Replace as necessary.
B: POWER CIRCUIT OPEN TEST
1. Check Fuse 14.
2. Check that terminal J (BLK) of the Cruise Control Module is grounded.
3. Disconnect connector C235 and check for battery voltage at terminal A (BRN/WHT) of the harness half with Ignition Switch in RUN (see schematic).
If battery voltage is missing, check/repair BRN/WHT (141) wire.
4. Check continuity between terminals A (BRN) and C (GRY) of the pin half of connector C235 with the Cruise Switch ON.
If there is no continuity, check the Multi-Function and Cruise Control Switches for an open. Replace as necessary.
5. Check for an open in GRY (397) wire between terminal C of connector C235 and terminal A of the Cruise Control Module connector.
C: BRAKE CIRCUIT OPEN TEST
1. Check for an open Brake Switch or Cruise Control Clutch Switch (see schematic).
2. Check BRN (86) or TAN (986) wire for an open (see schematic).
D: VENT CIRCUIT OPEN TEST
If you are testing with a digital voltmeter and you measured less than 30 ohms, perform Test J. Otherwise, remove the connector from the Cruise Control Servo. Measure the resistance between terminals A and C of the Servo.
If it is greater than 55 ohms, replace the Servo.
If it is less than 55 ohms, check for an open DK BLU (403) wire between terminal C of the Cruise Control Module and terminal A of the Cruise Control Servo. Check that terminal C (BLK) of the Servo connector is grounded (see schematic).
E: VAC CIRCUIT OPEN TEST
If you are testing with a digital meter and you measured less than 30 ohms, perform Test H. Otherwise, remove the connector from the Cruise Control Servo. Measure the resistance between terminals E and C of the servo.
If resistance is more than 55 ohms, replace the Cruise Control Servo.
If resistance is less than 55 ohms, check for an open in the LT GRN (402) wire between terminal K of the Cruise Control Module and terminal E of the Cruise Control Servo. Check that terminal C of the servo connector is grounded (see schematic).
F: SPS CIRCUIT OPEN TEST
If you are testing with a digital meter and you measured less than 15 ohms, perform Test N. Otherwise, remove the connector from the Cruise Control Servo. Measure the resistance between terminals B and D of the servo.
If resistance is more than 25 ohms, replace the Cruise Control Servo.
If it is less than 25 ohms, check for an open in the LT BLU/BLK (399) wire between terminal H of the Cruise Control Module and terminal D of the Cruise Control Servo. Check for an open in the TAN (398) wire between terminal F of the Module and terminal B of the Servo.
G: SC CIRCUIT OPEN TEST
Disconnect C235 and check the switch continuity between terminals C (GRY) and D (BLK) of the pin half with the Set/Coast Switch pressed.
If there is no continuity, check Multi-Function Lever and Cruise Control Switches for an open. Replace as necessary.
If the switches are not open, check for an open in the DK BLU (84) wire between terminal D of connector C235 and terminal L of the Cruise Control Module.
H: VAC CIRCUIT SHORT TEST
Remove the connector from the Cruise Control Servo and measure resistance between terminals C and E of the servo.
If resistance is less than 30 ohms, replace the Cruise Control Servo.
If resistance is 30 ohms or more, check for a short to ground in the wire from terminal K of the Cruise Control Module to terminal E of the Cruise Control Servo.
I: R/A CIRCUIT OPEN TEST
Disconnect connector C235 and check switch continuity between terminals A (BRN) and B (RED) of the pin half with the Resume/Accel Switch pressed.
If there is no continuity, check Multi-Function Lever and Cruise Control Switches for an open.
If the switches are not open, check for an open in the GRY/BLK (87) wire between terminal B of connector C23 5 and terminal M of the Cruise Control Module.
J: VENT CIRCUIT SHORT TEST
Remove the connector from the Cruise Control Servo and measure resistance between terminals A and C of the servo.
If it is less than 30 ohms, replace the Servo.
If it is 30 ohms or more, check for a short to ground in the DK BLU (403) wire from terminal C of the Cruise Control Module to terminal A of the Cruise Control Servo.
K: VSS CIRCUIT OPEN TEST
If the VSS Light does not come on, or the voltage between terminals A and D remains less than 7 volts, check for an open in the RED (381) wire from the Vehicle Speed Sensor Buffer. Refer to Section 8A-33 for diagnosis of the Vehicle Speed Sensor.
General Motors bulletins are intended for use by professional technicians, not a "do-it-yourselfer". They are written to inform those technicians of conditions that may occur on some vehicles, or to provide information that could assist in the proper service of a vehicle. Properly trained technicians have the equipment, tools, safety instructions and know-how to do a job properly and safely. If a condition is described, do not assume that the bulletin applies to your vehicle, or that your vehicle will have that condition. See a General Motors dealer servicing your brand of General Motors vehicle for information on whether your vehicle may benefit from the information.