GM Service Manual Online
For 1990-2009 cars only
Makes
🢒
Chevrolet
🢒
2001
🢒
Blazer - 2WD
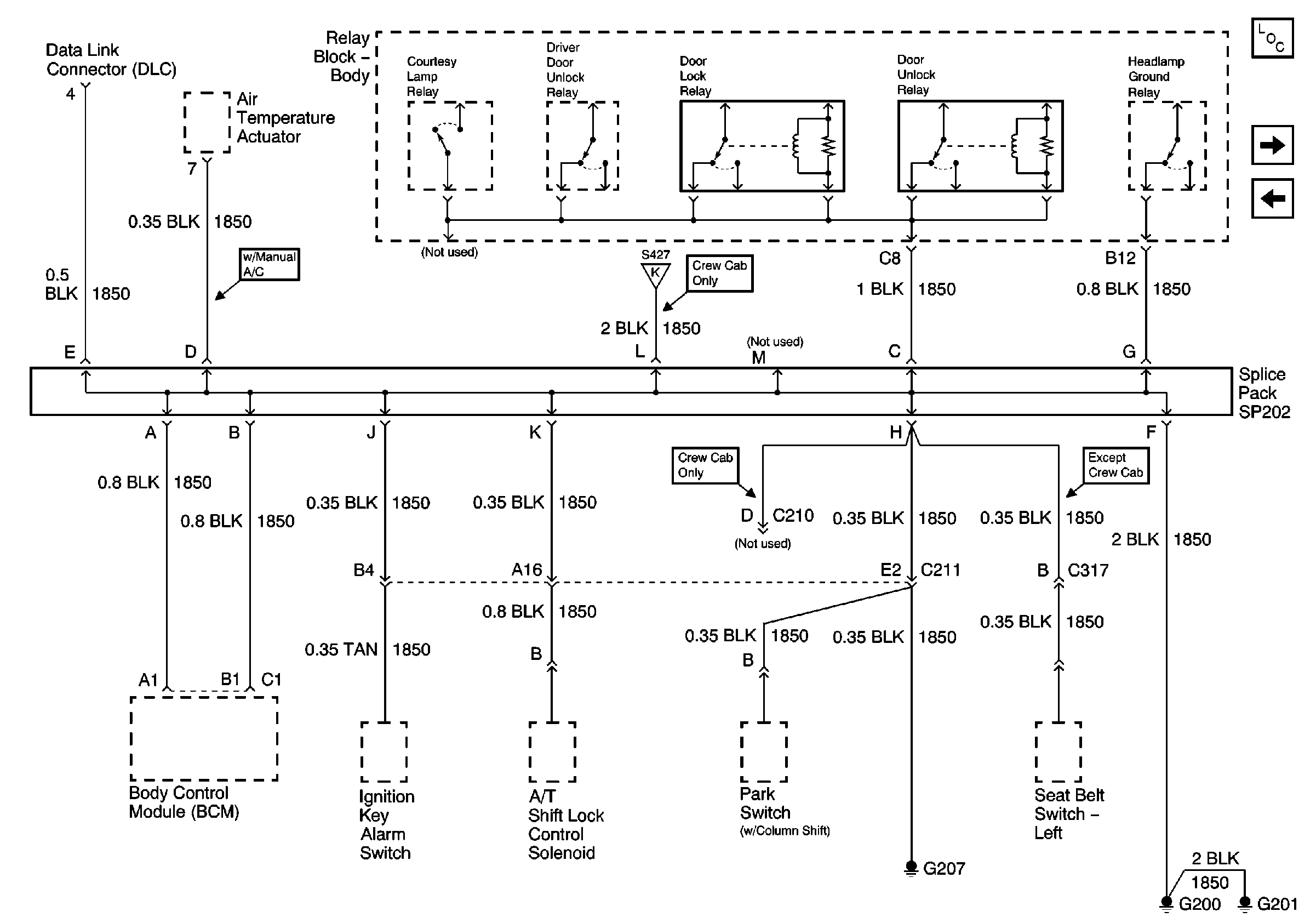
🢒 G200, G201 and G207 (Pickup and Crew Cab)
G200, G201 and G207 (Pickup and Crew Cab)
G200, G201 and G207 (Pickup and Crew Cab)
Master Electrical Component List
G200, G201 and G207 (Utility)
G104 and G117
G420,G450 and S427 (Utility w/ Endgate and Crew Cab)