GM Service Manual Online
For 1990-2009 cars only
Makes
🢒
Chevrolet
🢒
2000
🢒
Blazer - 4WD - RHD
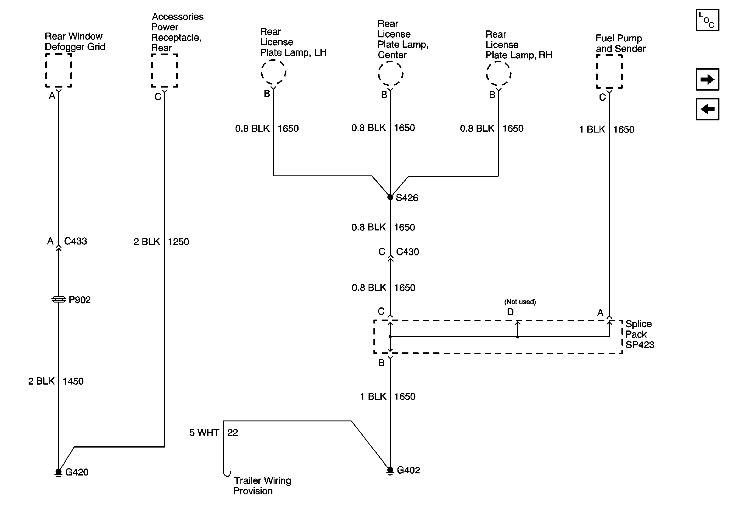
🢒 G402 and G420
G402 and G420
G402 and G420
Power and Grounding Components
G203 and G205
S320 and S420