GM Service Manual Online
For 1990-2009 cars only

CAMPAIGN: INJECTION PUMP GOVERNOR WEIGHT RETAINER

Subject: PRODUCT SAFETY CAMPAIGN 82C05 1982 CHEVROLET CAPRICE, IMPALA, MONTE CARLO, AND MALIBU MODELS EQUIPPED WITH RPO LF9 (5.7L V8 DIESEL ENGINE) - INFECTION PUMP GOVERNOR WEIGHT RETAINER ASSEMBLY

The National Traffic and Motor Vehicle Safety Act, as amended provides that each vehicle which is subject to a recall campaign of this type must be adequately repaired within a reasonable time after the owner has tendered it for repair. A failure to adequately repair within 60 days after tender of a vehicle is prima facie evidence of failure to repair within a reasonable time. If the condition is not adequately repaired within a reasonable time, the owner may be entitled to an identical or reasonably equivalent vehicle at no charge, or to a refund of the purchase price less a reasonable allowance for depreciation.

In order to avoid having to provide these burdensome solutions, every effort must be made to promptly schedule an appointment with each owner and to repair his vehicle as soon as possible. As you will see in reading the attached copy of the letter which is being sent to owners, the owner is being instructed to contact the nearest Chevrolet Zone Office if his dealer does not remedy the condition within five days of the mutually agreed upon service date. If the condition is not remedied within a reasonable time, he is instructed on how to contact the National Highway Traffic Safety Administration.

DEFECT INVOLVED

General Motors has determined that a defect which relates to motor vehicle safety exists in some early production 1982 Caprice, Impala, Monte Carlo and Malibu models equipped with RPO LF9 (5.7L V8 diesel engine). Under certain vehicle operating conditions the governor weight retainer in the injection pump may fail and the throttle valve could stick, preventing return to idle and shut down of the engine by the operator of the vehicle. This could result in a loss of vehicle control and a vehicle crash could occur without prior warning.

VEHICLES INVOLVED

Involved are certain 1982 Caprice, Impala, Monte Carlo and Malibu models equipped with RPO LF9 (5.7L V8 diesel engine) within the following vehicle breakpoints:

Plant From Through ------- -------- -------- Fairfax CX100005 CX102265 Oshawa C1100013 C1140010 Arlington CR100940 CR145699 Baltimore CB101728 CB132798 Janesville CJ100010 CJ121184

Some vehicles within the serial numbers listed may have had the campaign correction performed in the assembly plant before the vehicle was shipped. These corrected vehicles can be identified by a red "C" sticker on the front of the left valve cover, or by a daub of red paint on the pump timing boss.

Involved vehicles have been identified by Vehicle Identification Number Computer Listings. Computer listings contain the complete Vehicle Identification Number, owner name and address data, and are furnished to the involved dealers with the campaign bulletin. Owner name and address data furnished will enable dealers to follow-up with owners involved in this campaign.

These listings may contain owner names and addresses obtained from State Motor Vehicle Registration Records. The use of such motor vehicle registration data for any other purpose is a violation of law in several states. Accordingly, you are urged to limit the use of this listing to the follow-up necessary to complete this campaign. Any dealer not receiving a computer listing with the campaign bulletin was not shipped any involved vehicles.

OWNER NOTIFICATION

Owners will be notified of this campaign on their vehicles by Chevrolet Motor Division (see copy of Owner Letter included with this bulletin).

DEALER CAMPAIGN RESPONSIBILITY

Dealers are to service all vehicles subject to this campaign, regardless of mileage, age of vehicle, or ownership, from this time forward.

Whenever a vehicle subject to this campaign is taken into your new or used vehicle inventory or it is in your dealership for service in the future, you should take the steps necessary to be sure the campaign has been made.

SERVICE PROCEDURE

The friction drive governor weight retainer assembly is to be replaced with a pellethane governor weight assembly, see Figure 1.

A. INSPECTION ONLY:

If the vehicle serial number falls within the above range open the hood and locate a red "C" sticker on the front of the left valve cover or a daub of red paint on the pump timing boss. If either of these identifying marks are located install a campaign correction label as follows: Record the campaign number82-C-05, dealer code and date on the blank campaign correction label and install on the radiator baffle where it is readily visible.

B. INSPECTION AND CORRECTION:

If the above described identifying marks cannot be located on the left valve cover or on the pump timing boss the following service procedure must be performed:

Many dealers have attended the advance diesel class or have otherwise been trained to change governor weight retainer rings. These procedures are almost identical to the training you have previously received, however, there are some changes that need your attention (see steps 7 and 15 of the assembly procedure).

Dealers should follow the step by step procedures. There are no special tools required, however, a plate to mount the pump makes the job considerably easier. NO ATTEMPT WHATSOEVER SHOULD BE MADE TO MOUNT THE PUMP IN A VISE BY CLAMPING ON THE PUMP ATTACHING FLANGE.

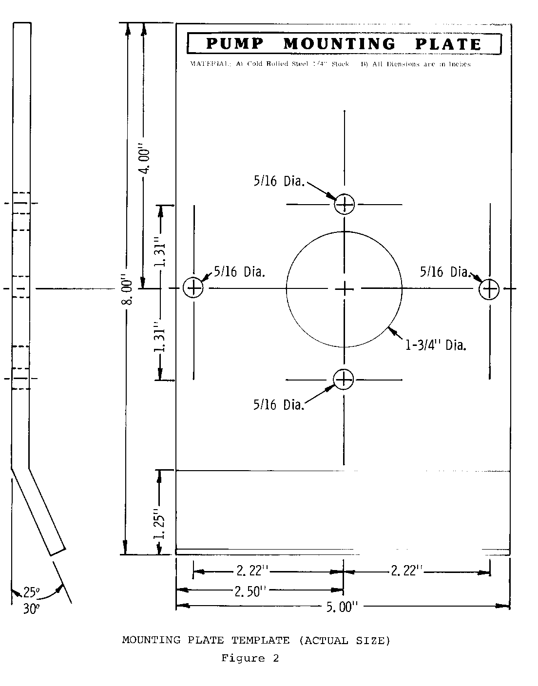
A template showing a pump mounting plate is included in the event you wish to have one made (see Figure 2). Mounting plates are available from Kent Moore (Tool Number J29692A) and Borroughs Tool and Equipment Co. (Tool Number BT-8046 or BT-8046P). Alternative mounting methods use vacuum booster, Tool Number J950401, (see Figure 2A) or differential seal tool, Tool Number J-8614-1.

The fuel injection pump must be mounted in the vise with the fuel distribution head end lower than the attaching flange end, as shown in Figure 11. This facilitates removal and installation of the governor assembly by preventing the weights from falling out of the retainer cage.

The diesel injection pump is a complex item, containing close tolerance pieces. Cleanliness is essential. Your tools and work area must be clean. Injection pump parts should be placed in clean metal trays only.

DISASSEMBLY

1. Observe position of timing alignment marks so pump can be reinstalled in same position. Remove the injection pump from the vehicle following the procedure outlined in Section 6C5 of the 1982 Chassis Service Manual.

2. Scribe a line on the vacuum regulator valve and pump body so the valve can be reinstalled without resetting. Remove the valve.

3. Install plugs in the discharge ports, fuel inlet port and return line port. Clean the pump thoroughly on the outside. Any cleaner that does not irritate the skin should be satisfactory. If nothing else, immerse in diesel fuel oil and brush clean, blow dry.

4. Install the pump in a holding fixture so that rear of pump is tilted downward (see Figure 11).

5. Remove the three governor cover screws and remove the cover. See Figure 3. Catch diesel fuel in drain pan when cover is removed.

6. Remove the guide stud and guide stud washer. Remove the min/max governor assembly. See Figs. 4 and 5. If guide stud washer has a rubber insert in it, do not discard, if it is a solid aluminum type, discard.

7. Install Tool J-29601 on the throttle shaft and tighten thumb screw. Remove the tool. See Fig. 6.

NOTE: THIS SETTING IS USED TO POSITION THE ADVANCE CAM DURING REASSEMBLY.

8. Remove the vacuum regulator valve drive pin and cam screw. Remove the throttle shaft and advance cam. See Figure 7.

9. Remove the governor linkage assembly and the metering valve. See Fig. 8.

10. Using a 1/8"Allen Wrench remove the housing vent screw. See Figure 9.

11. Remove one head locking screw and loosen the other, turn pump upside down and remove the head locating screw. See Figure 10.

12. Remove the advance screw hole plug, lift out the cam advance pin, using a pair of needle nose pliers. See Fig. 11.

13. Rotate the pump upright and remove one remaining head locking screw. Remove the head and rotor assembly from the pump housing by grasping the head with both hands and rotating back and forth while pulling. See Figure 12.

14. Remove the governor weights, thrust sleeve and thrust washer and remove the snap ring. Remove the governor weight retainer assembly. See Figures 13 and 14.

NOTE: DO NOT REMOVE ANY OTHER PARTS FROM THE HEAD AND ROTOR.

ASSEMBLY

1. Remove old hydraulic head seal and install a new hydraulic head seal provided in kit. See Figure 12 for location of head seal.

2. Install the new governor weight retainer assembly provided in the kit.

3. Install governor weight retainer snap ring.

4. With head and rotor assembly standing upright on work bench, install governor weights and thrust washer in cage. Make sure washer is positioned in slots of each governor weight. See Figure 15.

5. Position thrust sleeve on top of thrust washer.

6. Apply a coat of grease from grease pack in kit to the hydraulic head seal.

7. Locate the top of the head and rotor by finding the transfer pump tap screw. See Fig. 10. Rotate the cam ring until the smallest hole is at the bottom. Note: The threads of a head locking screw will not fit into the smallest cam ring hole.

8. Rotate the drive shaft until the "T" mark is positioned upward. See Fig. 16. Observe the dot on the opposite end of the drive shaft tang, and locate the dot in the drive shaft slot. Hold the cam ring and rotate the retainer to align the dots. See Figure 17 on page 13.

9. Insert the head and rotor assembly into the housing. Rotate the drive shaft back and forth slightly until it is engaged. Complete the insertion of the head and rotor into the housing using a twisting motion until the head locking screw holes line up.

NOTICE: Insertion of the head too far into the pump may cut the housing seal. If the head goes in further than the locating screw holes check the housing to see if seal is exposed in the opening for the vent screw, if it is, remove and replace the seal.

10. Retain the head and rotor assembly into the housing by installing the two (2) head locking screws (hand tight). See Figure 10.

11. Turn pump upside down and install head locating screw using a new head locating screw seal. Torque locating screw to 24.4 Nm. (17 Ft. Lbs.) then torque the two (2) head locking screws to 24.4 Nm. (17 Ft. Lbs.).

12. Install cam pin using needle nose pliers. See Figure 11.

NOTE: WITH A SMALL SCREWDRIVER, LINE UP THE HOLE IN THE PISTON AND CAM RING. MOVE THE SERVO PISTON OUT OF THE WAY.

13. Install advance pin hole plug. Torque to 10.8 Nm. (8 Ft. Lbs)

14. Turn pump right side up and remove the timing line cover. and gasket. See Figure 18 on page 14.

15. Check internal pump timing by viewing through the timing line opening. The line on the cam ring should be visible. Using a flashlight, rotate the drive shaft until the head of a screw is visible in cam ring. (allen head) The "T" on the drive shaft should be positioned downward if properly timed. If both conditions are not met, the cam ring or the head could be installed improperly. Disassemble and correct. See Figure 18 on page 14.

16. Install timing line cover.

17. Install housing vent screw and metering valve. See Figure 8.

18. Rotate thrust sleeve so that flat on sleeve is up.

19. Install pivot arm and linkage hook assembly making sure the feet on the pivot are forward of the thrust sleeve.

20. Rotate the metering valve back and forth; the linkage should not restrict the movement of the valve.

21. Position advance cam between advance lever arm and housing making sure that mylar washer is in position on the cam. See Figure 19 on page 15.

22. Using new throttle shaft seals lubricate seals and shaft and install throttle shaft into housing and advance cam.

23. Install advance cam screw (hand tight).

24. Install new throttle shaft drive pin provided in kit.

25. Install tool J-29601 on throttle shaft over drive pin to properly align cam. See Figure 6.

26. Insert a .005 feeler gauge between the white washer on the throttle shaft and the pump housing. Squeeze the cam and throttle shaft together and tighten the cam screw. Torque to 3.4 Nm. (30 In. Lbs.) and secure with Loctite 290. Remove tool J-29601. See Figure 20 on page 15.

27. Pivot the min/max governor assembly into position. See Figure 5.

28. Install the guide stud and new guide stud washer if needed, making certain that the upper extension of the metering valve spring rides on top of the guide stud. Torque the guide stud to 9.5 Nm. (7 Ft. Lbs.). Do not overtorque the guide stud.

29. Install a new pump cover gasket on the cover. Make sure the screws are not in the cover and position the cover about 1/4 inch forward (toward shaft end) and about 1/8 inch above the pump.

30. Move the cover rearward and downward into position, being careful not to cut the gasket and reinstall the cover screws. Be careful not to drop flat washer and internal lock washer with each screw. Flat washer must be against pump cover. Torque to 3.5 Nm. (33 In. Lbs.).

31. To pressure test, follow the procedure on page 6C5-13 of the 1982 Chassis Service Manual. If no leaks are observed continue with step 32.

32. Reinstall vacuum regulator valve on pump, lining up valve to scribe mark made in step 4 of disassembly torque bolts to 5.4 Nm. (4 Ft. Lbs.). Reinstall pump in vehicle following the procedure in Section 6C5 of the 1982 Chassis Service Manual. Timing alignment marks should be aligned in same position noted in step 1 of disassembly. NOTE: DO NOT START THE ENGINE UNTIL STEPS 33 AND 34 HAVE BEEN COMPLETED.

33. After pump is reinstalled in the vehicle turn the ignition switch to the run position and touch the pink fuel solenoid wire to the solenoid. A clicking noise should be heard as the wire is connected and disconnected. If this clicking is not observed, the linkage may be jammed in a wide open throttle position and the engine MUST NOT be started. If clicking is observed connect the electrical connector(s) then proceed to step 35.

34. If clicking is not observed remove the cover. Ground the solenoid lead (opposite the hot lead) and connect the pink wire. With the ignition switch in the run position, the solenoid in the cover should move the linkage. If not, the solenoid must be replaced. Minimum voltage across solenoid terminals must be 12.0 volts.

35. Start the engine and check for leaks. (Using a jumper to energize the housing pressure cold advance solenoid will reduce starting time.)

36. Idle roughness may be observed due to the air in the pump, give it plenty of time to purge which it will do by allowing the engine to idle. It may be necessary to shut the engine down for several minutes to allow air bubbles to rise to the top of the pump where they will be purged.

37. Using a MAG-TAC (J-26925), set idle speeds according to emission label.

38. Install "Campaign Identification Label" according to the instructions outlined in this bulletin.

PARTS INFORMATION

Parts required to complete this campaign should be ordered through your General Motors Warehousing and Distribution Division (GMWDD).

Quantity Description Part Number -------- ------------------------ ----------- 1 Governor Weight Retainer 22518269 Assembly Kit

CLAIM INFORMATION

Submit a Product Claim with the information indicated below depending upon the inspection/correction performed:

Parts Failed **Parts Failure Labor Labor *Other Count Part No. Allowance Code Operation Hours Hours ----- -------- --------- ------- --------- ----- -------- 00 V1100 .2 .1

Description: Inspect for vehicle involvement in accordance with the instructions contained in this bulletin. Vehicle not involved, no further action required.

Parts Failed **Parts Failure Labor Labor *Other Count Part No. Allowance Code Operation Hours Hours ----- --------- --------- ------- ------- ---- ----- 1 25518269 00 V1101 2.0 .1

Description: Inspect, remove and replace pump, replace governor assembly.

*Campaign Administrative Allowance

** The Parts Allowance should be the sum total of the current GMWDD Dealer Net plus 30% of all parts required for the repair.

Dealers will automatically receive the correct parts and labor allowance based on the Labor Operation performed.

Refer to the Chevrolet Claims Processing Manual for details on Product Campaign claim submission.

CAMPAIGN IDENTIFICATION LABEL

Each vehicle modified in accordance with the instructions outlined in this Product Campaign Bulletin will require a "Campaign Identification Label". Each label provides a space to include the five digit dealer code of the dealer performing the campaign service. This information may be inserted with a typewriter or ballpoint pen.

Each "Campaign Identification Label" is to be located on the radiator core support in an area which will be visible when the vehicle is brought in for servicing by the owner. Apply "Campaign Identification Label" only on a clean dry surface.

ADMINISTRATIVE PROCEDURE

REFER TO THE CURRENT CHEVROLET SERVICE POLICIES AND PROCEDURES MANUAL AND CLAIMS PROCESSING MANUAL FOR CAMPAIGN HANDLING AND ADMINISTRATIVE PROCEDURES.

Dear Chevrolet Owner:

This notice is sent to you in accordance with the requirements of the National Traffic and Motor Vehicle Safety Act. General Motors has determined that a defect which relates to motor vehicle safety exists in some early production 1982 Chevrolet Caprice, Impala, Monte Carlo and Malibu models equipped with RPO LF9 (5.7L V8 diesel engine).

Under certain vehicle operating conditions, if the governor weight retainer assembly in the injection pump has failed, the throttle valve could stick, preventing return to idle and shut down of the engine by the operator of the vehicle. This could result in loss of vehicle control and a vehicle crash could occur without prior warning.

To reduce the possibility of this occurring on your vehicle, please contact your Chevrolet Dealer on or after the date shown below to arrange a service date. Your dealer will replace the governor weight retainer assembly in the injection pump. This service will be done at no charge to you.

In the event the throttle sticks before you have your vehicle modified, the driver should shift the transmission into neutral, apply the service brakes to bring the vehicle to a safe stop at the side of the road, and then turn off the ignition and call the nearest Chevrolet dealership for assistance.

Instructions for making this correction have been sent to your dealer. It is expected that parts will be available on February 15, 1982. Please contact your dealer after this date to arrange a mutually satisfactory service date to have this modification performed. The labor time to perform the correction is approximately 2 hours. Please allow additional time for the dealer to process your vehicle. If you take your vehicle to your dealer on the agreed service date and they do not remedy the condition without charge on that date or within five days, you should contact your nearest Chevrolet Zone Office, either in person or by telephone, for assistance. The locations and phone numbers of the Zone Offices are listed in your Owner's Manual. If your dealer or General Motors fails or is unable to remedy this condition without charge within a reasonable time, you may wish to notify the Administrator, National Highway Traffic Safety Administration, 400 Seventh Street, S.W., Washington, D.C. 20590.

The enclosed owner Reply Card identifies your vehicle. Presentation of the card to your dealer will assist them in making the necessary correction to your vehicle in the shortest possible time. If you have sold or traded your vehicle, please let us know by completing the postage paid Owner Reply Card and returning it to us.

We are sorry to cause you this inconvenience; however, we have taken this action in the interest of your safety and continued satisfaction with our products.


Object Number: 88820  Size: MF


Object Number: 80743  Size: FS


Object Number: 87045  Size: SF


Object Number: 88552  Size: LF


Object Number: 92941  Size: MF


Object Number: 90799  Size: MF


Object Number: 89682  Size: MF


Object Number: 88692  Size: MF


Object Number: 86192  Size: MF


Object Number: 94525  Size: SF


Object Number: 88691  Size: MF


Object Number: 89059  Size: MF


Object Number: 87323  Size: SF


Object Number: 94258  Size: SF


Object Number: 93730  Size: MF


Object Number: 91115  Size: SF


Object Number: 89295  Size: MF


Object Number: 88551  Size: LF


Object Number: 90397  Size: MF


Object Number: 88550  Size: LF


Object Number: 89421  Size: MF

General Motors bulletins are intended for use by professional technicians, not a "do-it-yourselfer". They are written to inform those technicians of conditions that may occur on some vehicles, or to provide information that could assist in the proper service of a vehicle. Properly trained technicians have the equipment, tools, safety instructions and know-how to do a job properly and safely. If a condition is described, do not assume that the bulletin applies to your vehicle, or that your vehicle will have that condition. See a General Motors dealer servicing your brand of General Motors vehicle for information on whether your vehicle may benefit from the information.