GM Service Manual Online
For 1990-2009 cars only
Makes
🢒
Chevrolet
🢒
2001
🢒
Chevy C Silverado - 2WD
🢒
Driveline/Axle
🢒
Transfer Case - NVG 263-NP1 (Selectable)
🢒 Transfer Case Control Schematics
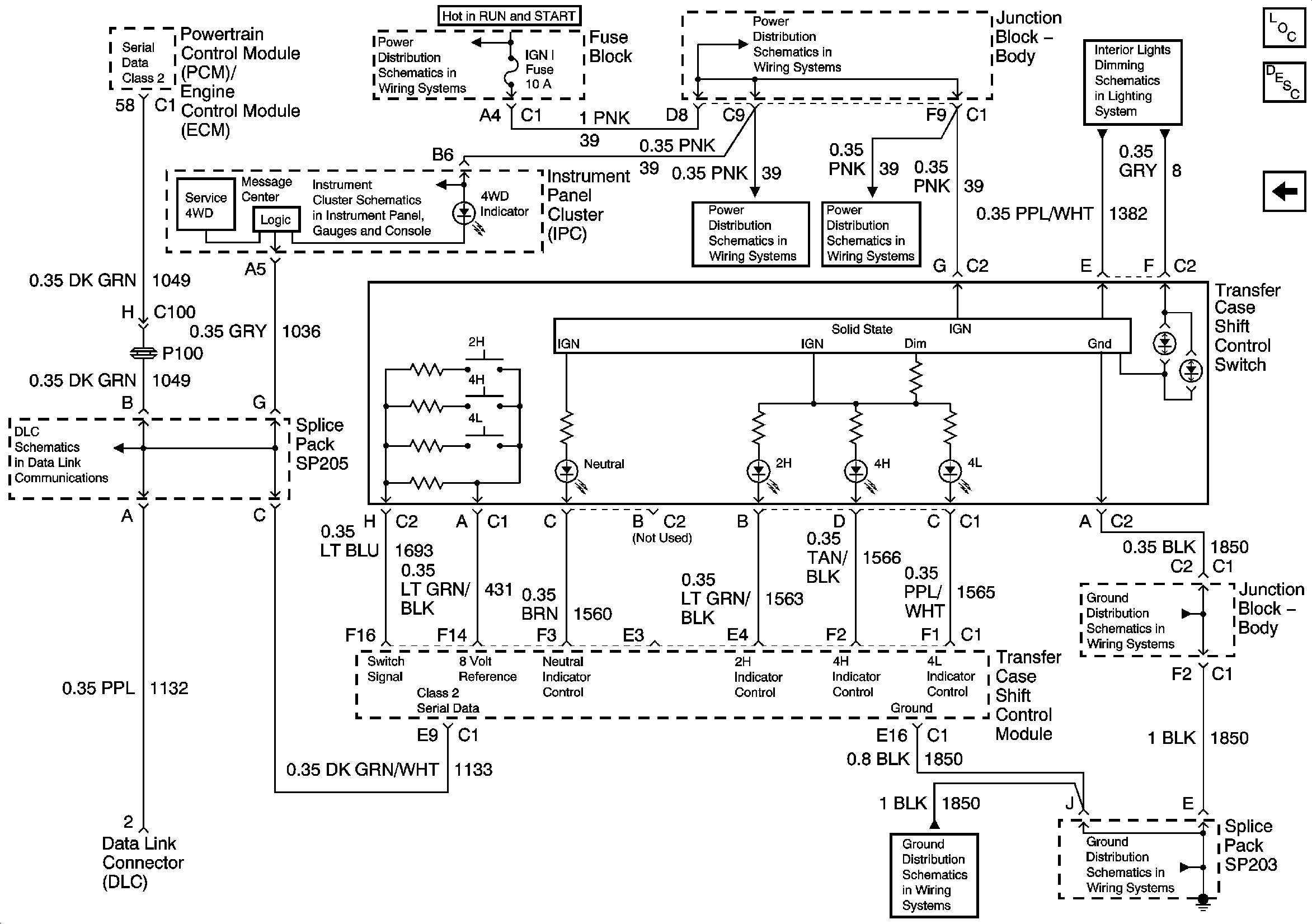
Figure
1:
Module Power, Ground, and Transfer Case Encoder Motor
Master Electrical Component List
Transfer Case Description and Operation
Front Axle Actuator, Transfer Case Shift Control Module
IGNITION, RUN, and START Bus Bar
4WD and HVAC I Fuses
B+ Bus Bar
G100 and G110
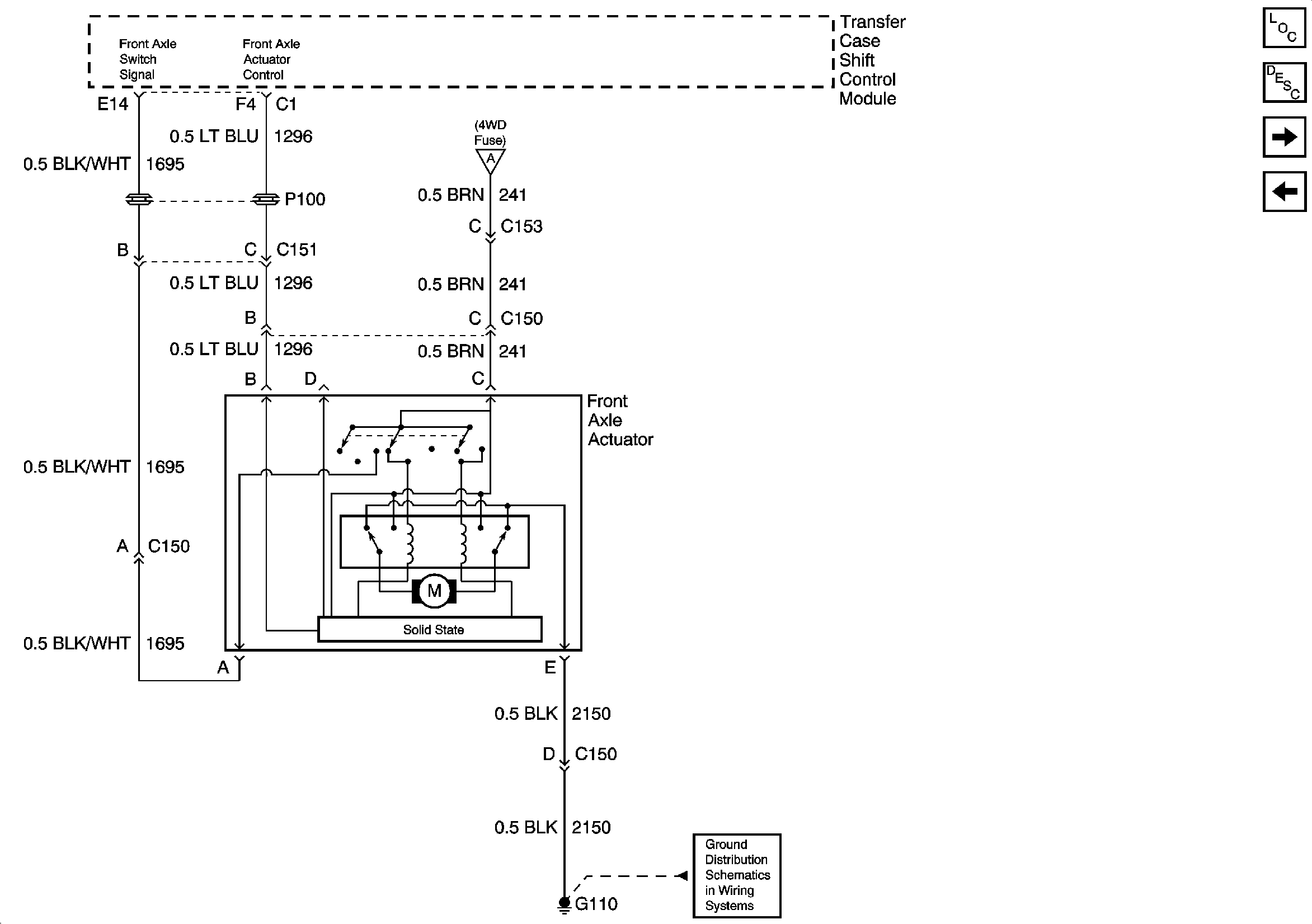
Figure
2:
Front Axle Actuator
Master Electrical Component List
Transfer Case Description and Operation
SP203, Transfer Case Shift Control Switch, DLC
Transfer Case Shift Control Module and Encoder Motor, G110
Transfer Case Shift Control Module and Encoder Motor, G110
G100 and G110
Figure
3:
Transfer Case Shift Control Switch, Indicator, and Serial Data
Master Electrical Component List
Transfer Case Description and Operation
Front Axle Actuator, Transfer Case Shift Control Module
IGNITION, RUN, and START Bus Bar
Driver Information System Schematics
Transfer Case Shift Control, Roof Beacon, and Inflatable Restraint IP Module Disable Switches, HVAC Control Module, IPC, and Radio
Indicators and Serial Data
IGN 1, AIR BAG, and SEO IGN Fuses
IGN 1, AIR BAG, and SEO IGN Fuses
SP205
G203 - 4 of 4 - Utility and Uplevel Pickup
G203 - 1 of 4
G203 - 1 of 4