GM Service Manual Online
For 1990-2009 cars only
Makes
🢒
Chevrolet
🢒
2003
🢒
Chevy C Silverado - 2WD
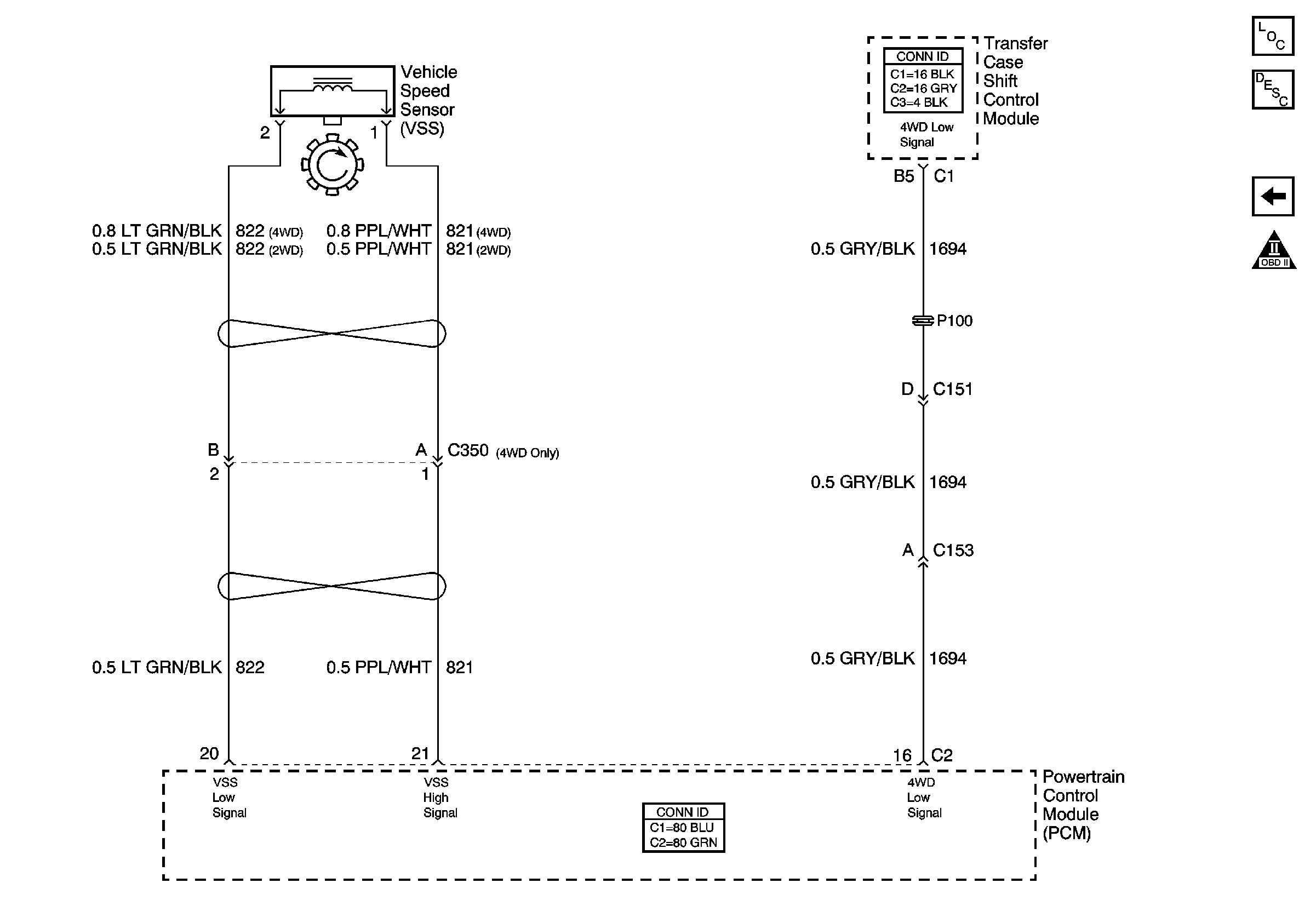
🢒 Vehicle Speed Signal and 4WD Low Signal
Vehicle Speed Signal and 4WD Low Signal
Vehicle Speed Signal and 4WD Low Signal
Master Electrical Component List
Electronic Component Description
Tow/Haul Switch and PNP Switch Inputs
Automatic Transmission Schematic Icons