GM Service Manual Online
For 1990-2009 cars only
Makes
🢒
Chevrolet
🢒
2004
🢒
Chevy C Silverado - 2WD
🢒 Manual Transmission Schematics
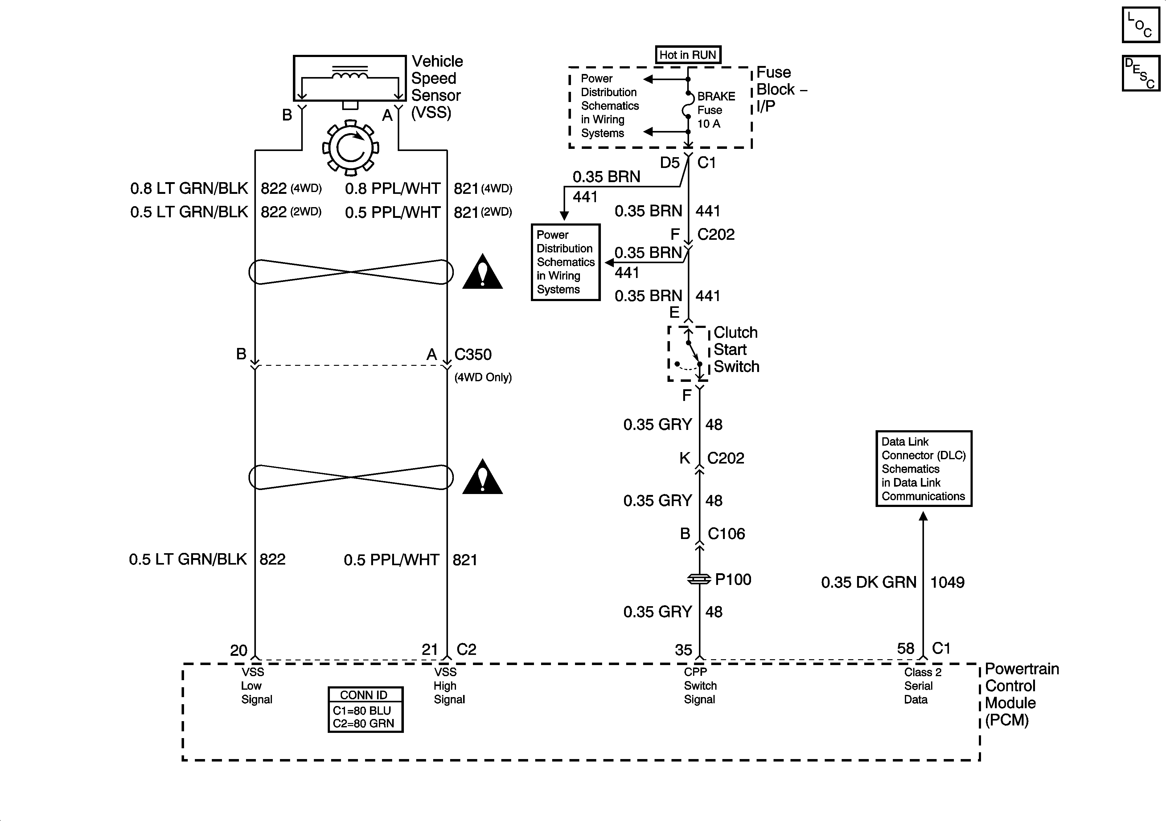
Manual Transmission Schematics
Master Electrical Component List
Transmission System Description and Operation
BRAKE, HTR/AC, and HVAC 1 Fuses
Manual Transmission Schematic Icons
BRAKE, HTR/AC, and HVAC 1 Fuses
Manual Transmission Schematic Icons
SP205 - 2 of 2