GM Service Manual Online
For 1990-2009 cars only

RWAL SYSTEM REPEAT CODE 4 (RWAL CONTROL VALVE ASSY.)

Model and Year: 1990 G VAN WITH RWAL BRAKES

Incidents of repeated code 4 conditions may be observed on the above vehicles. This condition can be caused by contamination of the dual coil electrical connector which is part of the RWAL control valve assembly. The contamination can cause a short to ground within the connector resulting in a code 4 being set and deactivation of the anti-lock feature of the RWAL System. A new dual coil connector has been released which prevents water and contamination intrusion into the connector. The new connector can be identified by its natural whitish/yellow color. All previous connectors have been black.

IMPORTANT: The dual coil connector is manufactured as an integral component of the RWAL control valve assembly therefore the control valve must be replaced as a unit (see Figure 1).

DIAGNOSIS INFORMATION

Technicians should refer to the RVGP Light Duty Truck Service Manual for correcrt diagnostic procedures. If the connector is the cause of the Code 4, the manual will identify the control valve assembly as the probable cause. See attached Code 4 diagnosis chart.

When the control valve has been replaced the technician should clear all codes, and assure that no other codes are set by performing a function test and Diagnostic Circuit Check.

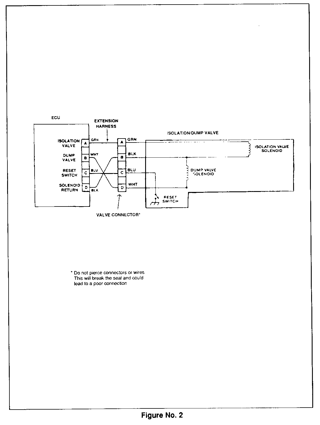
IMPORTANT: The wiring diagram for control valve to the ECU is given in Figure 2. This diagram shows the correct wire/color sequence and connections.

PARTS INFORMATION

Description Part Number Model

Control valve - pressure limit 15635214 G3 WITH JB7 BRAKES

15633174 G3 WITH JD7 BRAKES G3 WITH JB8 BRAKES

15633176 G1 AND G2

Parts are currently available from GMSPO.

LABOR OPERATION INFORMATION

For vehicles repaired under warranty use:

Labor Operation: H2480

Labor Time: Use time as indicated in the labor time guide.


Object Number: 81451  Size: FS


Object Number: 80172  Size: FS


Object Number: 81450  Size: FS

General Motors bulletins are intended for use by professional technicians, not a "do-it-yourselfer". They are written to inform those technicians of conditions that may occur on some vehicles, or to provide information that could assist in the proper service of a vehicle. Properly trained technicians have the equipment, tools, safety instructions and know-how to do a job properly and safely. If a condition is described, do not assume that the bulletin applies to your vehicle, or that your vehicle will have that condition. See a General Motors dealer servicing your brand of General Motors vehicle for information on whether your vehicle may benefit from the information.