GM Service Manual Online
For 1990-2009 cars only
Makes
🢒
Chevrolet
🢒
1998
🢒
Chevy P42 Commercial Chassis
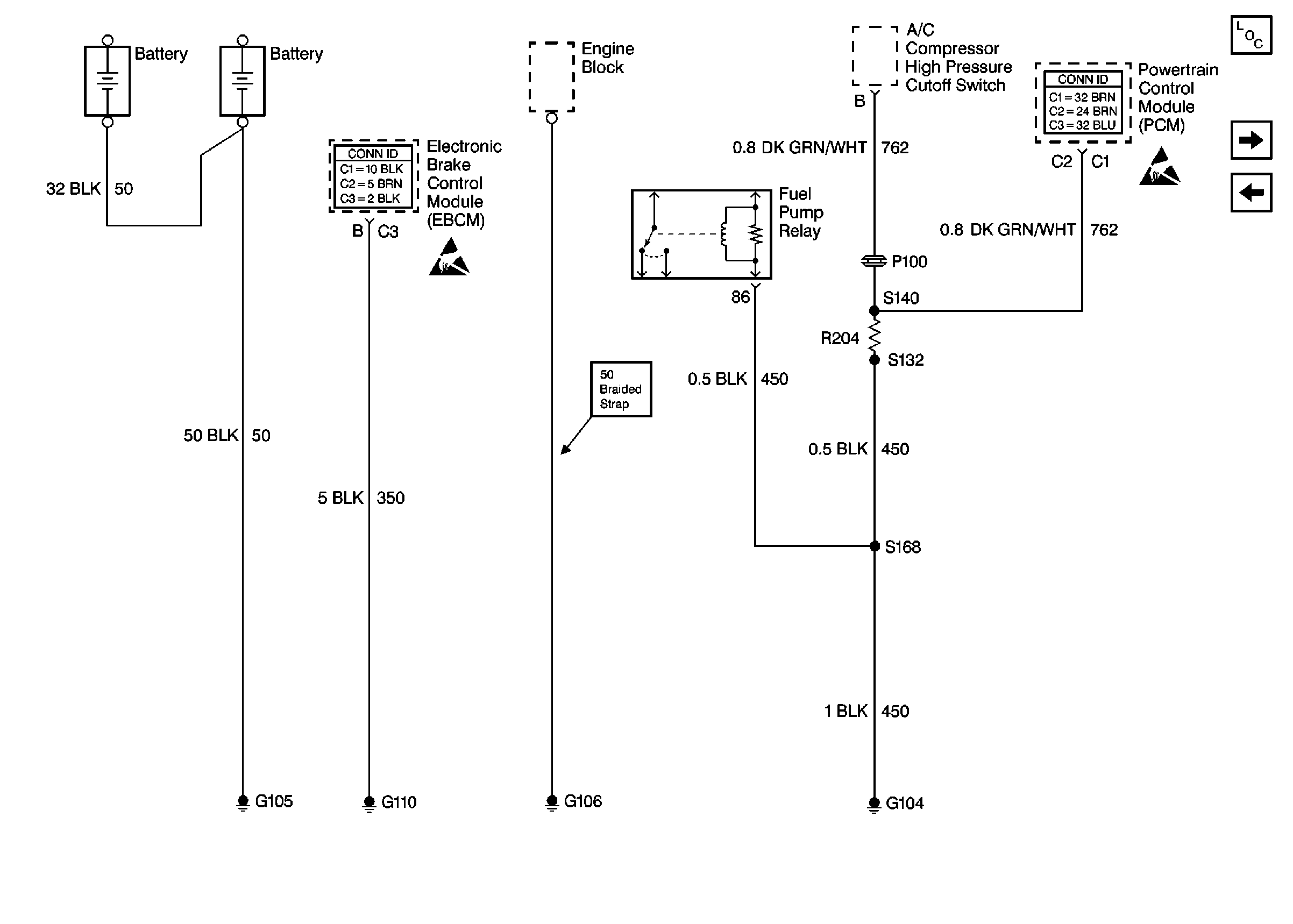
🢒 Cell 14: G104, G105, G106, and G110 [L65]
Cell 14: G104, G105, G106, and G110 [L65]
Cell 14: G104, G105, G106, and G110 [L65]
Power and Grounding Components P32
Cell 14: G105, G106, G110, G400, and G401
Cell 14: S110 [L31/L35]
Handling ESD Sensitive Parts Notice
Handling ESD Sensitive Parts Notice