GM Service Manual Online
For 1990-2009 cars only
Makes
🢒
Chevrolet
🢒
2005
🢒
Cobalt
🢒 Manual Transmission (LSJ)
Manual Transmission (LSJ)
LSJ
Master Electrical Component List
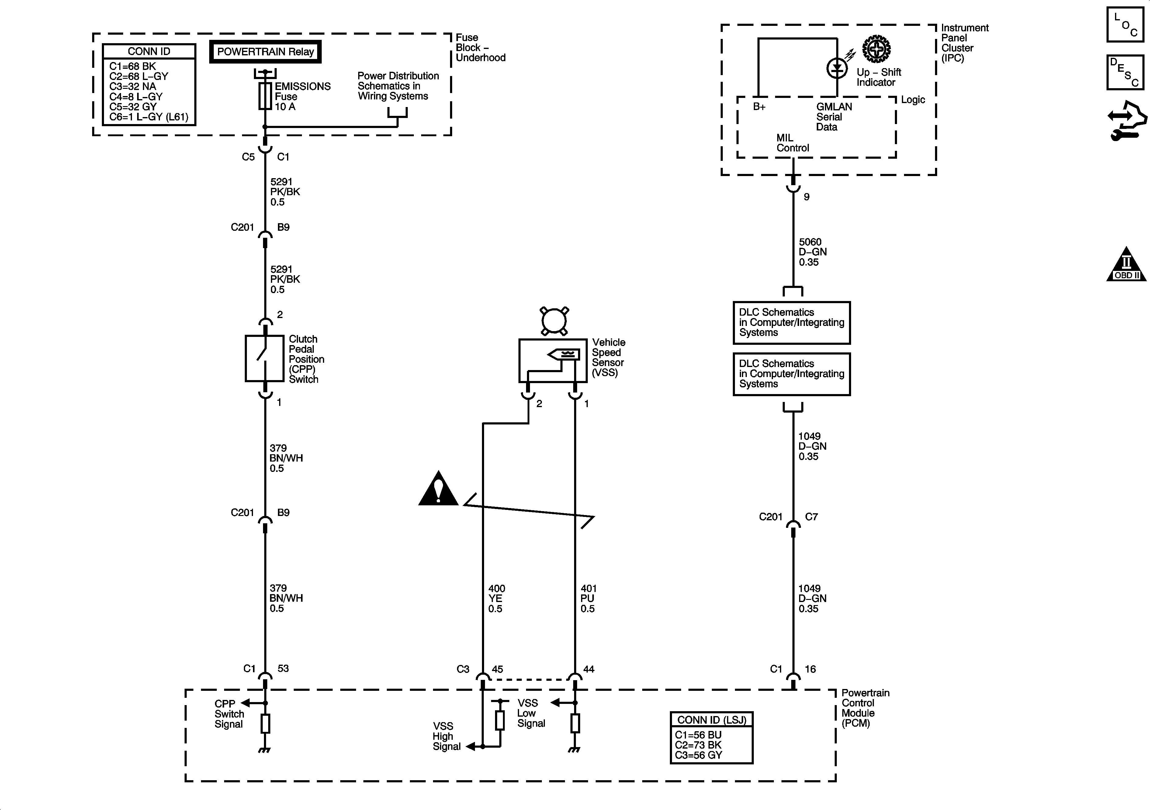
Transmission System Description and Operation
Control Module References
Manual Transmission Schematic Icons
FUEL FUMP Relay, POWERTRAIN Relay, FUEL PMP Fuse, EMISSION Fuse, INJECTORS Fuse, PCM/ECM Fuse
DLC Power, Ground, and Low Speed GMLAN
DLC High Speed, Serial Data, Class 2
Manual Transmission Schematic Icons