GM Service Manual Online
For 1990-2009 cars only
Makes
🢒
Chevrolet
🢒
2005
🢒
Cobalt
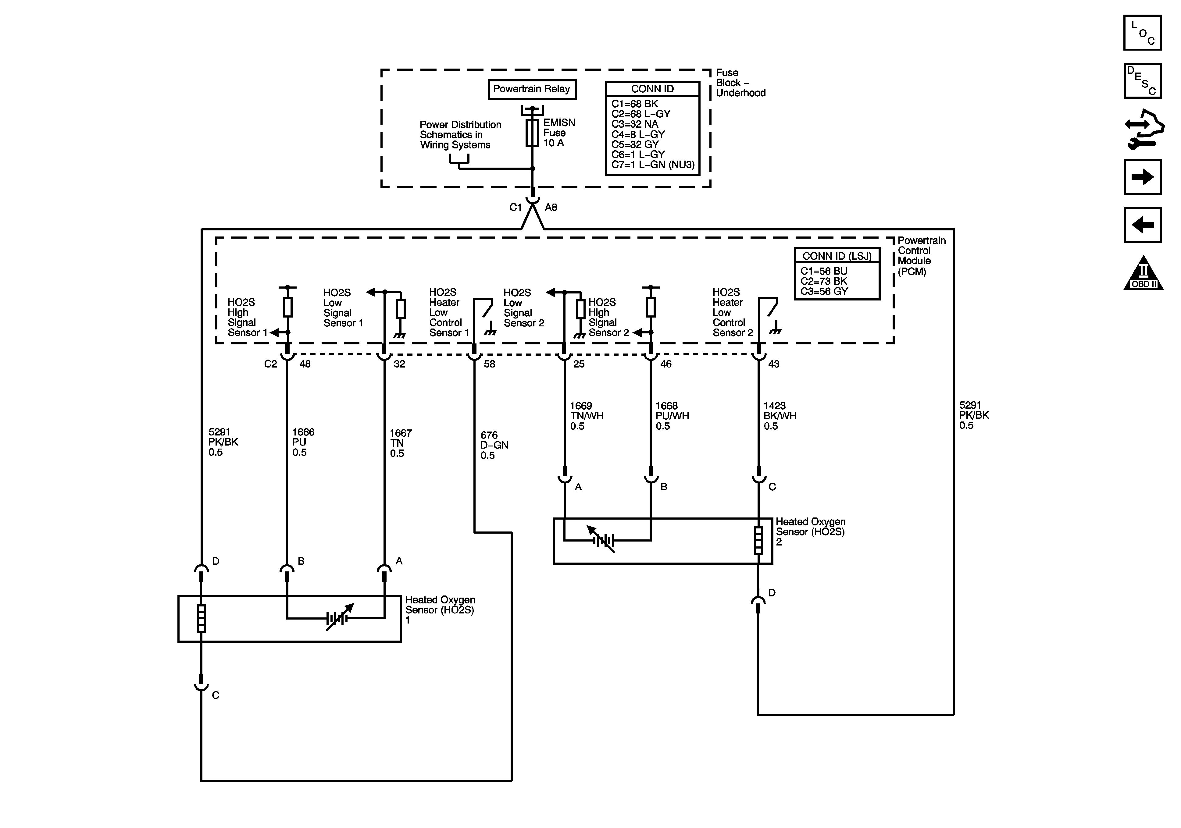
🢒 Engine Data Sensors, HO2S
Engine Data Sensors, HO2S
Engine Data Sensors, HO2S
Master Electrical Component List
Powertrain Control Module Description
Control Module References
Engine Data Sensors, APP and TAC
Engine Data Sensors - MAF/IAT, CKP, KS, CMP, VSS
Engine Controls Schematic Icons
FUEL PUMP, POWERTRAIN Relay, FUEL PUMP, EMISSION, INJECTOR Fuses