GM Service Manual Online
For 1990-2009 cars only
Makes
🢒
Chevrolet
🢒
2005
🢒
Cobalt
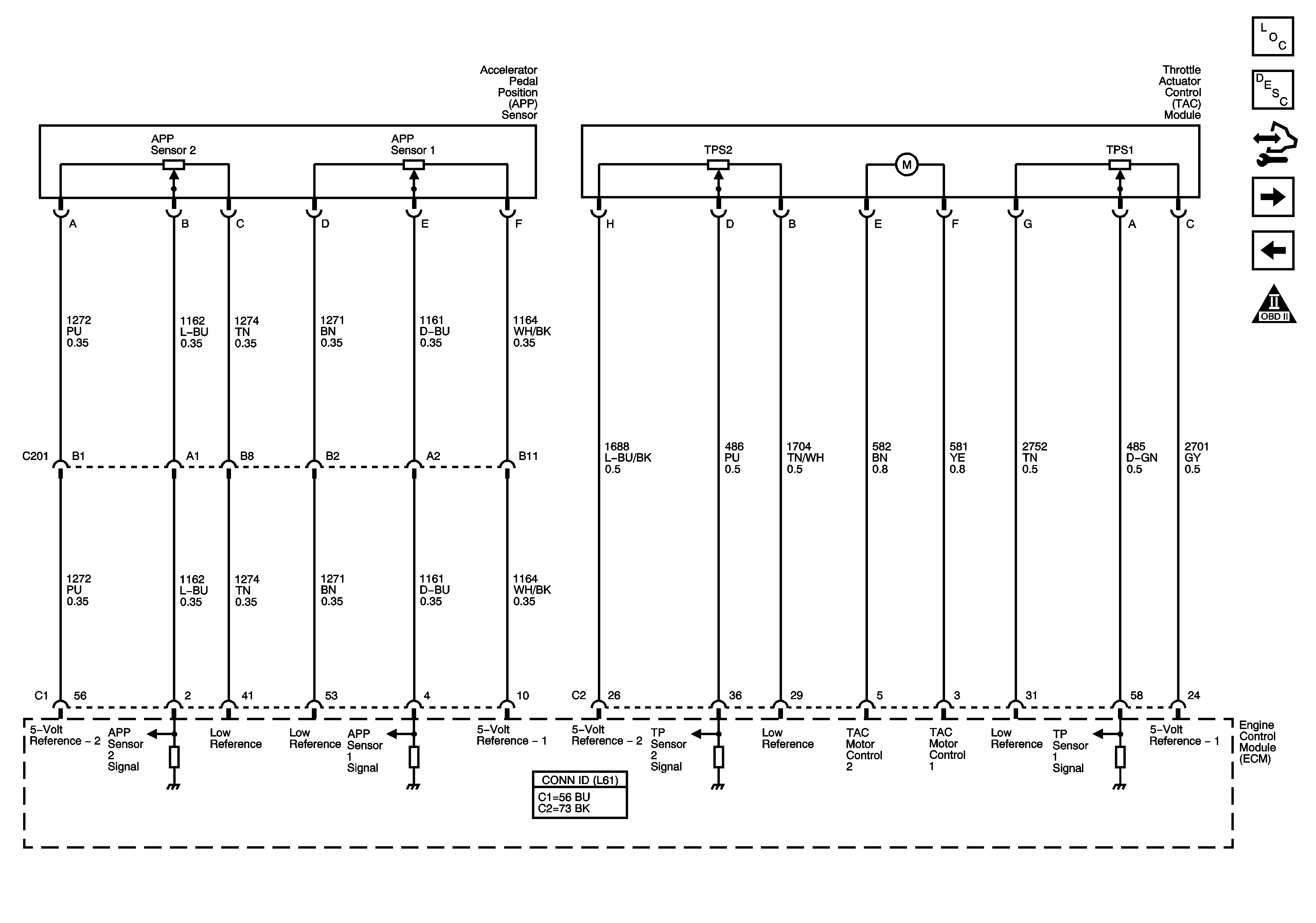
🢒 Engine Data Sensors, APP and TAC
Engine Data Sensors, APP and TAC
Engine Data Sensors, APP and TAC
Master Electrical Component List
Throttle Actuator Control (TAC) System Description
Control Module References
Ignition Controls - Ignition System and Sensors
Engine Data Sensors, HO2S
Engine Controls Schematic Icons