GM Service Manual Online
For 1990-2009 cars only
Makes
🢒
Chevrolet
🢒
2007
🢒
Colorado Pickup - 2WD
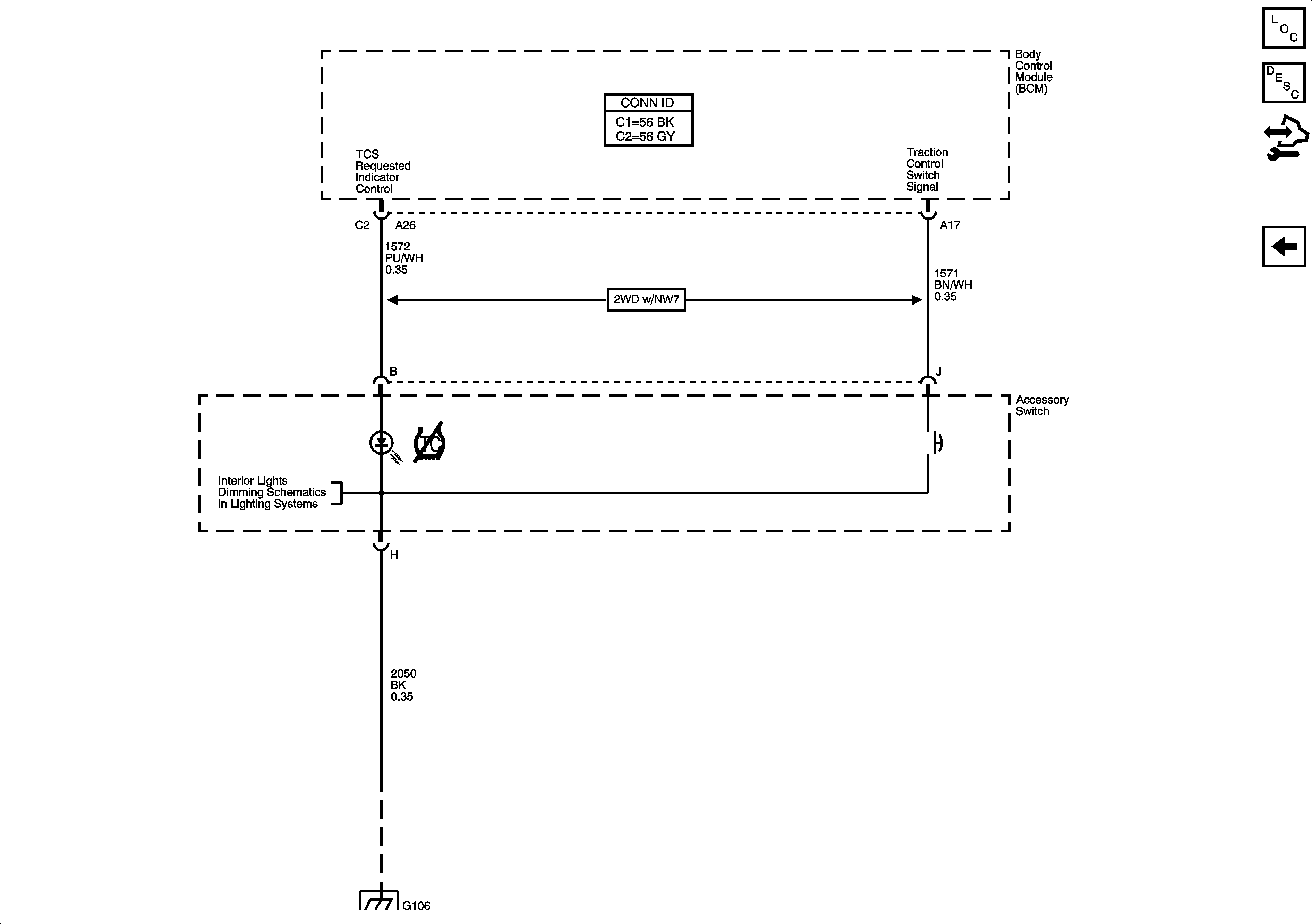
🢒 Traction Control
Traction Control
Traction Control
Master Electrical Component List
ABS Description and Operation
Body Control Module (BCM) Programming/RPO Configuration
Power, Ground, and Electric Brake Control Module
Interior Lights Dimming Schematics
Splice Pack SP106 and G106 - 1 of 2