GM Service Manual Online
For 1990-2009 cars only
Makes
🢒
Chevrolet
🢒
2002
🢒
Corvette
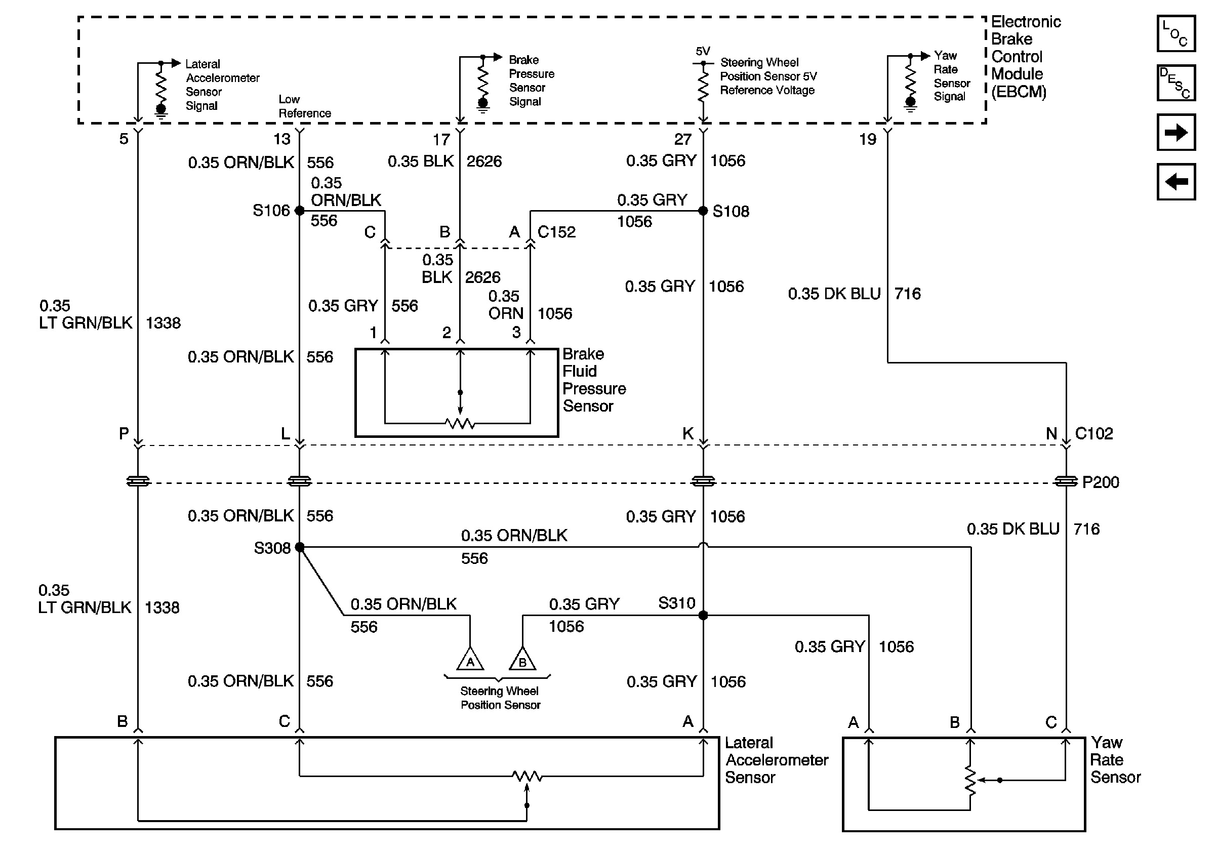
🢒 02 Y-CBrake Fluid Pressure Sensor,Lateral Accelerometer and Yaw Rate Sensor (JL4)
02 Y-CBrake Fluid Pressure Sensor,Lateral Accelerometer and Yaw Rate Sensor (JL4)
Brake Fluid Pressure Sensor, Lateral Accelerometer and Yaw Rate Sensor (JL4)
Master Electrical Component List
ABS Description and Operation
Wheel Speed Sensors
Steering Wheel Position Sensor
Steering Wheel Position Sensor
Steering Wheel Position Sensor