GM Service Manual Online
For 1990-2009 cars only
Makes
🢒
Chevrolet
🢒
2007
🢒
Corvette
🢒
Engine
🢒
Engine Exhaust
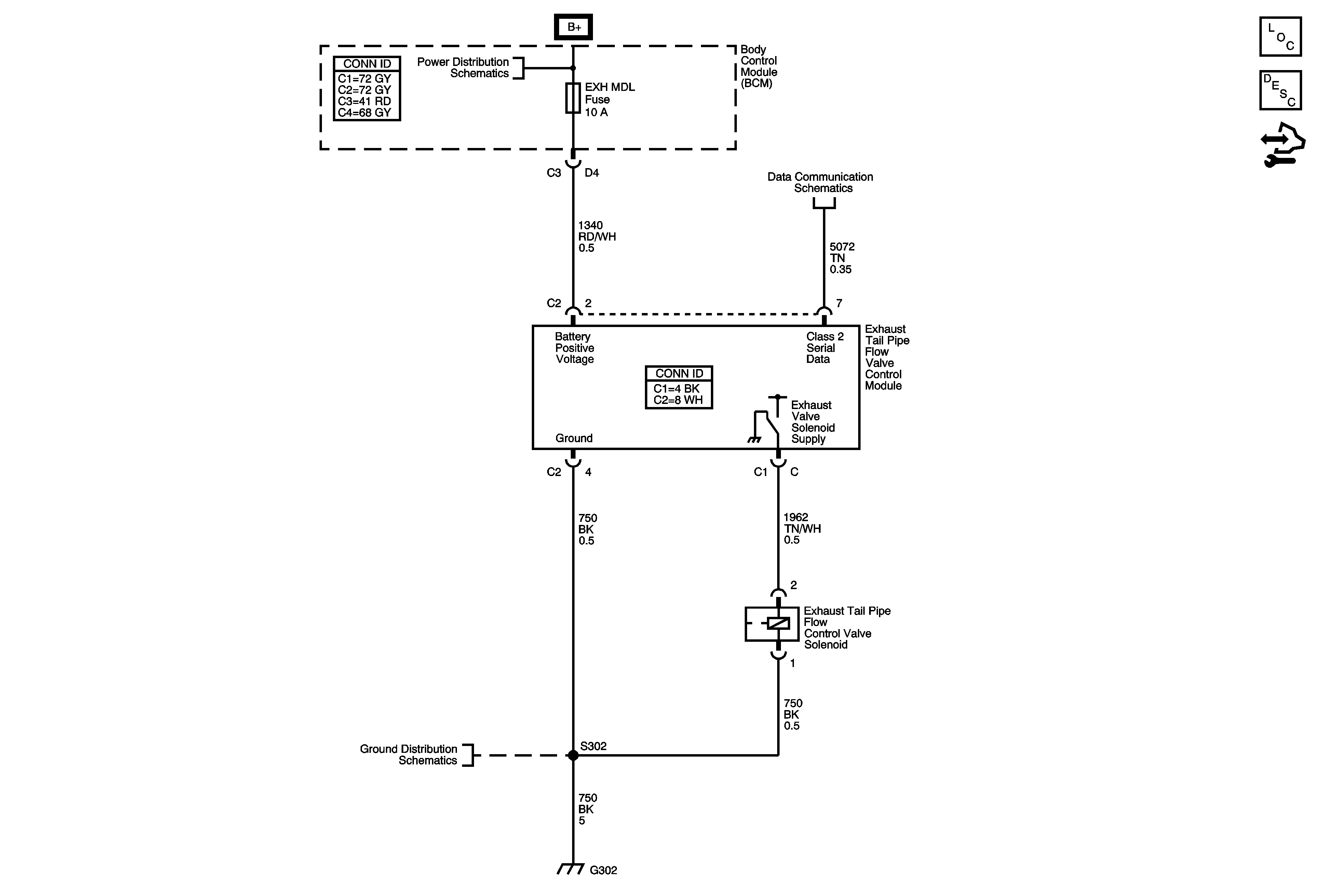
🢒 Exhaust System Schematics
Master Electrical Component List
Exhaust Tail Pipe Flow Control System Description and Operation
Control Module References
BCM Fuses: CLSTR/HUD, CRUISE SWTCH, CTSY/LAMP, DR LCK, EXH MDL, HVAC/PWR SND, ISRVM/HVAC and RUN CRNK Relay
Class 2
G302, G401, and G402
G302, G401, and G402