GM Service Manual Online
For 1990-2009 cars only
Makes
🢒
Chevrolet
🢒
2008
🢒
Corvette
🢒
Seats
🢒
Power Seats
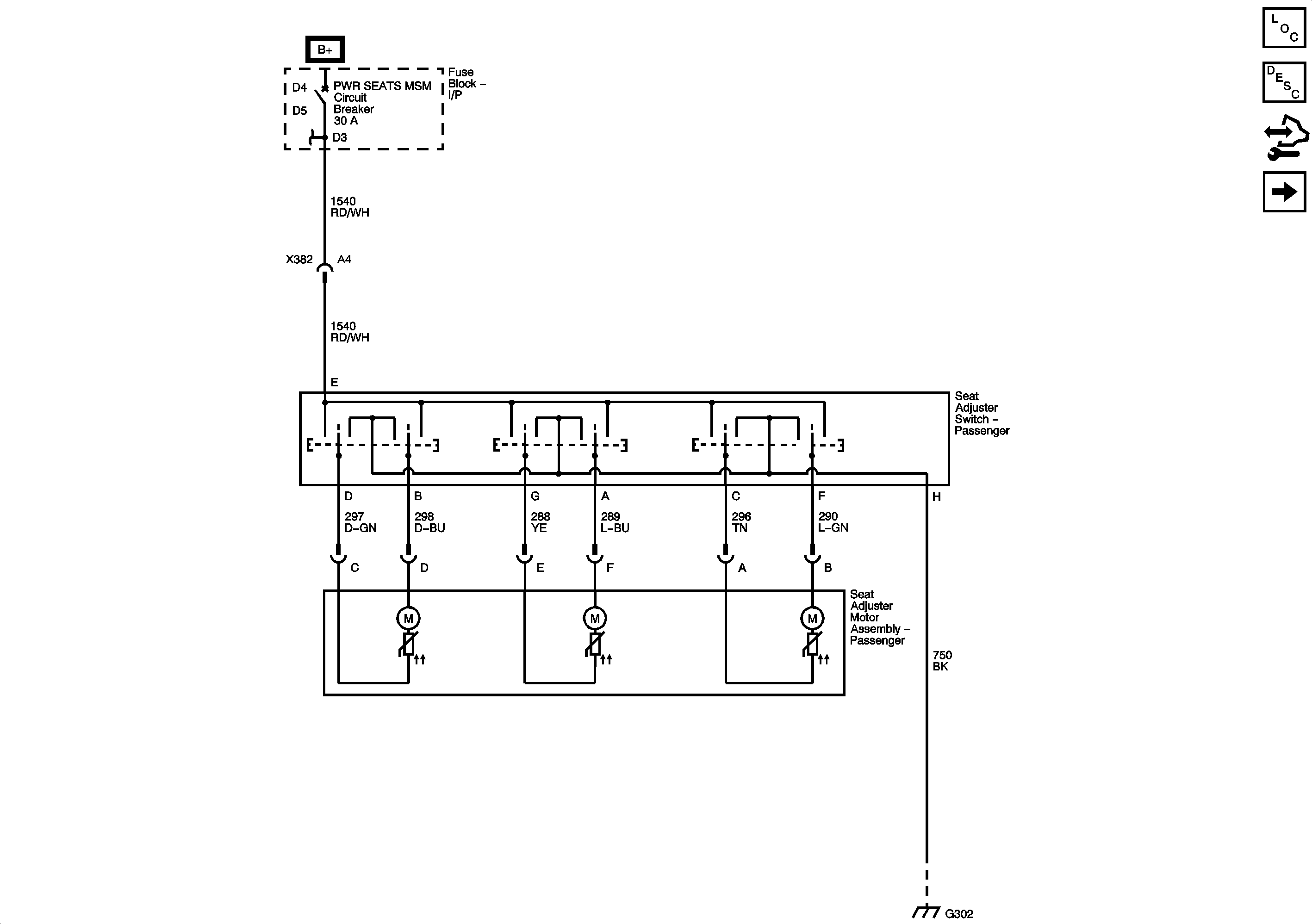
🢒 Passenger Seat Schematics
Figure
1:
6-Way Power Seat
Master Electrical Component List
Power Seats System Description and Operation
Control Module References
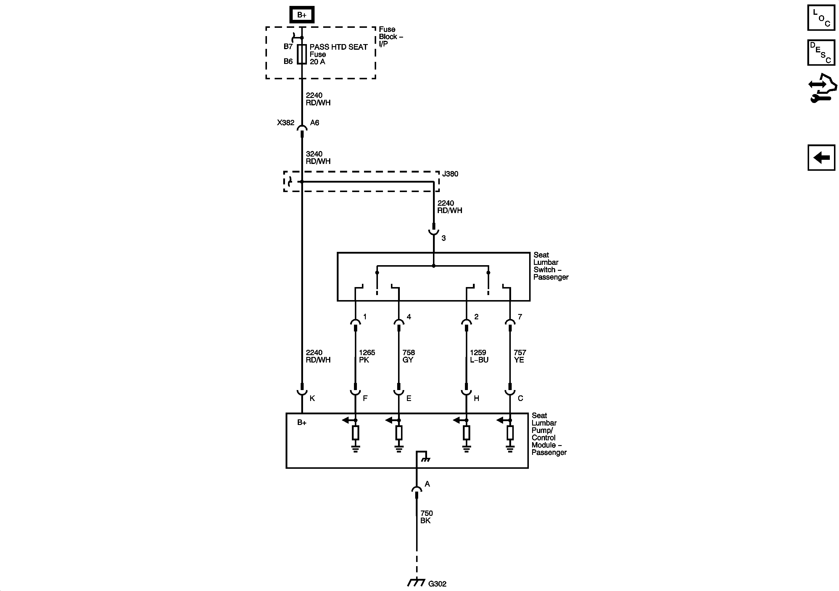
Lumbar Support
Figure
2:
Lumbar Support
Master Electrical Component List
Lumbar Support Description and Operation
Control Module References
6-Way Power Seat