GM Service Manual Online
For 1990-2009 cars only
Makes
🢒
Chevrolet
🢒
2009
🢒
Corvette
🢒
Seats
🢒
Power Seats
🢒 Passenger Seat Schematics
Figure
1:
6-Way Power Seat
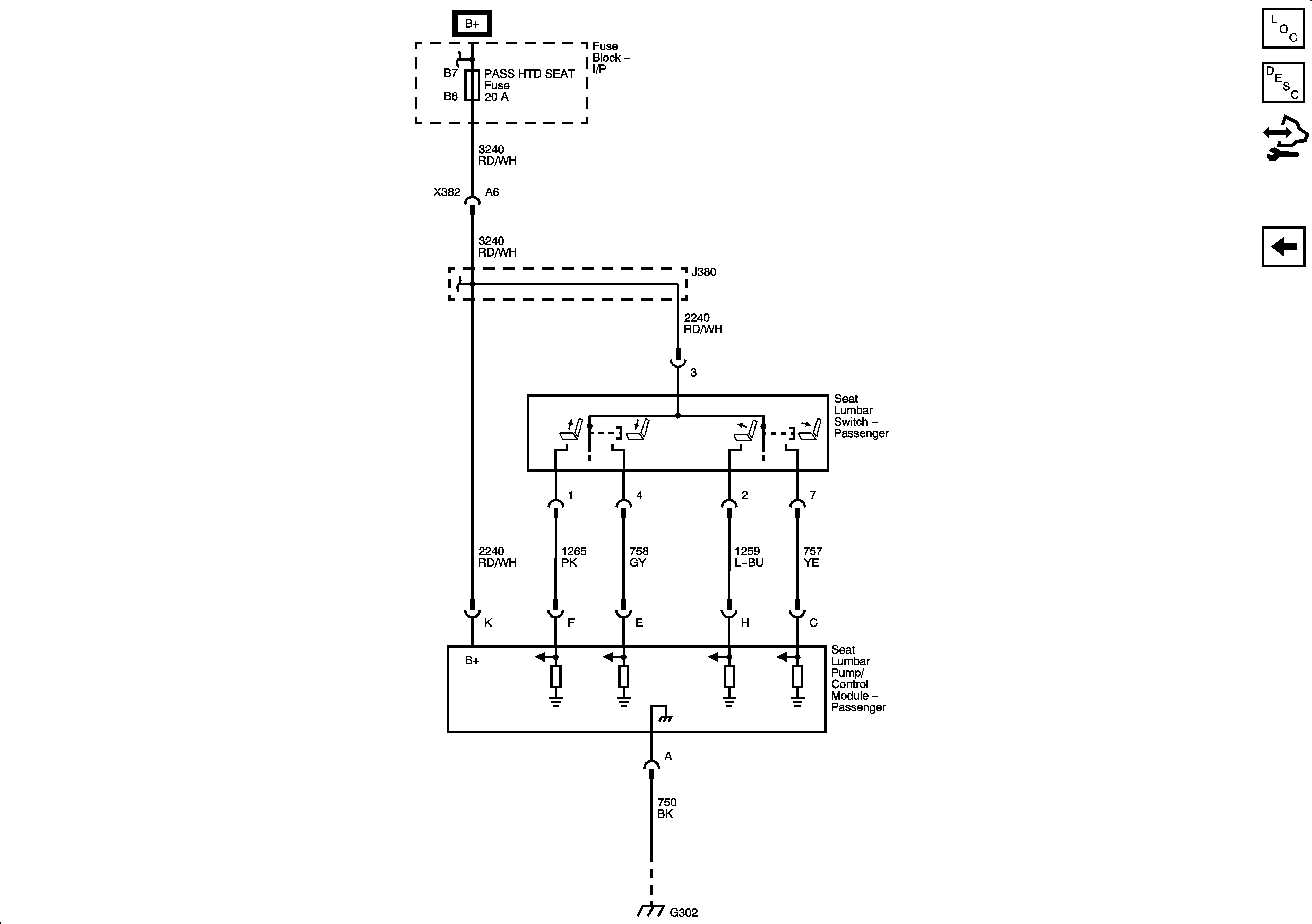
Figure
2:
Lumbar Support