GM Service Manual Online
For 1990-2009 cars only
Makes
🢒
Chevrolet
🢒
2004
🢒
Epica
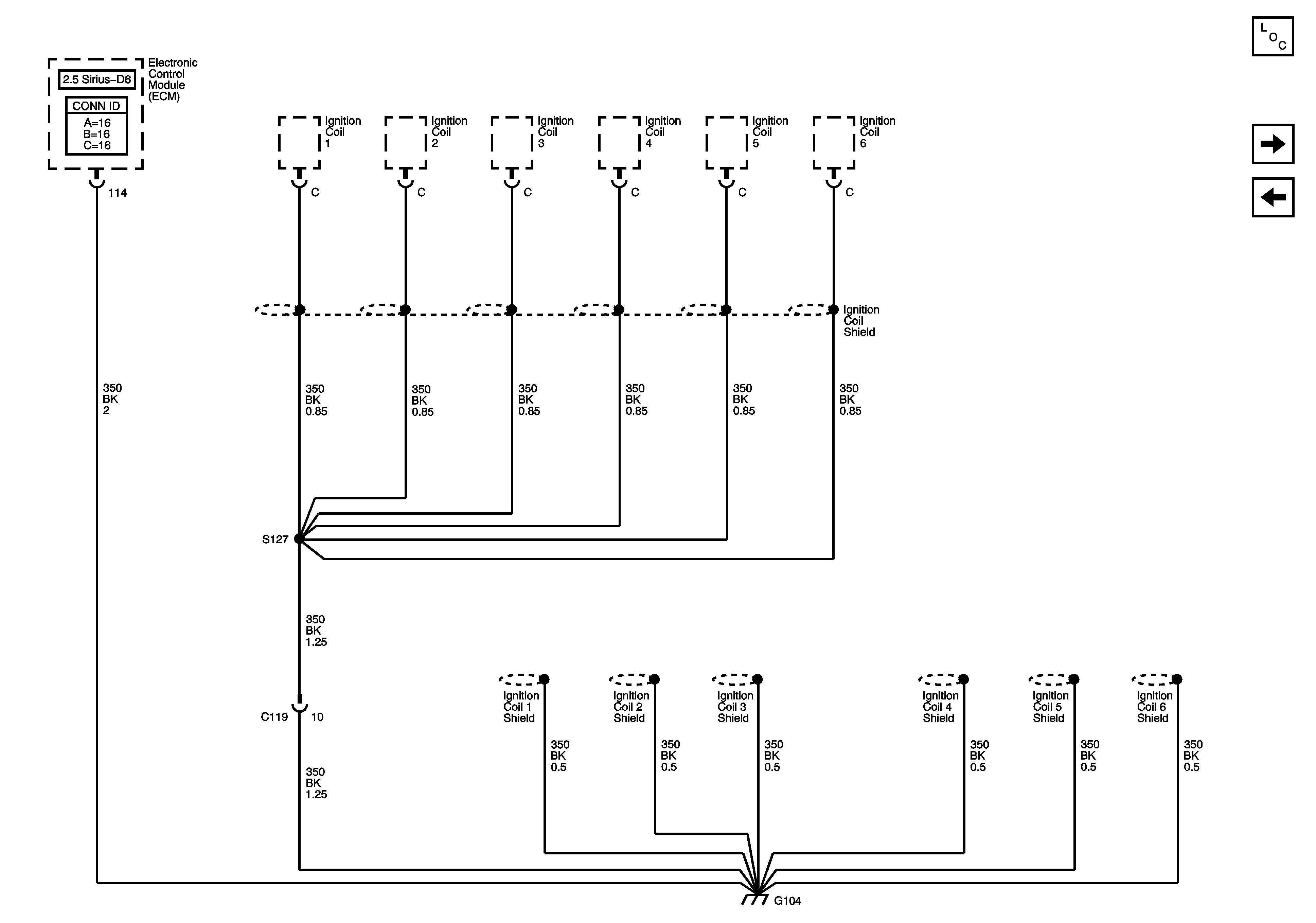
🢒 G104 (2.5L)
G104 (2.5L)
G104 (2.5L)
Master Electrical Component List
G105, G106, G107
G103 (2.5L)