GM Service Manual Online
For 1990-2009 cars only
Makes
🢒
Chevrolet
🢒
2008
🢒
Epica
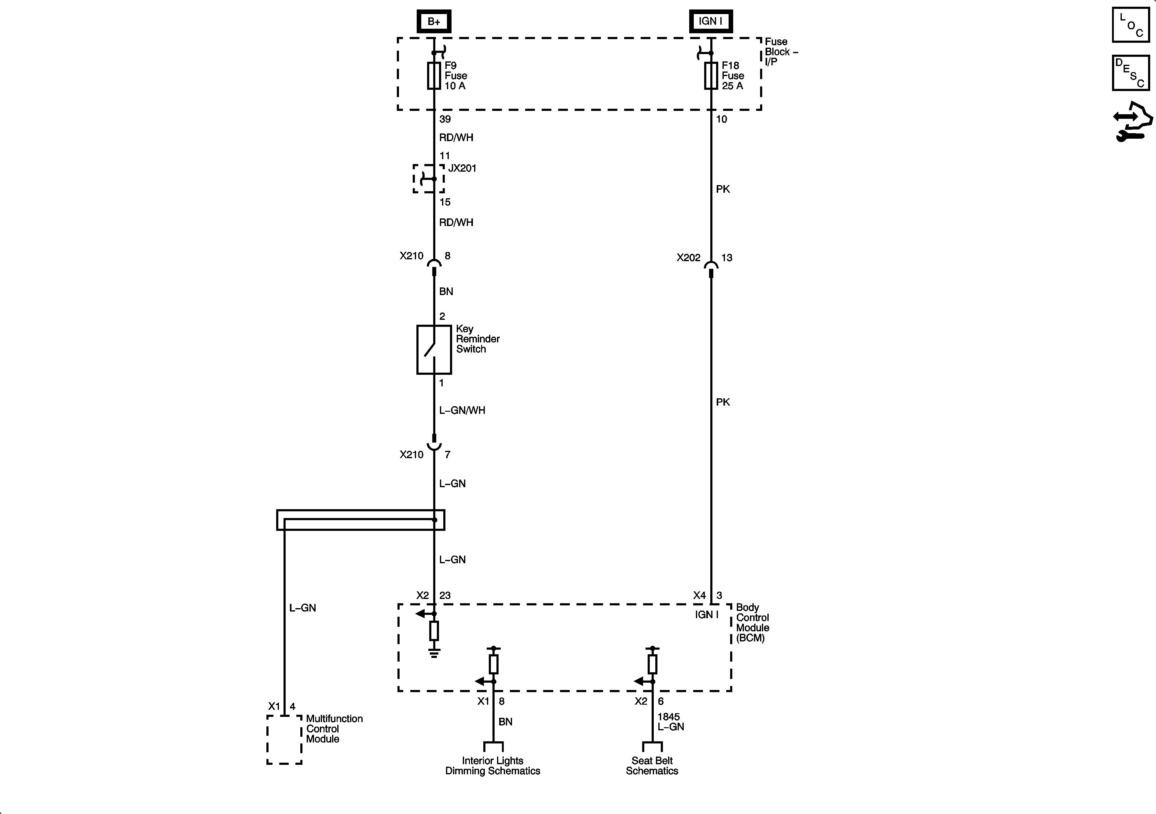
🢒 Audible Warnings Schematics
Audible Warnings Schematics
Master Electrical Component List
Audible Warnings Description and Operation
Control Module References
Fuse Block - I/P F8, F9, F15, F22, F23 Fuses
Ignition Switch
Fuse Block - I/P F8, F9, F15, F22, F23 Fuses
Dimming Control
Seat Belt Schematics