GM Service Manual Online
For 1990-2009 cars only
Figure 1:

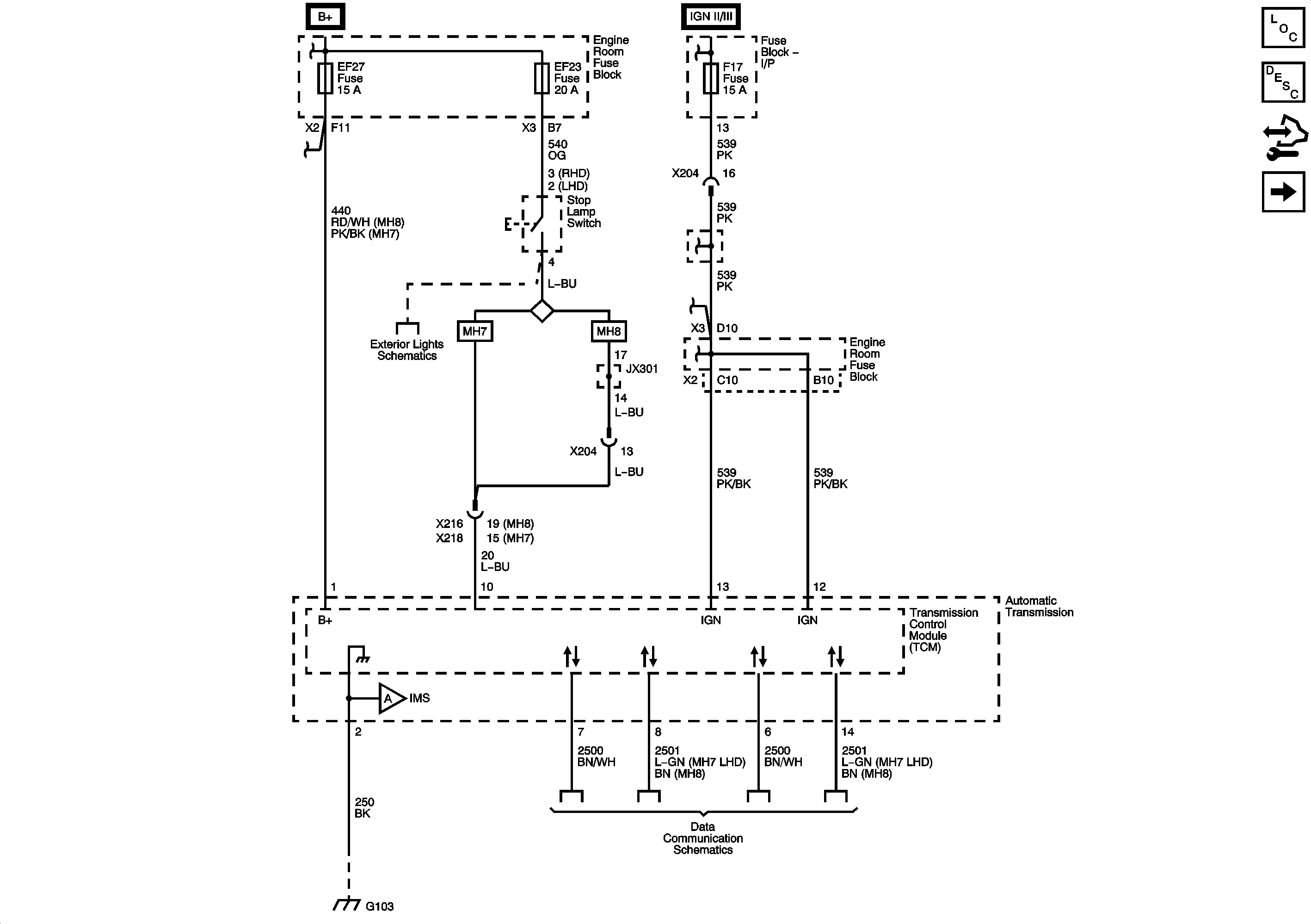
Power, Ground, Stop Lamp, Serial Data


Object Number: 2077783  Size: FS
Figure 2:

Solenoids, TFT Sensor, TFP Switch


Object Number: 2077793  Size: FS
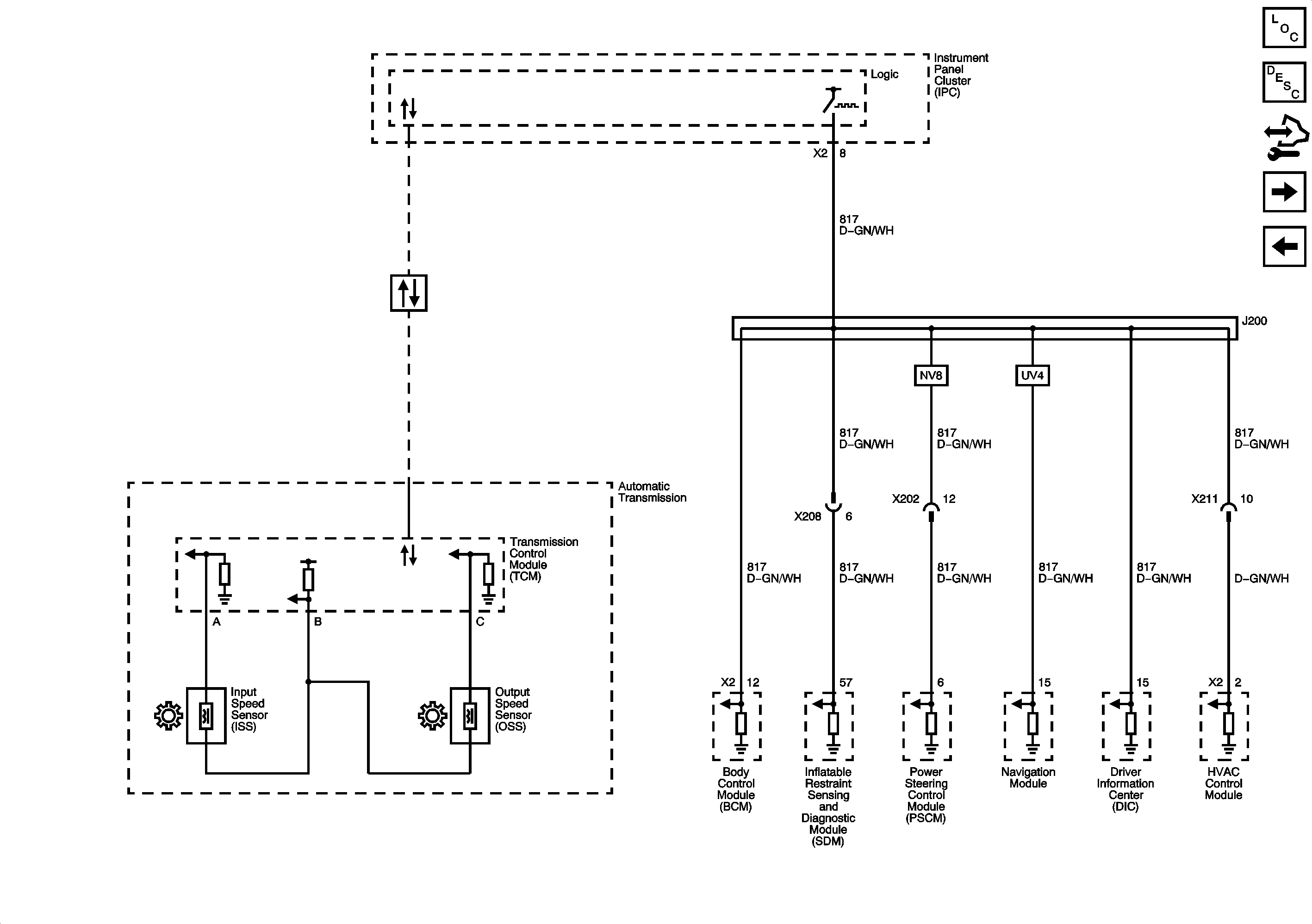
Figure 3:

Speed Sensors


Object Number: 2077799  Size: FS
Figure 4:

IMS, Tap Up/Tap Down Switches


Object Number: 2077802  Size: FS