Refer to
VSS Controls
.
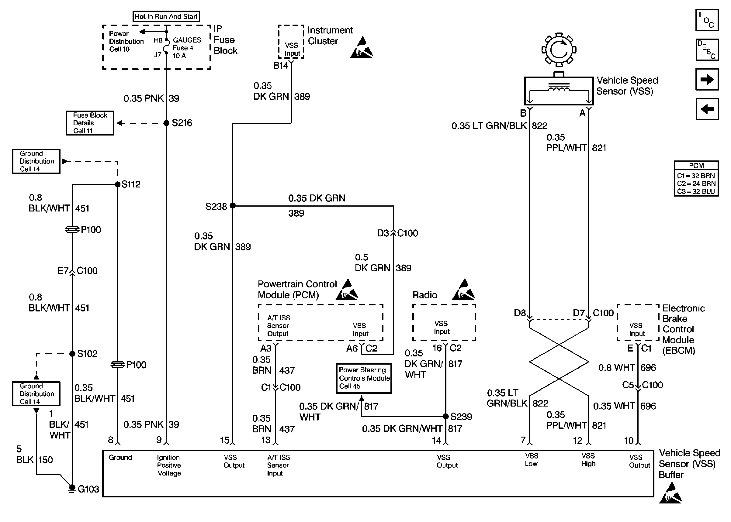
The speed sensor circuit consists of a magnetic induction type sensor, a vehicle speed sensor buffer module and wiring. The gear teeth pressed on the output shaft induces an alternating current in the sensor. This signal is transmitted to the buffer. The buffer compensates for various axle ratios and converts the signal into a square wave for use by the speedometer, the cruise control, the antilock brake and the PCM. The buffer sends two different signals to the PCM. This is a type D DTC.
| • | The vehicle speed is greater than 20 mph. |
| • | The four wheel low is not selected. |
| • | The VSS buffer calculated speed is less than half of the transmission calculated speed. |
or
| • | The VSS buffer calculated speed is greater than the transmission calculated speed by 20 mph. |
| • | All of the conditions must be met for 2 seconds. |
No cruise control
| • | A History DTC will clear after forty consecutive warm-up cycles during which the diagnostic does not fail (the coolant temperature has risen 5°C (40°F) from the start up coolant temperature and the engine coolant temperature exceeds 71°C (160°F) during that same ignition cycle). |
| • | Use of a Scan tool will clear the DTC codes. |
Check the connections at the VSS buffer and the PCM. Refer to 4L80E Diagnostic Trouble Codes if DTC P0722 or DTC P0723 is also set.
Number(s) below refer to number(s) on the Diagnostic Table.
This tests for B+ at VSS buffer.
This tests for proper ground path for vehicle speed sensor signal buffer.
Step | Action | Value(s) | Yes | No |
|---|---|---|---|---|
1 |
Important: Before clearing DTCs use the scan tool Capture Info to record freeze frame and failure records for reference, as data will be lost when Clear Info function is used. Was the Powertrain On-Board Diagnostic (OBD) System Check performed? | -- | ||
2 |
With drive wheels rotating, does vehicle speed increase with drive wheel speed increase? | -- | ||
Is test light ON? | -- | |||
Back probe VSS buffer module ignition feed circuit to the ground circuit with a test light. Is the test light ON? | -- | |||
5 |
Does voltage increase on J 39200 with drive wheel increase? | -- | ||
6 | Does scan tool display a trans output speed (MPH) increase with drive wheel increase? | -- | ||
7 | DTC is intermittent. If no additional DTCs are stored, refer to Diagnostic Aids. If additional DTCs are stored refer to those table(s) first. Are any additional DTCs stored? | -- | Go to the Applicable DTC Table | Go to Diagnostic Aids |
8 | Repair the open in the ignition feed circuit. Is the action complete? | -- | -- | |
9 | Repair the open in the ground circuit. Is the action complete? | -- | -- | |
10 | Check the complete VSS input circuit for an open or short to ground. Was a repair performed? | -- | ||
11 |
Was a problem found? | -- | ||
12 |
Is there voltage present? | -- | ||
13 | Check VSS output circuit for an open or short to ground. Was a repair performed? | -- | ||
14 | Check VSS output circuit for a poor connections at the PCM. Was a repair performed? | -- | ||
15 | Replace the Vehicle Speed Sensor. Is the action complete? | -- | -- | |
16 | Replace VSS Buffer module. Refer to Vehicle Speed Signal Buffer . Is the action complete? | -- | -- | |
17 | Replace the PCM. Important: The new PCM must be programmed. Refer to Powertrain Control Module Replacement/Programming . Is the action complete? | -- | -- | |
18 |
Does the Scan Tool indicate that the diagnostic Passed? | -- | ||
19 | Using the Scan Tool, select Capture Info, Review Info. Are any DTCs displayed that have not been diagnosed? | -- | Go to the Applicable DTC Table | System OK |