GM Service Manual Online
For 1990-2009 cars only
Makes
🢒
Chevrolet
🢒
2000
🢒
Express
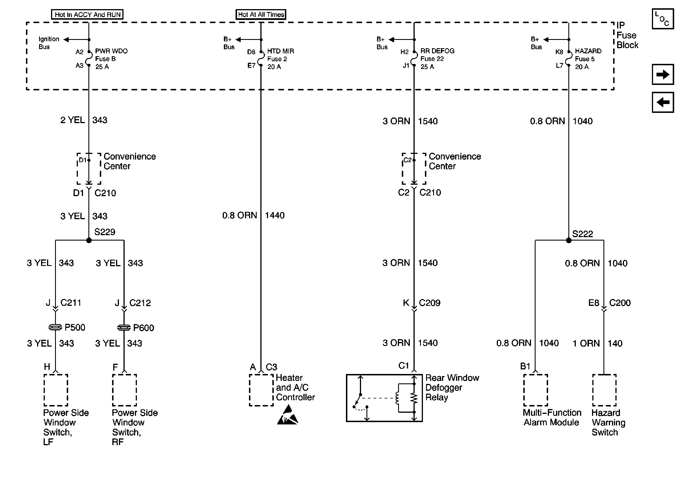
🢒 PWR WDO, HTD MIR, RR DEFOG, and HAZARD Fuses
PWR WDO, HTD MIR, RR DEFOG, and HAZARD Fuses
PWR WDO, HTD MIR, RR DEFOG, and HAZARD Fuses
Power and Grounding Components
PWR ACCY Fuse
LH HDLP, LH HIBM, RH HDLP, and RH HIBM Fuses
IGN A, IGN B Fuses, and Ignition Switch
LIGHTING and BATT Fuses
LIGHTING and BATT Fuses
LIGHTING and BATT Fuses
Handling ESD Sensitive Parts Notice