GM Service Manual Online
For 1990-2009 cars only
Makes
🢒
Chevrolet
🢒
2007
🢒
Express
🢒 Engine Data Sensors - Pressure and High Idle Switch
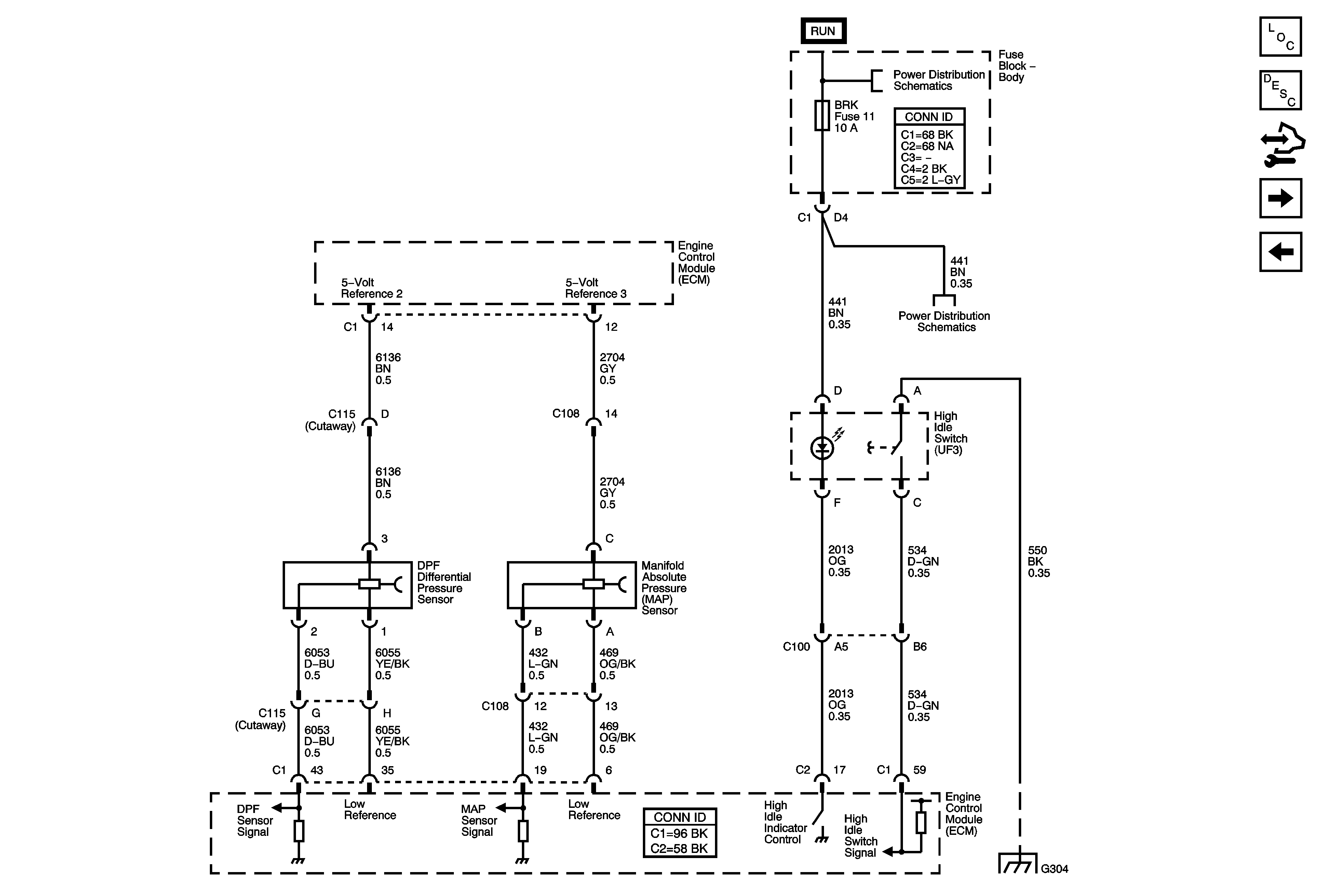
Engine Data Sensors - Pressure and High Idle Switch
Engine Data Sensors - Pressure and High Idle Switch
Master Electrical Component List
Engine Control Module Description
Control Module References
Engine Data Sensors - EGR and Turbocharger Controls
Engine Data Sensors - Temperature, AI and MAF
Ignition Switch - ACCY/RUN/START, RUN, START Bus Bars and IGN A Fuse
BRK, CRNK, FRT WPR, HVAC, ING 0, TBC ACCY and TBC/TCM ACCY Fuses
G304