GM Service Manual Online
For 1990-2009 cars only
Makes
🢒
Chevrolet
🢒
2008
🢒
Impala
🢒
Diagnostic Navigation
🢒
Vehicle Diagnostic Information
🢒 Hydraulic Brake Schematics
Master Electrical Component List
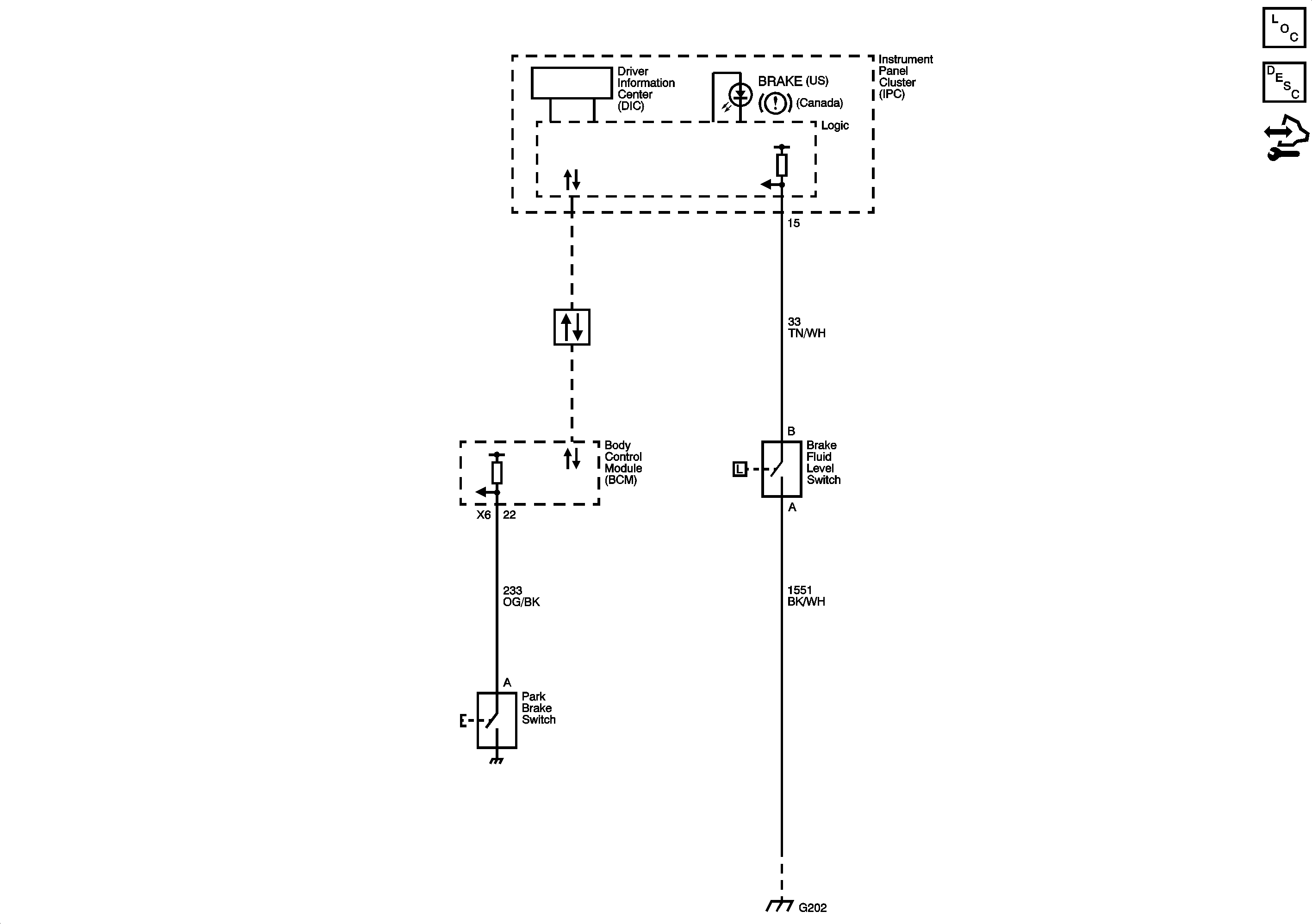
Brake Warning System Description and Operation
Control Module References
Power, Ground, and Low Speed GMLAN Serial Data
G202, and G204