GM Service Manual Online
For 1990-2009 cars only
Makes
🢒
Chevrolet
🢒
2000
🢒
Prizm
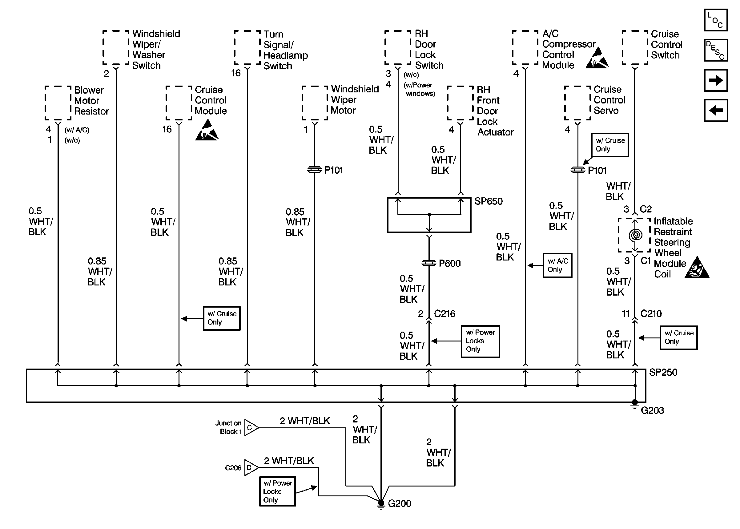
🢒 Cell 14: G200, G203, SP250 and SP650
Cell 14: G200, G203, SP250 and SP650
Cell 14: G200, G203, SP250 and SP650
Power and Grounding Components
Cell 14: G204 and SP256
Cell 14: G106 (2 of 2)
Handling ESD Sensitive Parts Notice
Handling ESD Sensitive Parts Notice
SIR Caution