GM Service Manual Online
For 1990-2009 cars only
Makes
🢒
Chevrolet
🢒
2000
🢒
S10 Pickup - 2WD
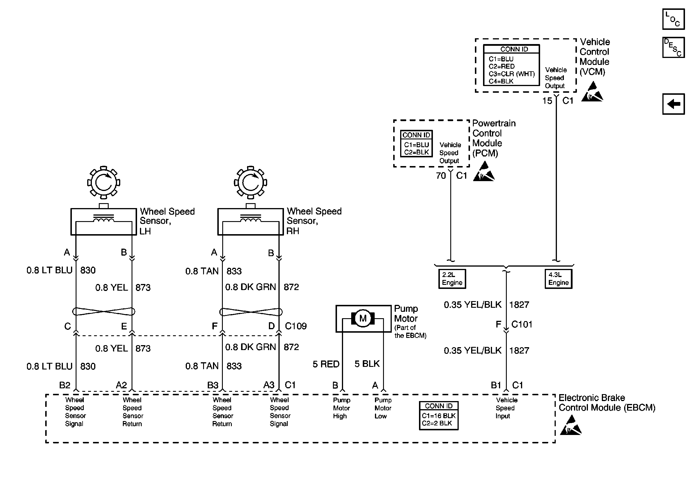
🢒 Speed Sensor Signals (325 ABS)
Speed Sensor Signals (325 ABS)
Speed Sensor Signals (325 ABS)
ABS Components
ABS Operation
Class 2 Communication (325 ABS)
VCM Connector End Views
Handling ESD Sensitive Parts Notice
Powertrain Control Module Connector End Views
Handling ESD Sensitive Parts Notice
Antilock Brake System Connector End Views
Handling ESD Sensitive Parts Notice