GM Service Manual Online
For 1990-2009 cars only
Makes
🢒
Chevrolet
🢒
2000
🢒
S10 Pickup - 2WD
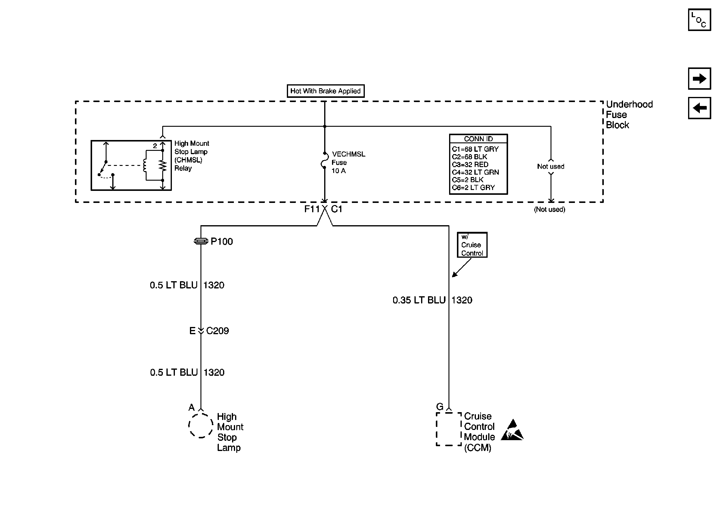
🢒 VECHMSL Fuse and CHMSL Relay
VECHMSL Fuse and CHMSL Relay
VECHMSL Fuse and CHMSL Relay
Power and Grounding Components
RT TURN and RT TRN Fuses
HVAC and CRUISE Fuses
STOP LP, HAZ LP, TURN Fuses and Turn and Hazard Switch
Power and Grounding Connector End Views
Handling ESD Sensitive Parts Notice