GM Service Manual Online
For 1990-2009 cars only
Makes
🢒
Chevrolet
🢒
2000
🢒
S10 Pickup - 2WD
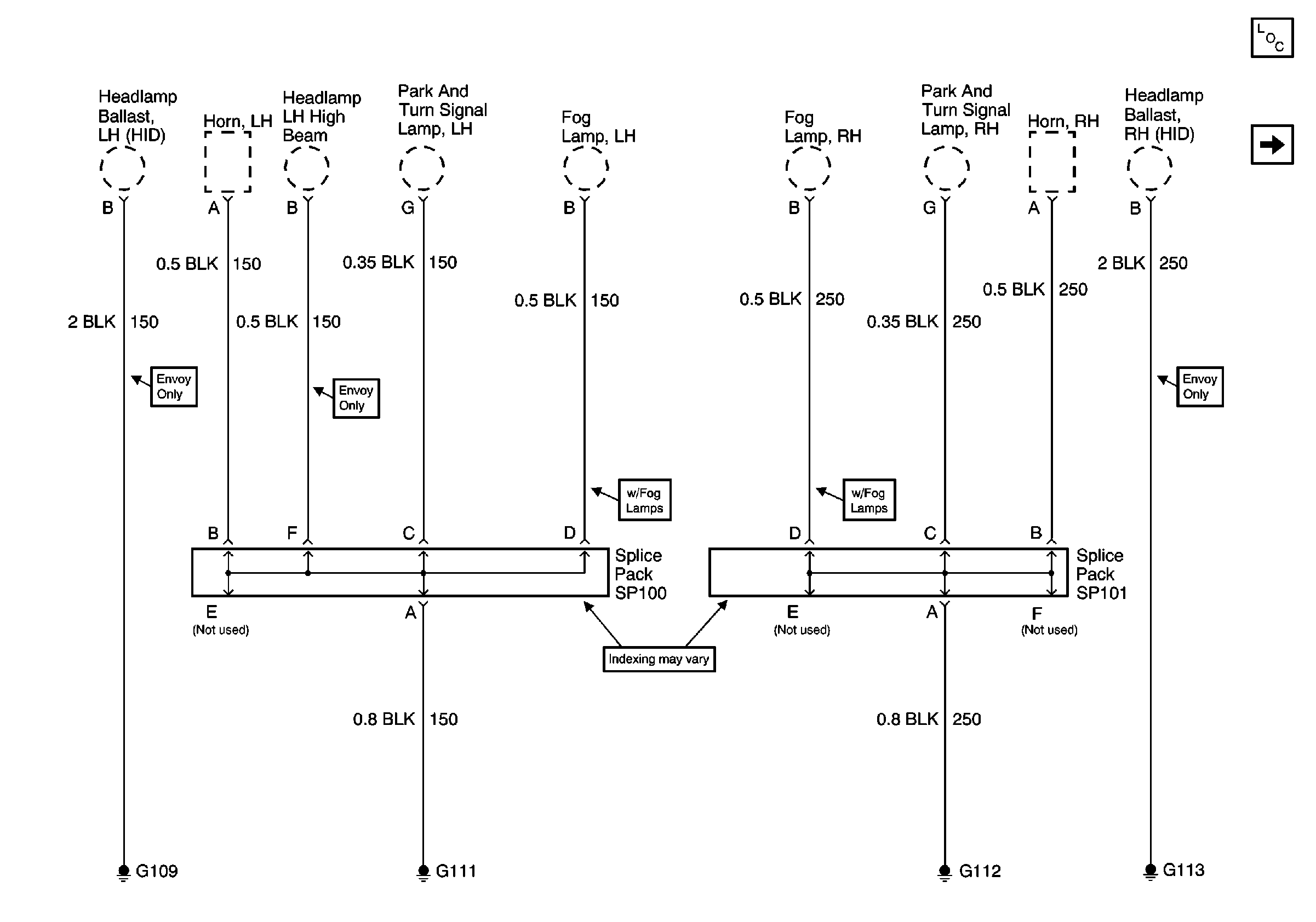
🢒 G109, G111, G112 and G113 (Except Export)
G109, G111, G112 and G113 (Except Export)
G109, G111, G112 and G113 (Except Export)
Power and Grounding Components
G111 and G112 (Export)