GM Service Manual Online
For 1990-2009 cars only
Makes
🢒
Chevrolet
🢒
2003
🢒
SSR
🢒
Body and Accessories
🢒
Wiring Systems
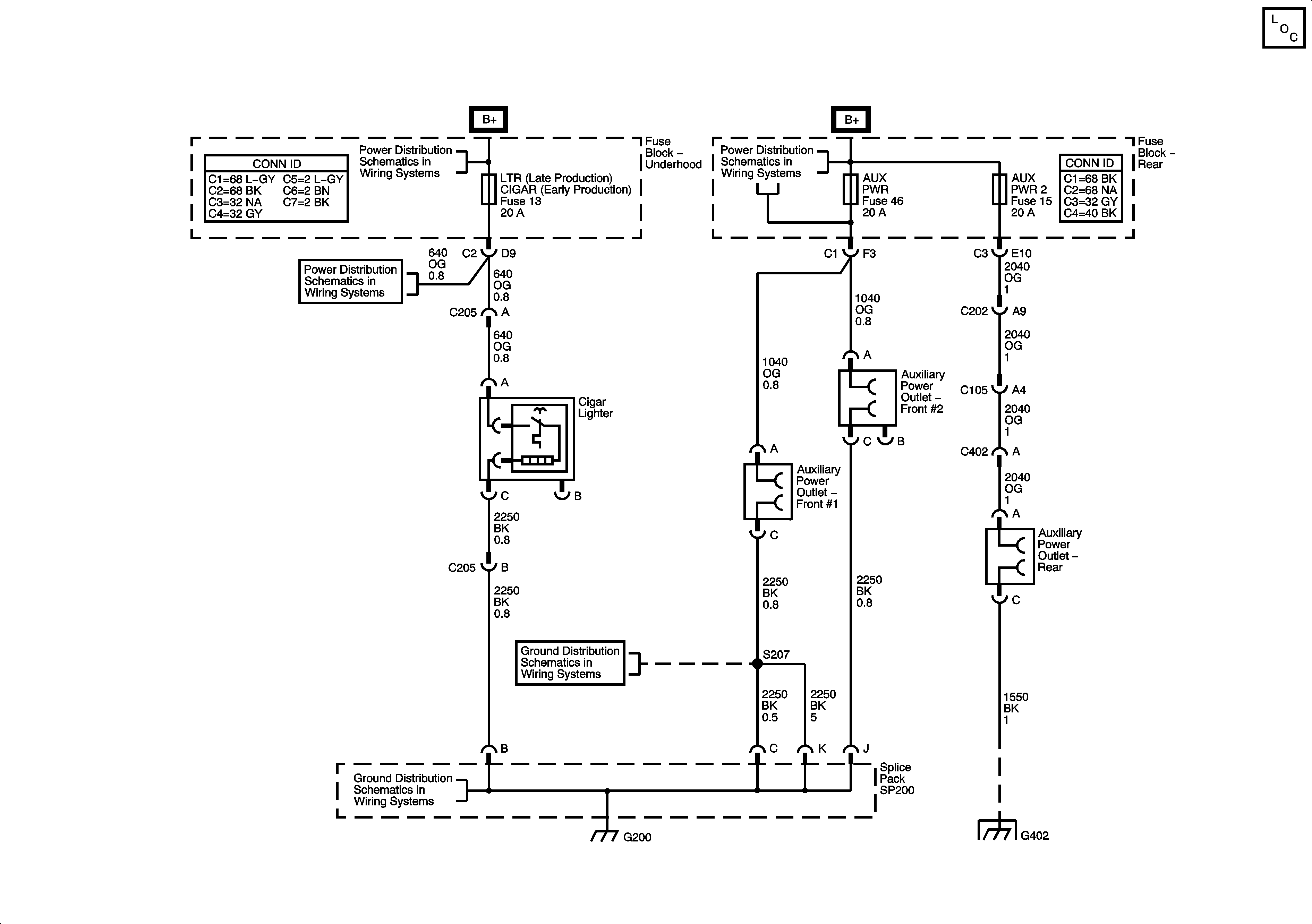
🢒 Cigar Lighter/Power Outlet Schematics
Master Electrical Component List
ENG CLN FAN, ABS, BLOWER, CIGAR and ST/LP Fuses
B+ BUS - Fuse Block Underhood
RDM 2, AUX PWR 2, DRL, AUX PWR, TBC 2, TBC 3 and TBC 4 Fuses
G200
G200
G400, G401, G402, G403, G404, G405