GM Service Manual Online
For 1990-2009 cars only
Makes
🢒
Chevrolet
🢒
2004
🢒
SSR
🢒
Accessories
🢒
Power Outlets
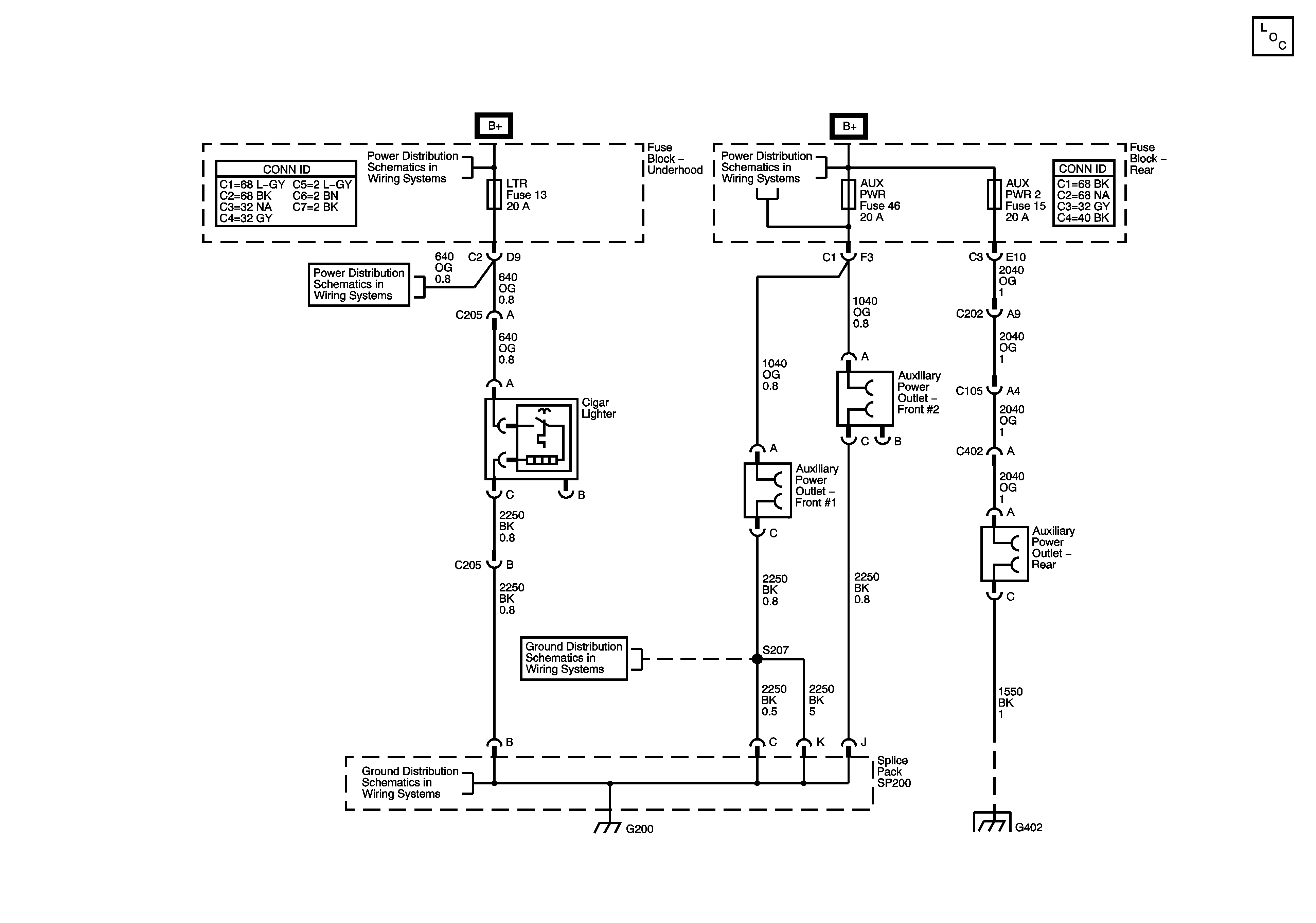
🢒 Cigar Lighter/Power Outlet Schematics
Master Electrical Component List
ENG, GLN FAN, ABS, BLWR, LTR, ST/LP Fuses
B+ Bus - Fuse Block Underhood
B+ Bus - Fuse Block Rear
G200
G200
G400, G401, G402, G402, G404, G405