GM Service Manual Online
For 1990-2009 cars only
Makes
🢒
Chevrolet
🢒
2009
🢒
Silverado - 4WD
🢒
Safety and Security
🢒
Remote Functions
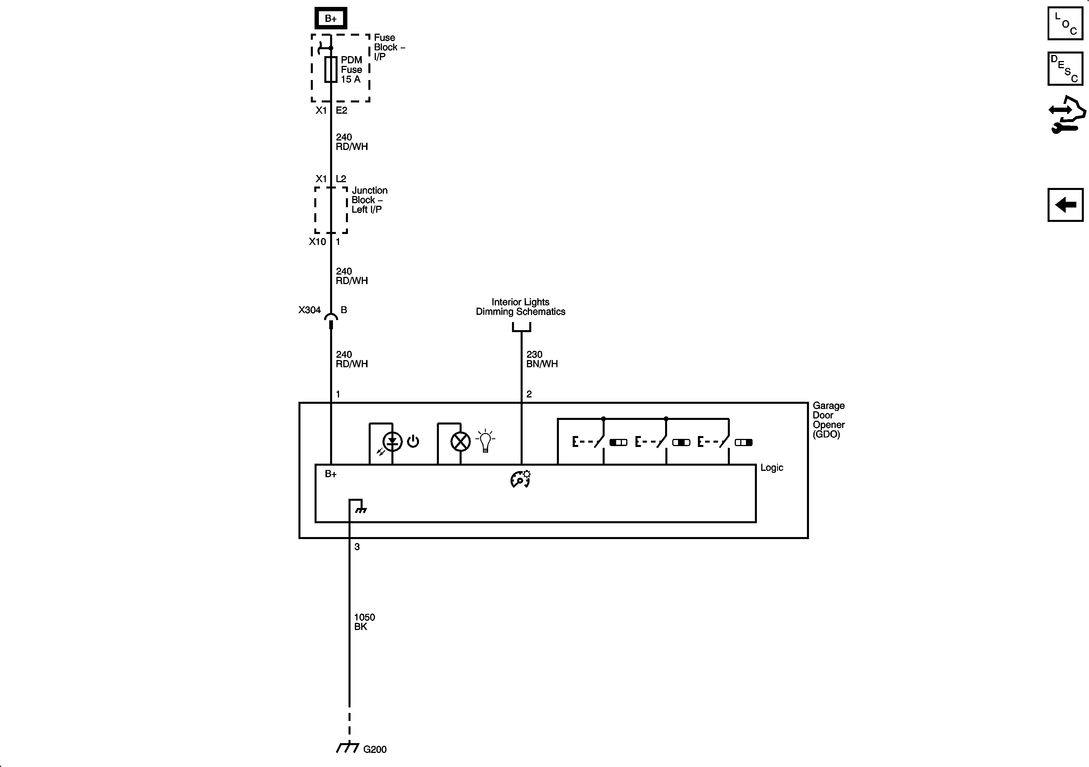
🢒 Remote Function Schematics
Figure
1:
Keyless Entry
Figure
2:
Garage Door Opener