GM Service Manual Online
For 1990-2009 cars only
Makes
🢒
Chevrolet
🢒
2005
🢒
Spark
🢒
Brakes
🢒
Park Brake
🢒 Park Brake System Schematics
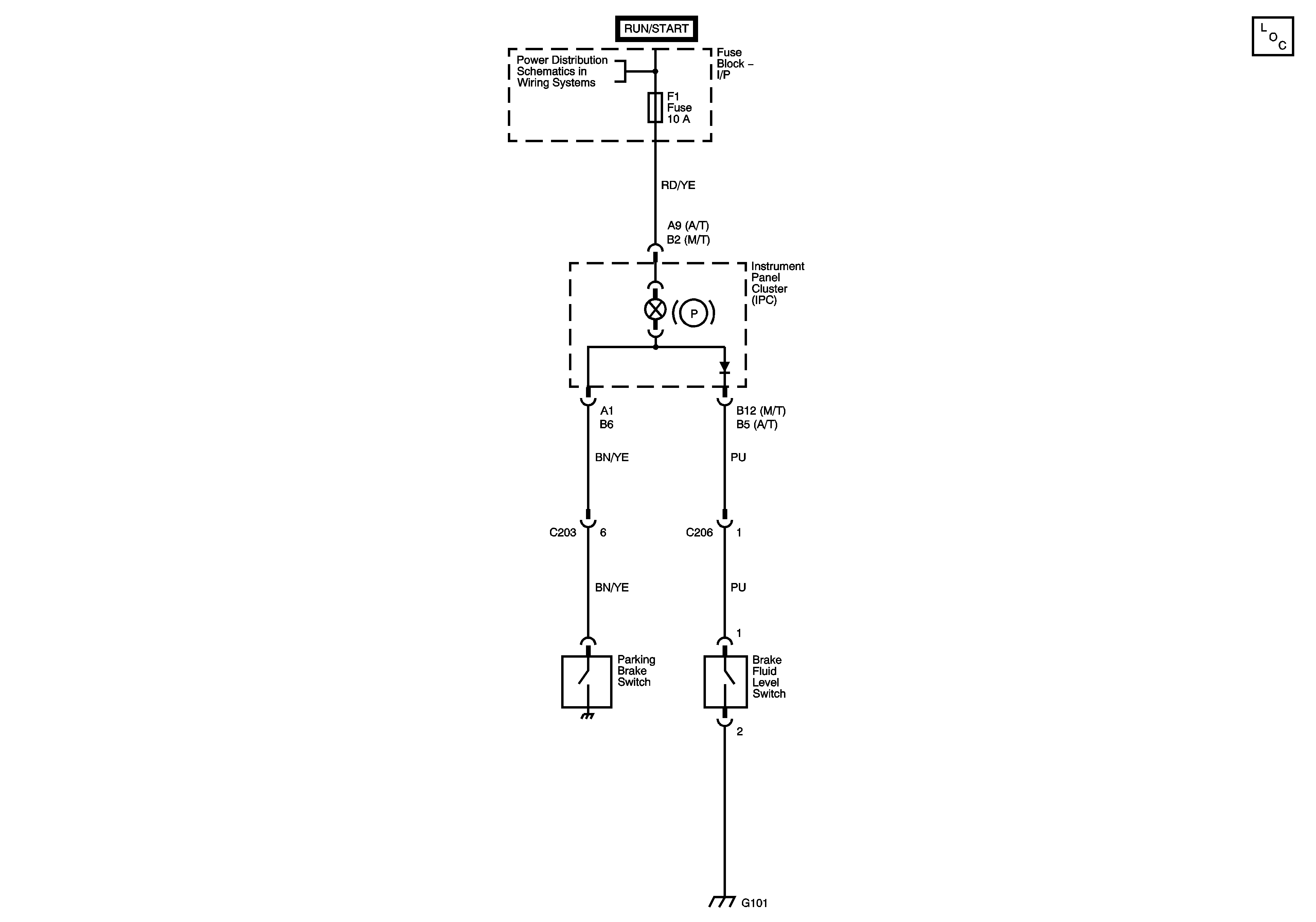
Figure
1:
Park Brake Controls - 0.8L
Master Electrical Component List
Figure
2:
Park Brake, Brake Fluid Level Switch, ABS Indicator Lamps
Master Electrical Component List
Instrument Panel Fuse Block - ECM and TCM Fuses, Underhood Fuse Block - AUDIO, CIGAR LIGHTER, CLUSTER, AIRBAG, POWER WINDOW and TURN SIGNAL Fuses
Instrument Panel Fuse Block - ECM and TCM Fuses, Underhood Fuse Block - AUDIO, CIGAR LIGHTER, CLUSTER, AIRBAG, POWER WINDOW and TURN SIGNAL Fuses
G101