GM Service Manual Online
For 1990-2009 cars only
Makes
🢒
Chevrolet
🢒
2008
🢒
Spark
🢒
Driver Information and Entertainment
🢒
Displays and Gages
🢒 Driver Information System Schematics
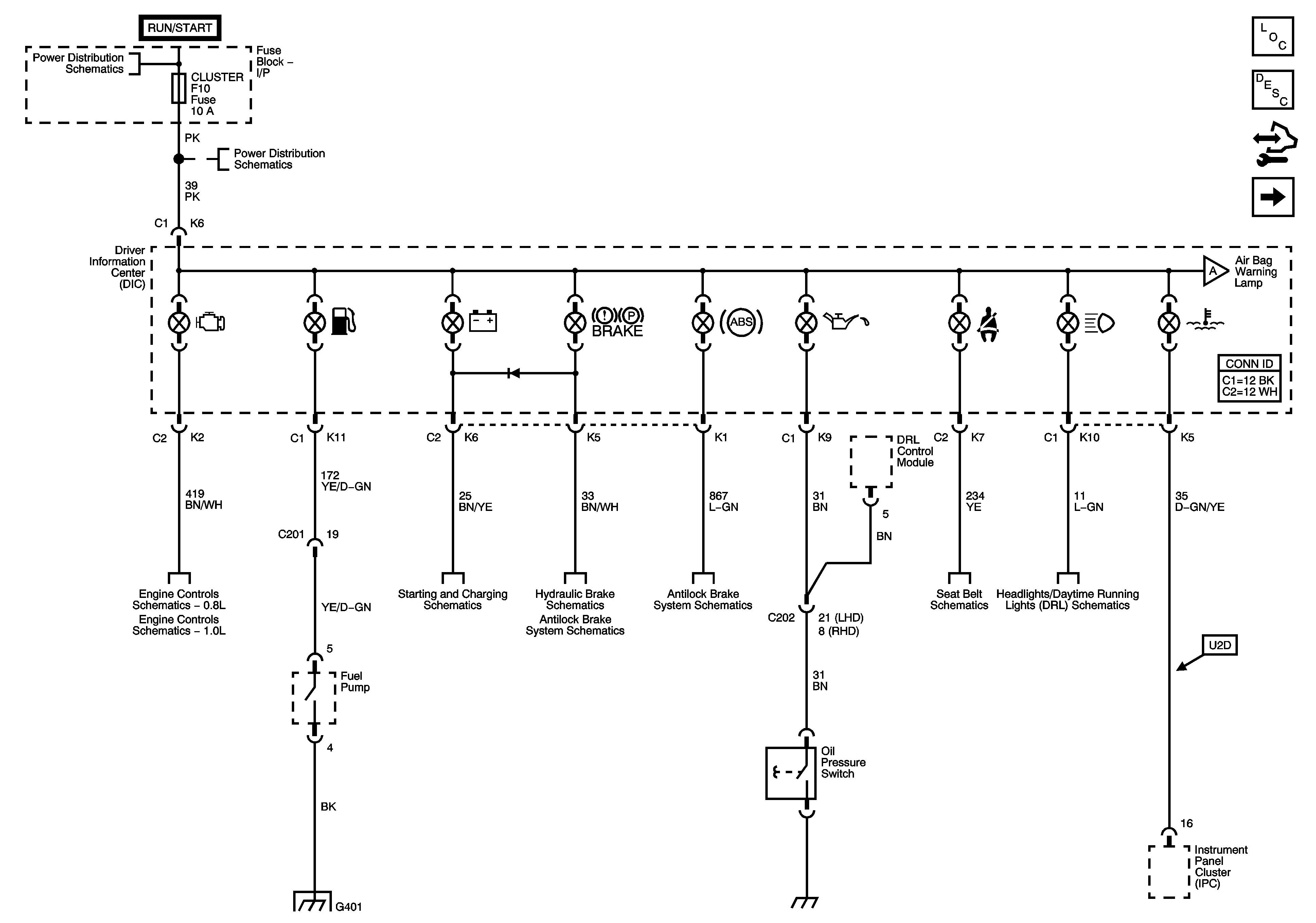
Figure
1:
ABS, Brake, Charge, Fuel, High Beam, Hot Temp, MIL, Oil and Seat Belt Indicators
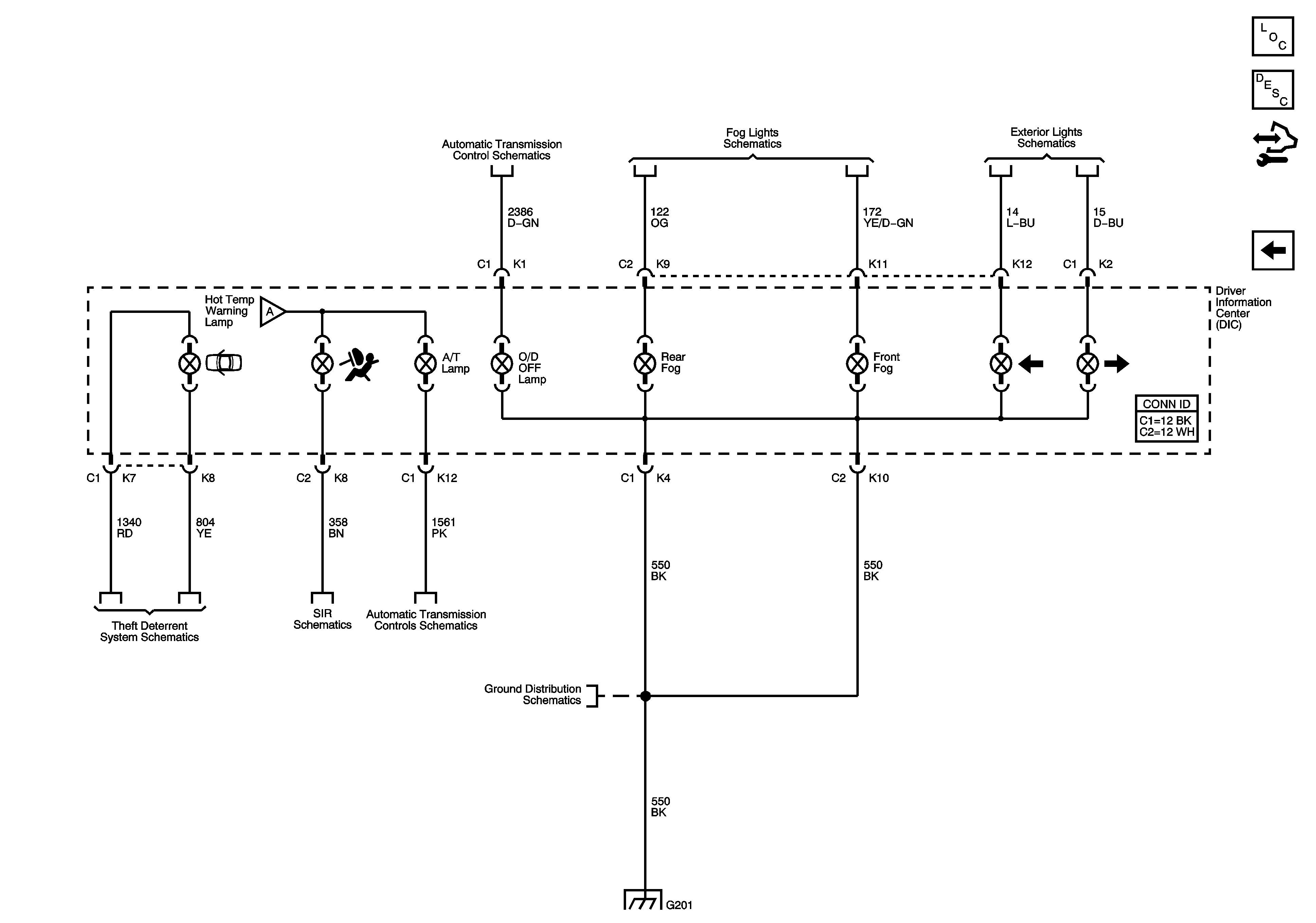
Figure
2:
Air Bag, A/T Lamp, Door Open, Front Fog, Left and Right Turn, O/D OFF and Rear Fog Indicators