GM Service Manual Online
For 1990-2009 cars only
Makes
🢒
Chevrolet
🢒
2000
🢒
Tahoe - 4WD
🢒
Driveline/Axle
🢒
Transfer Case - NVG 246-NP8 (Two Speed Automatic)
🢒 Transfer Case Control Schematics
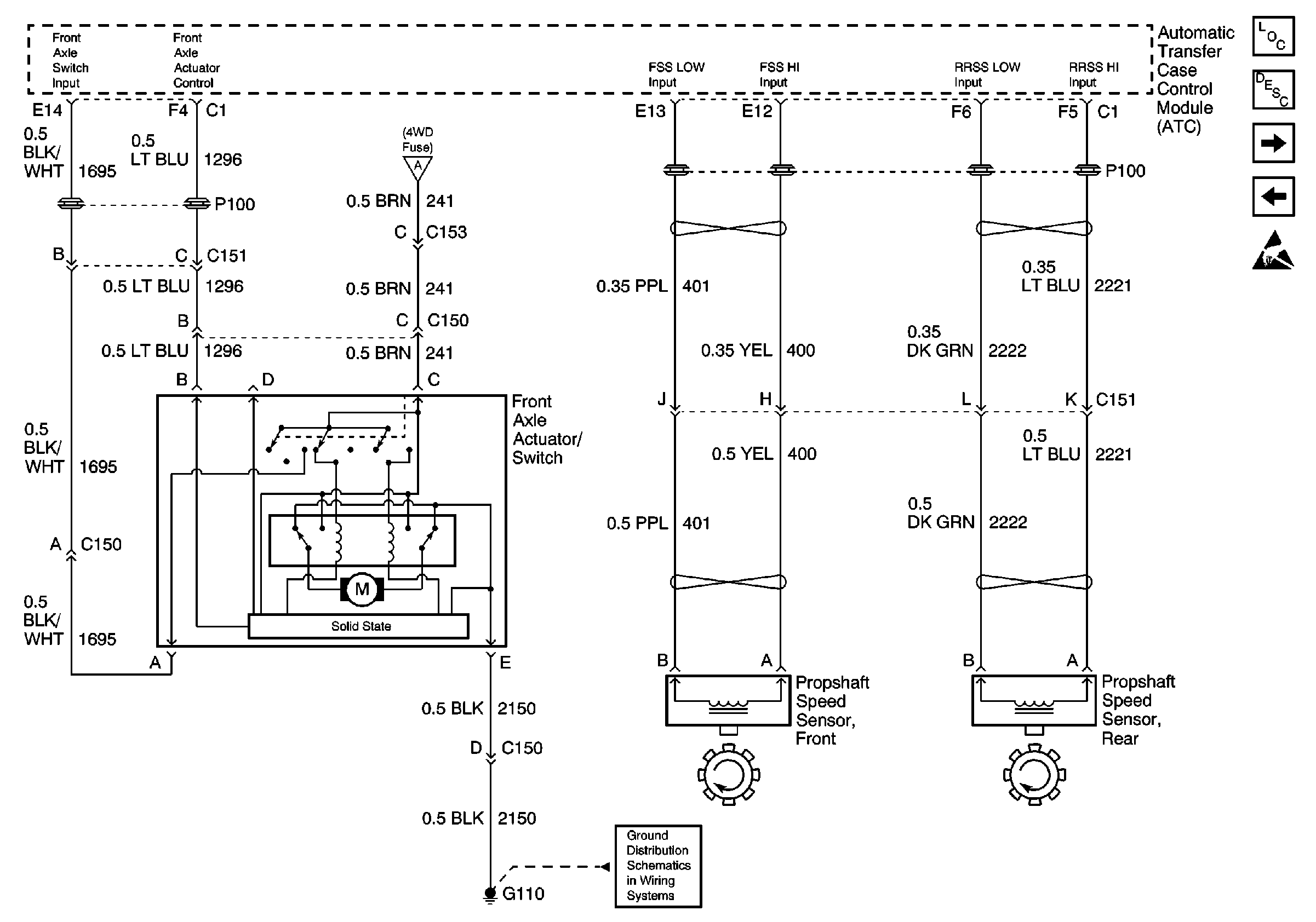
Figure
1:
4WD and ATC Fuse, Encoder/Motor
Transfer Case Control Components
Transfer Case Circuit Description
Propshaft Speed Sensors
Handling ESD Sensitive Parts Notice
Power Distribution Schematics
Power Distribution Schematics
Ground Distribution Schematics
Propshaft Speed Sensors
Figure
2:
Propshaft Speed Sensors
4WD and ATC Fuse, Encoder/Motor
Transfer Case Control Components
Transfer Case Circuit Description
G203, DLC, Select Switch
4WD and ATC Fuse, Encoder/Motor
Handling ESD Sensitive Parts Notice
Ground Distribution Schematics
Figure
3:
G203, DLC, Select Switch
Power Distribution Schematics
Power Distribution Schematics
Power Distribution Schematics
Data Link Connector Schematics
Ground Distribution Schematics
Ground Distribution Schematics
Instrument Cluster: Analog Schematics
Ground Distribution Schematics
Transfer Case Control Components
Transfer Case Circuit Description
Propshaft Speed Sensors
Handling ESD Sensitive Parts Notice