GM Service Manual Online
For 1990-2009 cars only
Makes
🢒
Chevrolet
🢒
2002
🢒
TrailBlazer - 2WD
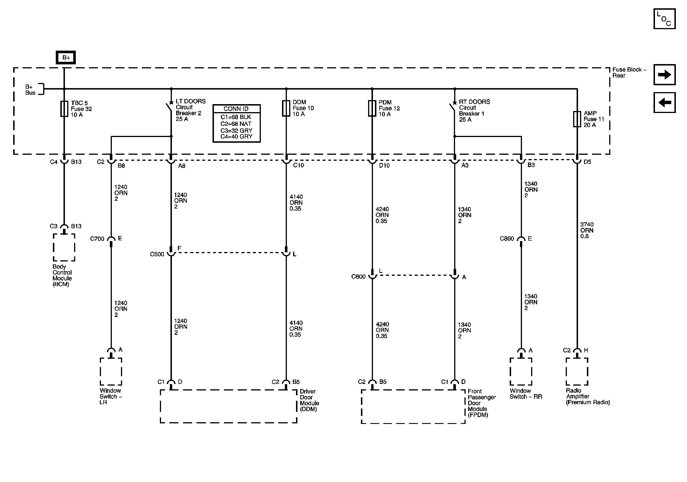
🢒 TBC 5, DDM, PDM, AMP Fuses, LT DOORS and RT DOORS Circuit Breakers
TBC 5, DDM, PDM, AMP Fuses, LT DOORS and RT DOORS Circuit Breakers
TBC 5, DDM, PDM, AMP Fuses, LT DOORS and RT DOORS Circuit Breakers
Master Electrical Component List
RR FOG, LR PARK, TR PARK, RR PARK, F PARK, LGM #2 Fuses, RR WIPER and SEATS Circuit Breakers
SUNROOF, AUX PWR 2, RR HVAC, AUX PWR 1, TBC 2, TBC 3, and TBC 4 Fuses
B+ Bus - Rear Fuse Block