GM Service Manual Online
For 1990-2009 cars only
Makes
🢒
Chevrolet
🢒
2007
🢒
Uplander Ext.
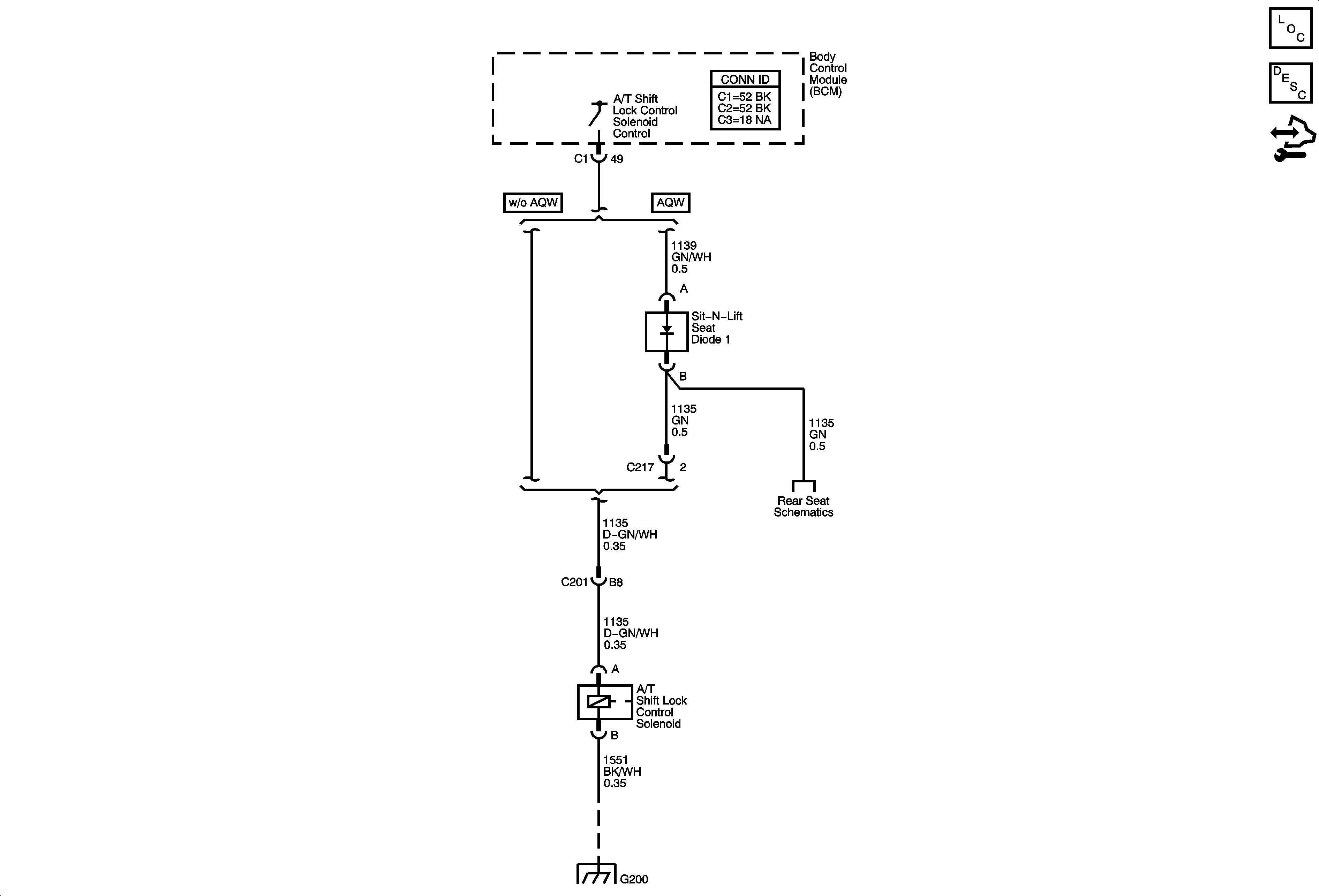
🢒 Shift Lock ControlSchematics
Shift Lock ControlSchematics
Master Electrical Component List
Automatic Transmission Shift Lock Control Description and Operation
Control Module References
Sit-N-Lift Seat Power and A/T Shift Interlock
G200 - 2 of 2