GM Service Manual Online
For 1990-2009 cars only
Makes
🢒
Chevrolet
🢒
2008
🢒
Uplander Ext.
🢒
Diagnostic Navigation
🢒
Vehicle Diagnostic Information
🢒 Moveable Window Schematics
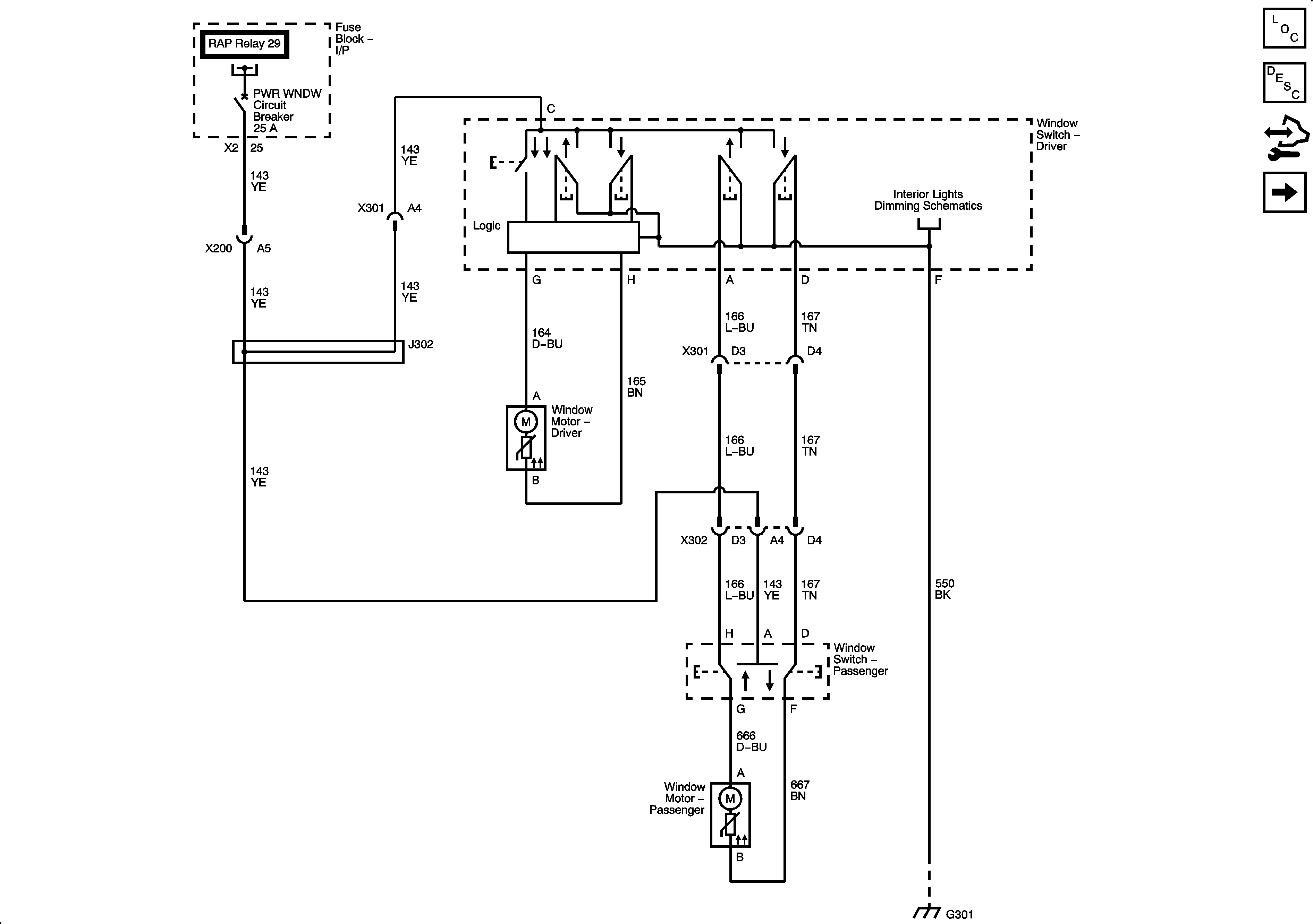
Figure
1:
Front Door Windows
Master Electrical Component List
Power Windows Description and Operation
Control Module References
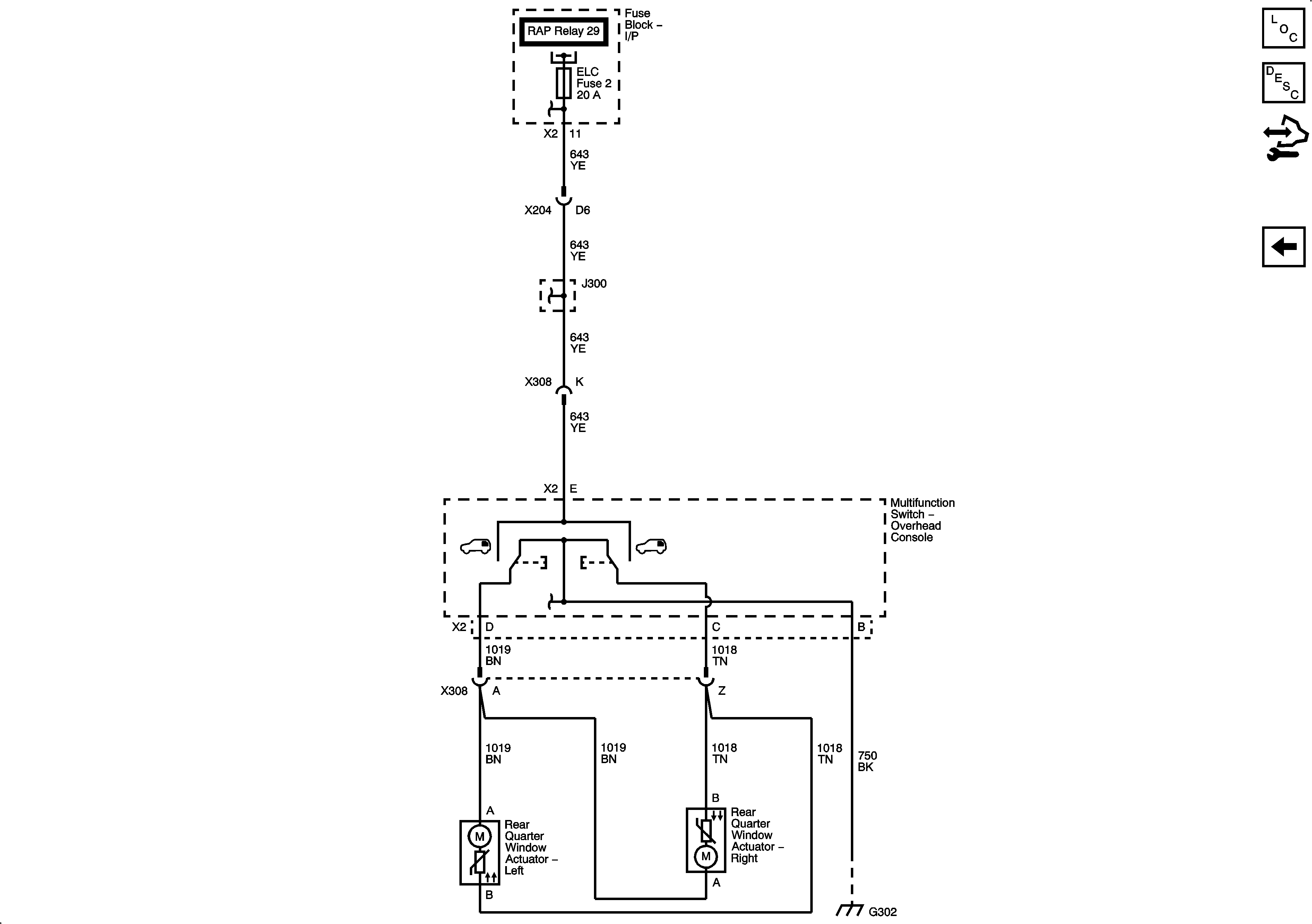
Rear Quarter Windows
Figure
2:
Rear Quarter Windows
Master Electrical Component List
Power Windows Description and Operation
Control Module References
Front Door Windows