GM Service Manual Online
For 1990-2009 cars only
Makes
🢒
Chevrolet
🢒
2000
🢒
Venture Ext.
🢒
Body and Accessories
🢒
Seats
🢒 Heated Seats Schematics
Figure
1:
Driver Seat Heater Module, Heated Seat Switches
Power Seat Systems Components
Heated Seats Circuit Description
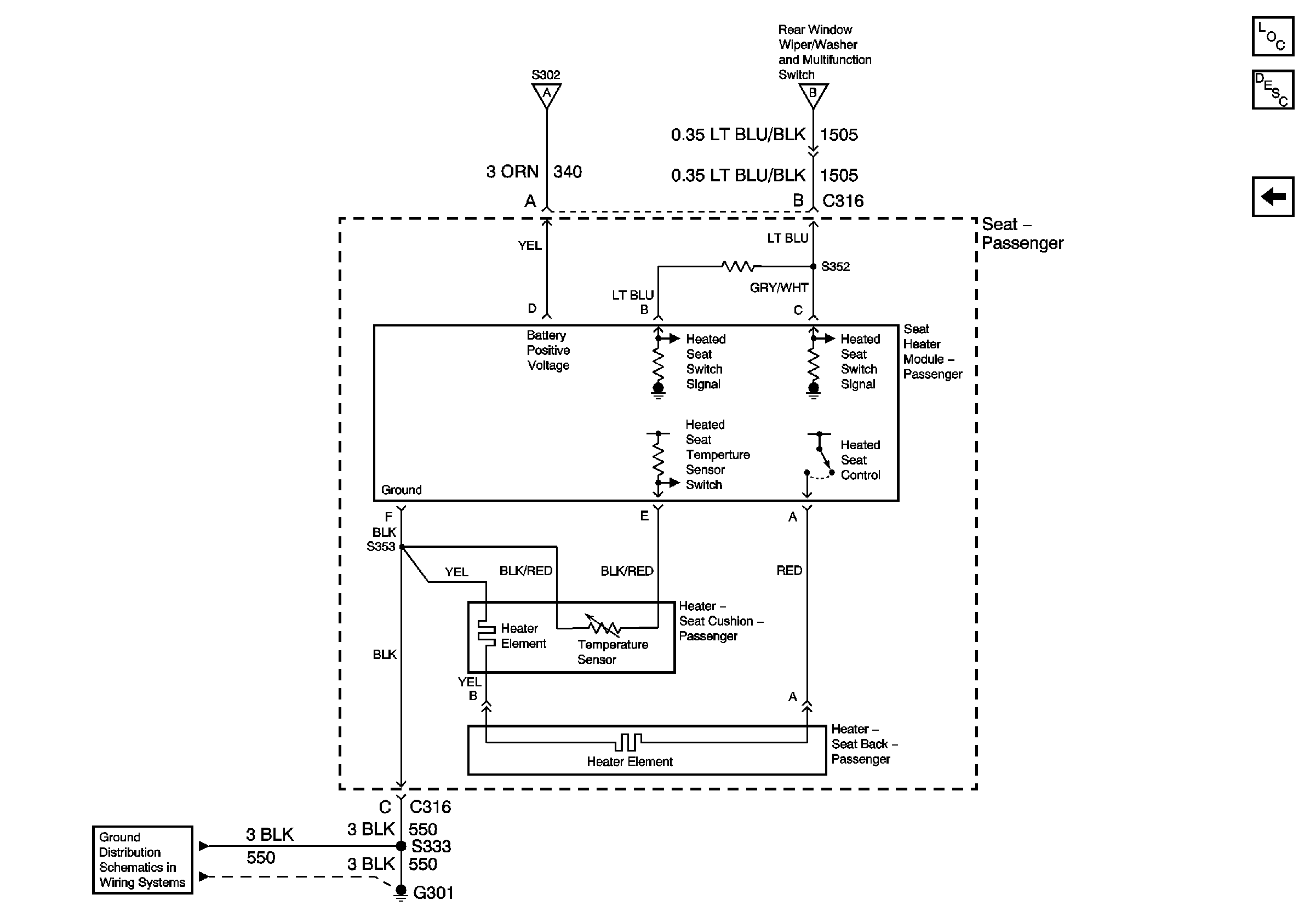
Passenger Seat Heater Module
Interior Lights Dimming Schematics (Cell 117: Rear Window Wiper/Washer and Multifunction Switch, Window Switches, Door Lock Switches)
Cell 14: G200
Passenger Seat Heater Module
Cell 14: G301
Passenger Seat Heater Module
BATT Main 2, Headlamps, ELC/Trailer, RR Defog/HTP Mirrors and RR Fog LP Fuses and PWR/ Heated Seat PSD Circuit Breaker
HVAC/DIC/DRL/Heated Seat, HVAC Blower and RR HVAC/TEMP CONT Fuses
Figure
2:
Passenger Seat Heater Module
Power Seat Systems Components
Heated Seats Circuit Description
Driver Seat Heater Module, Heated Seat Switches
Cell 14: G301
Driver Seat Heater Module, Heated Seat Switches