GM Service Manual Online
For 1990-2009 cars only
Makes
🢒
Chevrolet
🢒
2007
🢒
Vivant
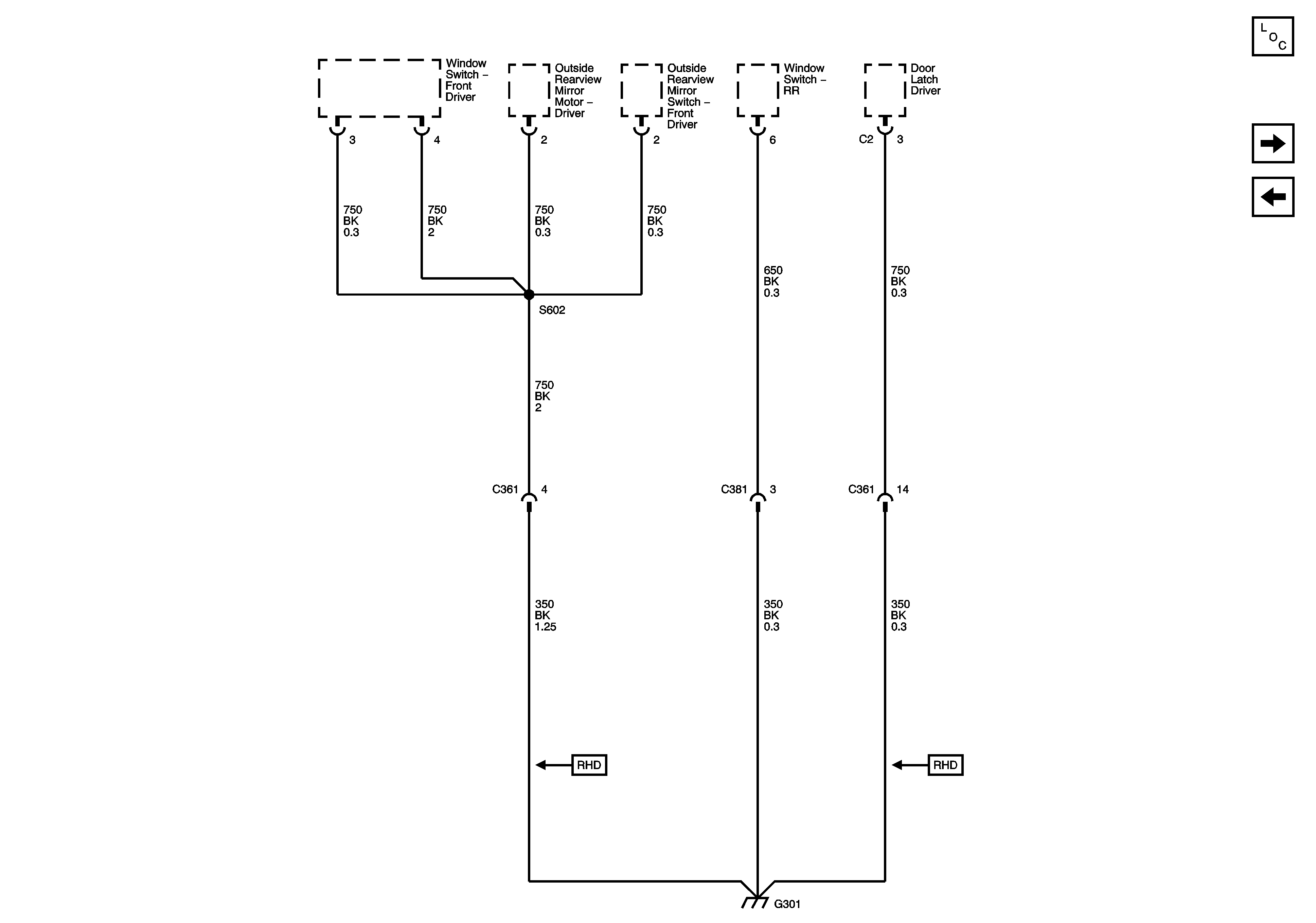
🢒 G301 (Cont)
G301 (Cont)
G301 (cont)
Master Electrical Component List
G401, G402
G301