GM Service Manual Online
For 1990-2009 cars only

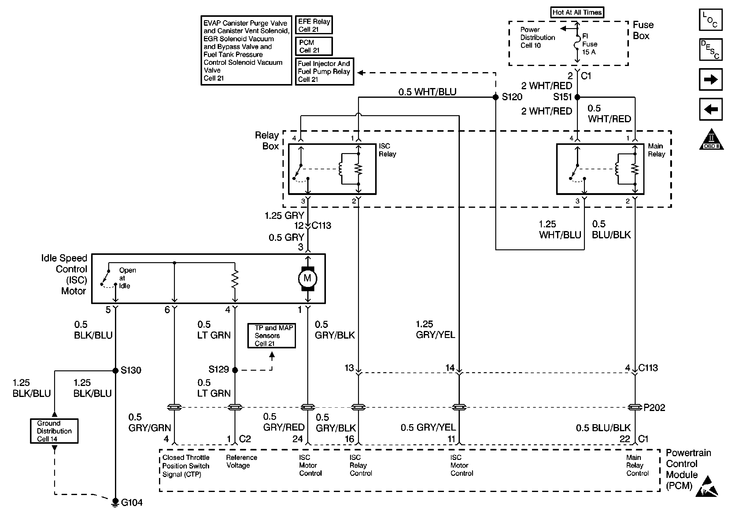
Refer to
Object Number: 61913  Size: FS
.

Circuit Description

The closed throttle position (CTP) switch sends a signal to the powertrain control module (PCM) indicating when the throttle is at idle (closed). The PCM applies 5 volts to the CTP switch. The CTP switch is closed when the engine is idling (low voltage signal at the PCM) and open when the engine is off idle (high voltage signal at the PCM). The CTP switch is located in the idle speed control motor.

Conditions for Setting the DTC

    • Vehicle speed changes from 0.0 km/h to at least 32 km/h (0 to 20 mph).
    • The CTP switch did not indicate OFF (NOT IDLE) to ON (IDLE) or ON (IDLE) to OFF (NOT IDLE) during the change in vehicle speed.
    • The above conditions are present 16 times per ignition cycle.

Action Taken When the DTC Sets

    • The PCM illuminates the malfunction indicator lamp (MIL) after two consecutive ignition cycles in which the diagnostic runs with the fault active.
    • The PCM records the operating conditions at the time the diagnostic fails. This information is stored in the Freeze Frame buffer.

Conditions for Clearing the MIL/DTC

    • The MIL turns OFF after three consecutively passing trips without a fault present.
    • A History DTC clears after 40 consecutive warm-up cycles without a fault.
    • Use the scan tool Clear DTC Information function or disconnect the PCM battery feed in order to clear the DTC.

Diagnostic Aids

Check for an open in the 5 volt reference circuit (LT GRN wire) when a DTC P0107, P0122, P0450, and P0510, are set.

An incorrectly adjusted TP sensor could cause a DTC P0510 to set. Refer to Throttle Position Sensor Adjustment .

An intermittent malfunction may be caused by a fault in the CTP switch electrical circuit. Inspect the wiring harness and components for any of the following conditions:

    • Backed out terminals.
    • Improper mating of terminals.
    • Broken electrical connector locks.
    • Improperly formed or damaged terminals.
    • Faulty terminal to wire connections.
    • Physical damage to the wiring harness.
    • A broken wire inside the insulation.
    • Corrosion of electrical connections, splices, or terminals.

If a DTC P0510 cannot be duplicated, the information included in the Freeze Frame data can be useful in determining vehicle operating conditions when the DTC was first set.

Test Description

The numbers below refer to the step numbers in the diagnostic table.

  1. The Powertrain OBD System Check prompts the technician to complete some basic checks and store the freeze frame data on the scan tool if applicable. This creates an electronic copy of the data taken when the fault occurred. The information is then stored in the scan tool for later reference.

  2. This step determines if fault is present. The scan tool should read IDLE when the throttle is closed and should read NOT IDLE when the throttle is open.

  3. This step checks the credibility of the CTP switch signal circuit.

  4. The CTP switch is located inside of the ISC motor assembly. The ISC motor must be replaced in order to service the CTP switch.

Step

Action

Values

Yes

No

1

Did you perform the Powertrain On-Board Diagnostic (OBD) System Check?

--

Go to Step 2

Go to Powertrain On Board Diagnostic (OBD) System Check

2

  1. Turn ON the ignition, leaving the engine OFF.
  2. Install a scan tool.
  3. Clear the scan tool information.
  4. Monitor the CTP switch parameter on the scan tool.
  5. Check that the scan tool CTP switch parameter at idle (throttle in the closed position) reads IDLE.
  6. Check that the scan tool CTP switch parameter with the throttle in the open position reads NOT IDLE.

Did the CTP switch fail either test?

--

Go to Step 4

Go to Step 3

3

  1. Clear the scan tool information.
  2. Operate the vehicle within the Freeze Frame conditions as specified.

Does the scan tool indicate a DTC P0510?

--

Go to Step 4

Go to Diagnostic Aids

4

  1. Disconnect the ISC motor electrical connector.
  2. Measure the voltage from the 5 volt reference circuit (harness side) to ground with a DMM.

Is the voltage near the specified value?

5 volts

Go to Step 5

Go to Step 7

5

Probe the ISC motor ground circuit (harness side) with a test lamp connected to B+.

Did the test lamp illuminate?

--

Go to Step 6

Go to Step 8

6

  1. Monitor the CTP switch parameter on the scan tool.
  2. With the ISC motor electrical connector disconnected the CTP switch parameter should read NOT IDLE.
  3. Connect a fused jumper wire between terminals 6 and 5 of the ISC motor electrical connector (harness side).
  4. The scan tool should read IDLE.

Did the CTP switch fail either test?

--

Go to Step 9

Go to Step 10

7

Repair the open or the short in the 5 volt reference circuit. Refer to Wiring Repairs in Wiring Systems.

Is the action complete?

--

Go to Step 12

--

8

Repair the faulty connection or the open in the ISC motor ground circuit. Refer to Wiring Repairs in Wiring Systems.

Is the action complete?

--

Go to Step 12

--

9

  1. Check for an open or a short in the CTP switch signal circuit between the ISC motor and the PCM.
  2. Repair as necessary. Refer to Wiring Repairs in Wiring Systems.

Was a repair necessary?

--

Go to Step 12

Go to Step 11

10

Replace the ISC motor. Refer to ISC Motor Replacement .

Is the action complete?

--

Go to Step 12

--

11

Replace the PCM. Refer to Powertrain Control Module Replacement .

Is the action complete?

--

Go to Step 12

--

12

  1. Perform the scan tool Clear DTC Information function and road test the vehicle within the Freeze Frame conditions that set the DTC.
  2. Review the scan tool data and check for DTCs. The repair is complete if no DTCs are stored.

Are any DTCs displayed on the scan tool?

--

Go to the Applicable DTC Table

System OK