GM Service Manual Online
For 1990-2009 cars only

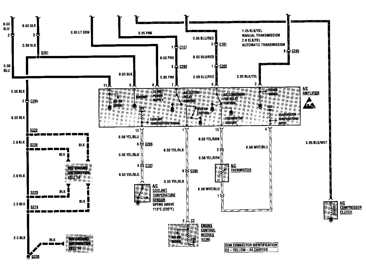
SERVICE MANUAL UPDATE-SEC. 8A A/C COMPRESSOR CLUTCH DIAG.

SUBJECT: AIR CONDITIONING COMPRESSOR CLUTCH DIAGNOSIS - REVISED SCHEMATIC

MODEL and YEAR: 1991-92 GEO TRACKER

THIS BULLETIN CANCELS AND SUPERSEDES DEALER SERVICE BULLETIN NO. 92-262-8A, DATED AUGUST 1992. THE SCHEMATICS AND DIAGNOSIS HAVE BEEN ADDED FOR EACH MODEL YEAR. ALL COPIES OF 92-262-8A SHOULD BE DISCARDED.

1991 Geo Tracker Electrical Diagnosis Service Manual Supplement (ST377-91 EDM):

Replace the schematic on page 8A-64-1 with the schematic in this service bulletin (Figure 1). Step A8 in this service bulletin (Figure 2) should replace step A8 on page 8A-64-4 and steps A15 and A16 in this service bulletin (Figure 2) should replace steps A15 and A16 on page 8A-64-5.

1992 Geo Tracker Service Manual (ST377-92):

Replace the schematic on page 8A-64-1 with the schematic in this service bulletin (Figure 3). Step Al 6 and A17 in this service bulletin (Figure 4) should replace steps A16 and A17 on pages 8A-64-5 and 8A-64.6.

SYSTEM DIAGNOSIS

AIR CONDITIONING: COMPRESSOR CONTROLS ------------------------------------- DIAGNOSTIC CHART A (AMENDMENTS) ------------------------------- A8. Disconnect A/C CLUTCH RELAY Test lamp lights. Replace A/C CLUTCH RELAY. connector. Connect a test Test lamp does not Check for an open in PNK lamp from connector cavity light. wire between A/C CLUTCH 3 to Battery voltage. RELAY and A/C AMPLIFIER. If Ok, GO TO A9.

A15. Connect a digital multimeter More than 0.5 GO TO A16. from A/C AMPLIFIER connector ohms. cavity 12 to chassis ground. Less than 0.5 GO TO A17. Measure resistance. ohms.

A16. Backprobe A/C COOLANT More than 0.5 Replace A/C COOLANT TEMPERATURE SENSOR connector ohms. TEMPERATURE SENSOR. with a digital multimeter from connector cavity to Less than 0.5 Repair open in YEL/BLU chassis ground. Measure ohms. wire between A/C resistance. AMPLIFIER and A/C COOLANT TEMPERATURE SENSOR. SYSTEM DIAGNOSIS ---------------- AIR CONDITIONING: COMPRESSOR CONTROLS ------------------------------------- DIAGNOSTIC CHART A (AMENDMENTS) ------------------------------- A16. Connect a digital multimeter More than 5.0 ohms. GO TO A17. from A/C AMPLIFIER connector Less than 5.0 ohms. GO TO A18. cavity 12 to chassis ground. Measure resistance.

A17. Backprobe COOLANT HIGH More than 5.0 ohms. Replace COOLANT HIGH TEMPERATURE SWITCH TEMPERATURE SWITCH. connector with a digital multimeter from connector cavity to chassis ground. Less than 5.0 ohms. Repair open in YEL/BLU Measure resistance. wire between COOLANT HIGH TEMPERATURE SENSOR and A/C AMPLIFIER.


Object Number: 75256  Size: FS


Object Number: 75150  Size: FS


Object Number: 95363  Size: SF


Object Number: 95362  Size: SF

General Motors bulletins are intended for use by professional technicians, not a "do-it-yourselfer". They are written to inform those technicians of conditions that may occur on some vehicles, or to provide information that could assist in the proper service of a vehicle. Properly trained technicians have the equipment, tools, safety instructions and know-how to do a job properly and safely. If a condition is described, do not assume that the bulletin applies to your vehicle, or that your vehicle will have that condition. See a General Motors dealer servicing your brand of General Motors vehicle for information on whether your vehicle may benefit from the information.