GM Service Manual Online
For 1990-2009 cars only
Makes
🢒
HUMMER
🢒
2005
🢒
H2
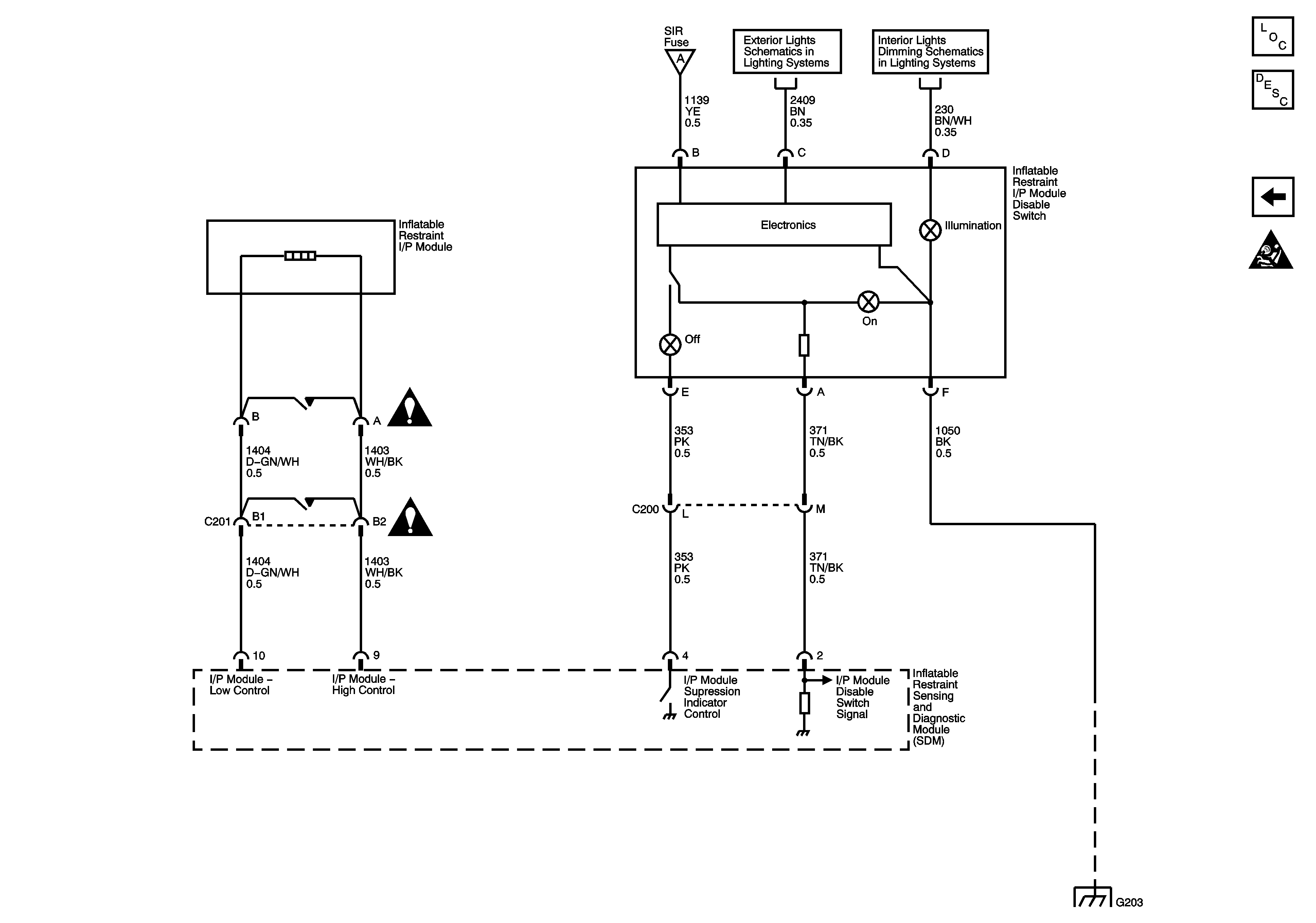
🢒 Passenger Air Bag and Defeat Switch
Passenger Air Bag and Defeat Switch
Passenger Air Bag and Defeat Switch
Master Electrical Component List
SIR System Description and Operation
SDM Power, Grounding, DLC, Sensors, and Driver Air Bag
SIR Caution for Zoning
SDM Power, Grounding, DLC, Sensors, and Driver Air Bag
Roof Lamps
Illumination - Transfer Case Control, Ride Height Control, Inflatable Restraint Disable, and Rear Heated Seat Switches, PRNDL Lamps
CKT 1050: G203, S302, S303, S351, and S215
SIR Schematic Icons
SIR Schematic Icons