GM Service Manual Online
For 1990-2009 cars only
Makes
🢒
HUMMER
🢒
2005
🢒
H2
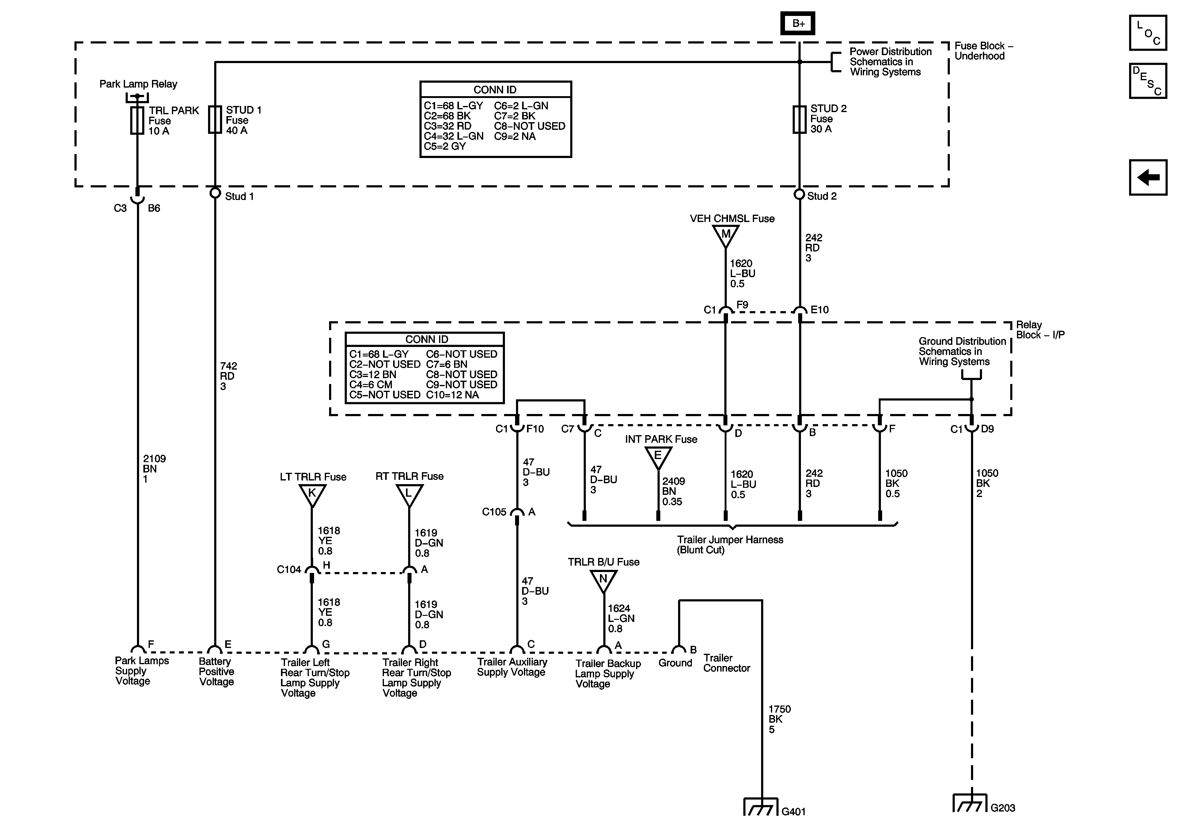
🢒 Trailer Lighting Provisions
Trailer Lighting Provisions
Trailer Lighting Provisions
Master Electrical Component List
Exterior Lighting Systems Description and Operation
Backup Lamps
STUD 1, STUD 2, VSES/ECAS, BLOWER, ABS, MBEC 1 Fuses, RT DOORS and SEATS Circuit Breakers
Stop Lamps
CKT 1050: S301 and S213
CKT 1050: G203, S302, S303, S351, and S215
G308, G310, G401, and G300
Roof Lamps
Backup Lamps
Turn Signal/Hazard Switch and Flasher Module
Park Lamp Relay, Front Park and Marker Lamps