GM Service Manual Online
For 1990-2009 cars only
Makes
🢒
HUMMER
🢒
2008
🢒
H2
🢒
Safety and Security
🢒
Remote Functions
🢒 Remote Function Schematics
Figure
1:
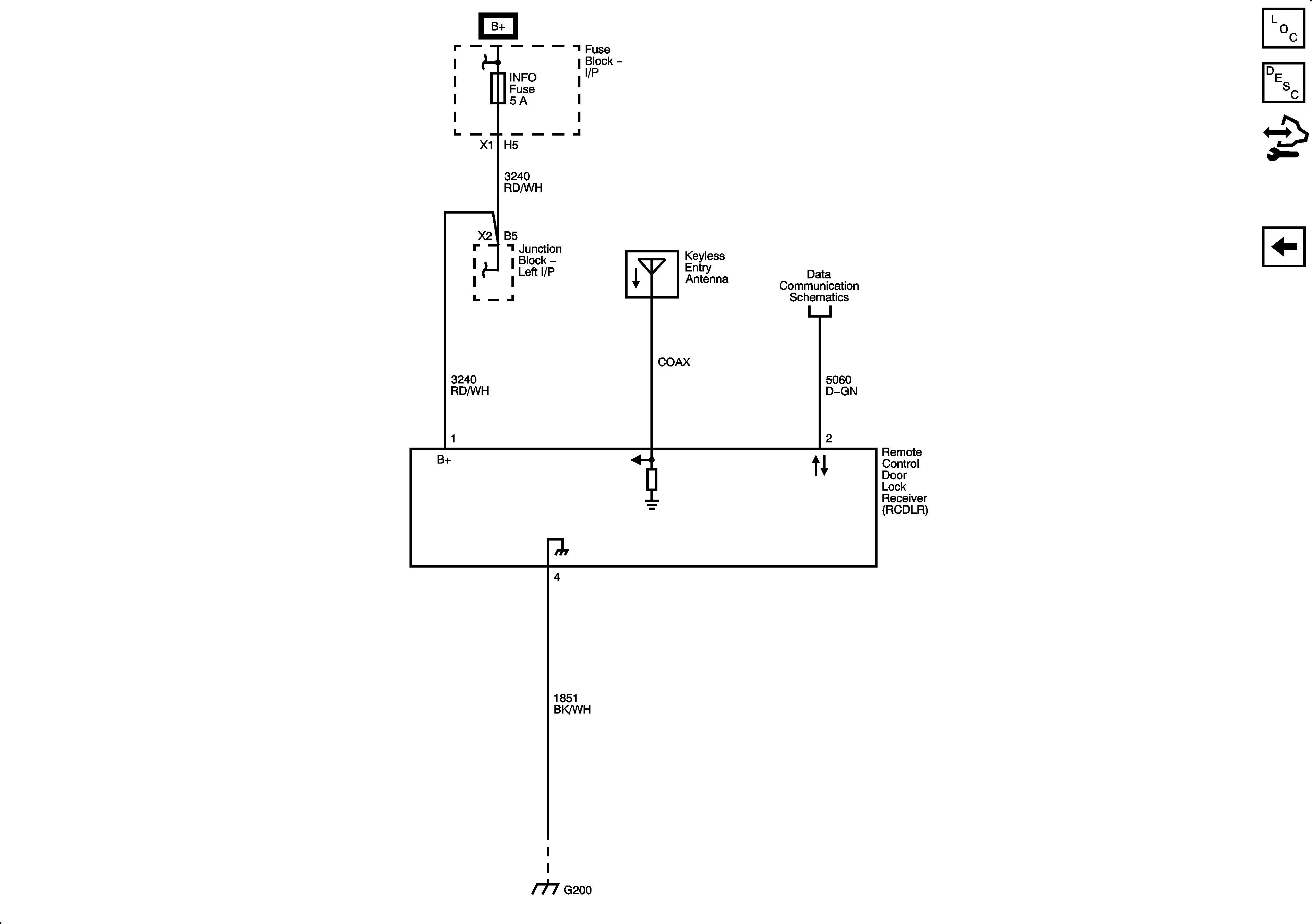
Power, Ground and Remote Control Door Lock Receiver
Master Electrical Component List
Keyless Entry System Description and Operation (without Accessory 2 Way Remote)
Control Module References
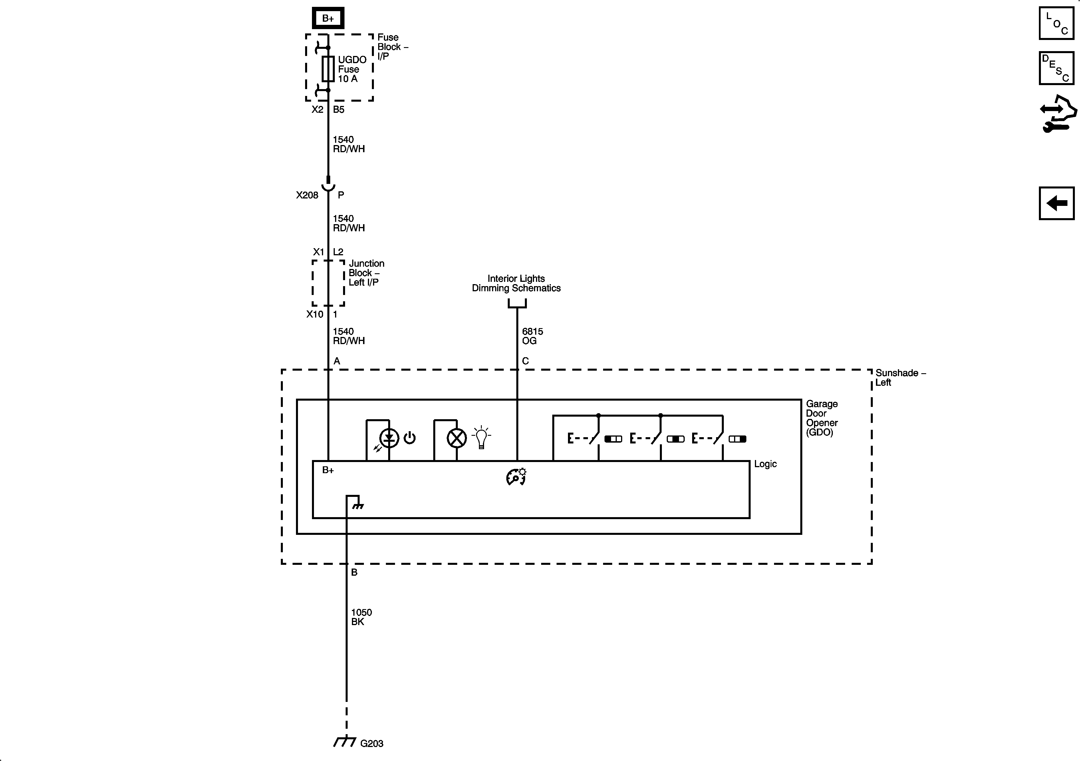
Garage Door Opener
Figure
2:
Garage Door Opener
Master Electrical Component List
Garage Door Opener Description and Operation
Control Module References
Power, Ground and Remote Control Door Lock Receiver