GM Service Manual Online
For 1990-2009 cars only
Makes
🢒
HUMMER
🢒
2009
🢒
H2
🢒
Power and Signal Distribution
🢒
Data Communications
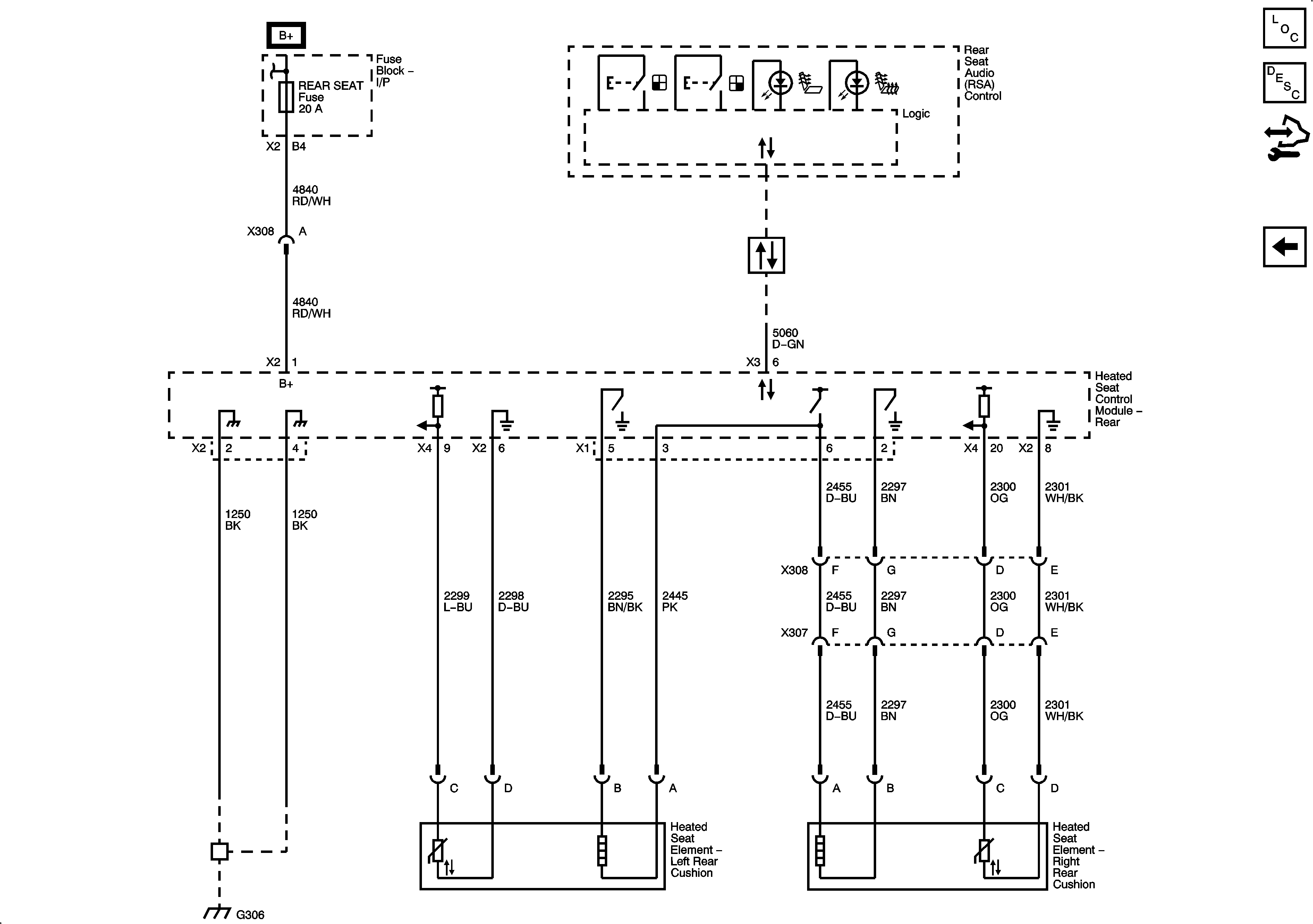
🢒 Heated/Cooled Seat Schematics
Figure
1:
Heated Seat - Driver
Figure
2:
Heated Seat - Passenger
Figure
3:
Heated Seat - Rear