GM Service Manual Online
For 1990-2009 cars only
Makes
🢒
HUMMER
🢒
2009
🢒
H2
🢒
Safety and Security
🢒
Supplemental Inflatable Restraints
🢒 SIR Schematics
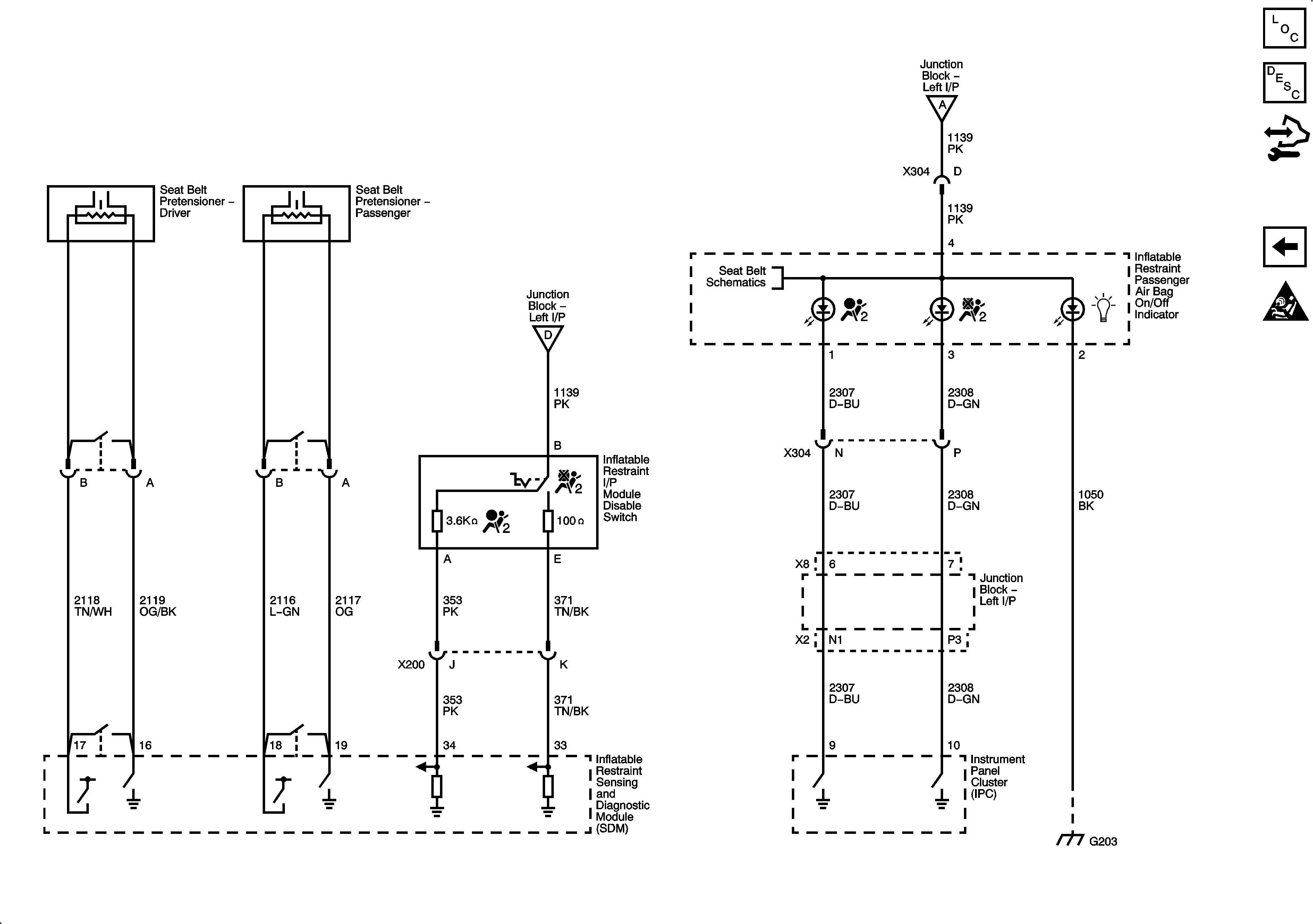
Figure
1:
Module Power, Ground, Serial Data and Front Sensors
Figure
2:
Steering Wheel and I/P Module
Figure
3:
Side Impact Modules and Sensors
Figure
4:
Seat Belt Pretensioners and Air Bag Indicator