GM Service Manual Online
For 1990-2009 cars only
Makes
🢒
HUMMER
🢒
2008
🢒
H3
🢒
Body Systems
🢒
Lighting
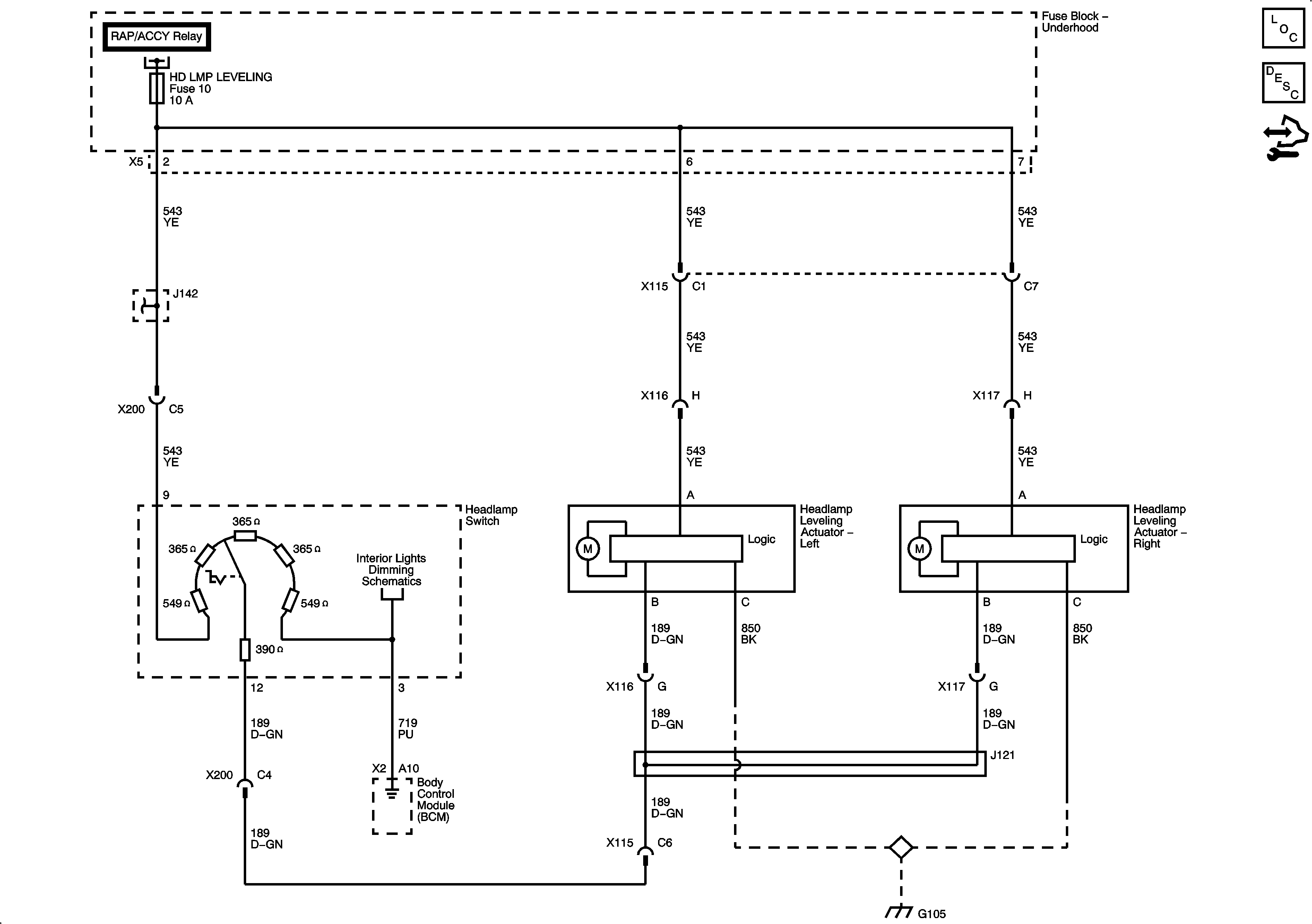
🢒 Headlight Leveling Schematics
Headlamp Level
Master Electrical Component List
Exterior Lighting Systems Description and Operation
Control Module References